- ERA
- North Carolina
- Durham
- 641 Conover Road #B
641 Conover Road #B, Durham, NC 27703
Local realty services provided by:ERA Strother Real Estate
Listed by: tina caul, danielle harvey
Office: exp realty llc.
MLS#:10127109
Source:RD
Price summary
- Price:$425,000
- Price per sq. ft.:$188.14
- Monthly HOA dues:$115
About this home
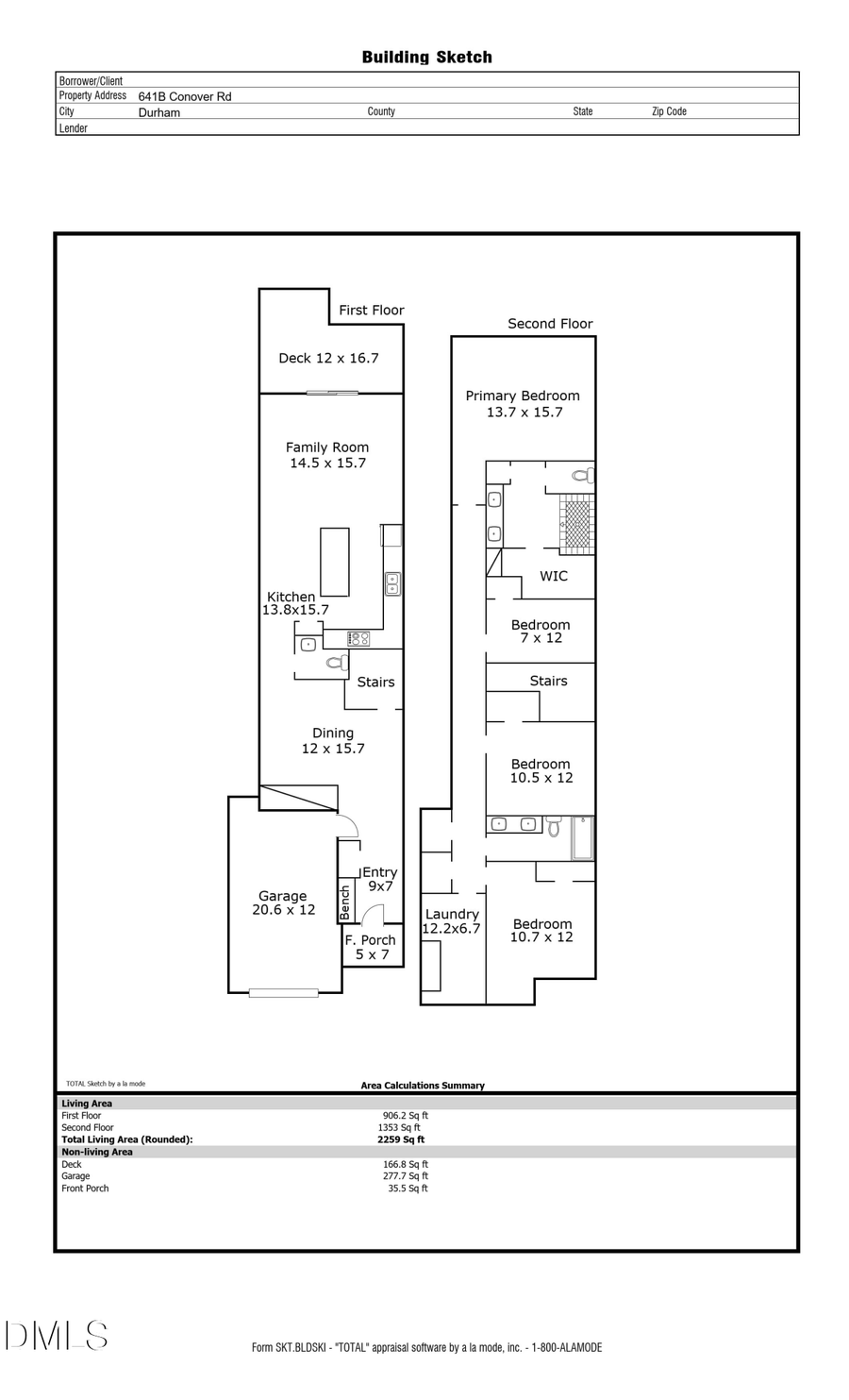
Custom new construction low-maintenance home offering luxurious modern living! This single family attached home has 3 bedrooms plus an office, designed with thoughtful details and high-end finishes throughout. Lives like a single family home - only attached at garage and laundry room. The chef's kitchen is the heart of the home, featuring an oversized quartz island, 42'' wood cabinetry, GE stainless appliances, gas stove, tile backsplash and more. The open layout flows seamlessly into the family room for easy everyday living, with direct access to the covered porch for relaxing or entertaining outdoors. Upstairs, the tranquil primary suite feels like a retreat with a spa-inspired bath featuring dual quartz vanities, a walk-in tiled shower, and generous closet space. Secondary bedrooms and a centrally located laundry add comfort and convenience. Featuring 9' ceilings on both levels, engineered wood floors, upgraded carpet, solid 8' wood doors, LED lighting, and sleek black hardware throughout. With custom closet shelving and a finished garage with EV outlet, this home blends thoughtful design with effortless style- ready for you to move right in. Experience year-round comfort and lower energy costs in this thoughtfully designed, energy-efficient home, featuring a low HERS score and a conditioned, sealed crawl space for optimal performance. Ideally located near Brier Creek, RDU, RTP and just minutes to shopping, restaurants, and more. Enjoy a lifestyle of elegance, comfort, and convenience. Check out the other homes & floor plans starting from the mid $400s! Preferred lender incentive: receive up to 1% of your loan amount applied toward closing costs.
Contact an agent
Home facts
- Year built:2024
- Listing ID #:10127109
- Added:122 day(s) ago
- Updated:February 10, 2026 at 08:36 AM
Rooms and interior
- Bedrooms:4
- Total bathrooms:3
- Full bathrooms:2
- Half bathrooms:1
- Living area:2,259 sq. ft.
Heating and cooling
- Cooling:Central Air, Electric
- Heating:Central, Electric, Heat Pump
Structure and exterior
- Roof:Shingle
- Year built:2024
- Building area:2,259 sq. ft.
- Lot area:0.23 Acres
Schools
- High school:Durham - Southern
- Middle school:Durham - Neal
- Elementary school:Durham - Spring Valley
Utilities
- Water:Public
- Sewer:Public Sewer
Finances and disclosures
- Price:$425,000
- Price per sq. ft.:$188.14
- Tax amount:$1,066
New listings near 641 Conover Road #B
- Coming Soon
$525,000Coming Soon4 beds 3 baths9 Otters Run, Durham, NC 27712
MLS# 10145531Listed by: EXP REALTY LLC - New
$350,000Active2 beds 2 baths1,586 sq. ft.5005 Gatewood Drive, Durham, NC 27712
MLS# 10145524Listed by: CANTRELL REAL ESTATE GROUP LLC - New
$359,900Active3 beds 2 baths1,822 sq. ft.5022 Green Oak Drive, Durham, NC 27712
MLS# 10145491Listed by: FRANK WARD, REALTORS - New
$250,000Active2 beds 3 baths1,320 sq. ft.4 Astor Court, Durham, NC 27705
MLS# 10145494Listed by: COMPASS -- RALEIGH - New
$269,900Active2 beds 2 baths1,096 sq. ft.527 Woodwinds Drive, Durham, NC 27713
MLS# 10145418Listed by: EXP REALTY LLC - New
$749,000Active5 beds 4 baths3,258 sq. ft.1607 Eagle Lodge Lane, Durham, NC 27703
MLS# 10145436Listed by: BEYCOME BROKERAGE REALTY LLC - New
$575,000Active4 beds 3 baths2,399 sq. ft.620 Wellingham Drive, Durham, NC 27713
MLS# 10145445Listed by: OPENDOOR BROKERAGE LLC - New
$195,000Active3 beds 2 baths1,068 sq. ft.312 Omega Road, Durham, NC 27712
MLS# 10145471Listed by: MAINSTAY BROKERAGE LLC - New
$350,000Active3 beds 3 baths1,210 sq. ft.3001 Corinth Lane, Durham, NC 27704
MLS# 10145402Listed by: KELLER WILLIAMS REALTY - New
$410,000Active3 beds 3 baths2,243 sq. ft.1001 Pebble Creek Crossing #Unit 11, Durham, NC 27713
MLS# 10145394Listed by: ALLEN TATE/RALEIGH-FALLS NEUSE