341 Timber Meadow Lake Drive, Fuquay Varina, NC 27526
Local realty services provided by:ERA Parrish Realty Legacy Group
Listed by: hope tyler, adam christian eshbaugh
Office: northgroup real estate, inc.
MLS#:10158778
Source:RD
Price summary
- Price:$385,000
- Price per sq. ft.:$184.3
- Monthly HOA dues:$21.17
About this home
Welcome to a home where comfort, charm, and a touch of nature come together in perfect harmony! Nestled in the sought-after Southern Oaks community in Fuquay-Varina, 341 Timber Meadow Lake offers the ideal blend of everyday functionality and inviting spaces designed for both relaxing and entertaining.
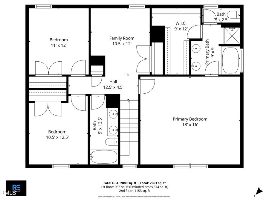
Built in 2008 and offering nearly 2,000 square feet of thoughtfully designed living space, this beautifully maintained home features 3 bedrooms, 2.5 baths, and a versatile loft--perfect for a home office, creative studio, or cozy retreat.
Step inside and you're immediately welcomed by an open-concept family room anchored by a warm corner fireplace--ideal for movie nights or gathering with friends. The heart of the home is the spacious kitchen, complete with a center island, abundant 42'' cabinetry, pantry, and sunny breakfast nook--perfect for everything from quick weekday mornings to weekend brunches.
Love to host? The elegant dining room sets the stage with a tray ceiling, chair rail, and crown molding--adding just the right amount of sophistication for dinner parties or holiday celebrations.
Upstairs, the generous primary suite is your private escape, featuring a double vanity, relaxing garden tub, separate shower, and a large walk-in closet. Additional bedrooms are spacious and flexible, while the loft adds that extra ''bonus'' space everyone is looking for.
And then... step outside.
This home truly shines with its backyard setting--backing to a conservation easement, you'll enjoy peaceful, wooded views and added privacy rarely found at this price point. Whether you're sipping coffee in the morning or unwinding at sunset, this natural backdrop makes every day feel a little more serene....
Contact an agent
Home facts
- Year built:2008
- Listing ID #:10158778
- Added:1 day(s) ago
- Updated:April 09, 2026 at 10:55 PM
Rooms and interior
- Bedrooms:3
- Total bathrooms:3
- Full bathrooms:2
- Half bathrooms:1
- Rooms Total:10
- Flooring:Carpet, Combination, Vinyl, Wood
- Living area:2,089 sq. ft.
Heating and cooling
- Cooling:Central Air
- Heating:Forced Air
- Central air:Yes
Structure and exterior
- Roof:Shingle
- Year built:2008
- Building area:2,089 sq. ft.
- Lot area:0.2 Acres
- Lot Features:Wooded
- Architectural Style:Traditional, Transitional
- Construction Materials:Vinyl Siding
- Exterior Features:Patio, Rain Gutters
- Foundation Description:Slab
- Levels:Two
Schools
- High school:Wake - Fuquay Varina
- Middle school:Wake - Fuquay Varina
- Elementary school:Wake - Bowling Road
Utilities
- Water:Public
- Sewer:Public Sewer
Finances and disclosures
- Price:$385,000
- Price per sq. ft.:$184.3
- Tax amount:$3,149
Features and amenities
- Amenities:Cathedral Ceiling(s), Entrance Foyer
Parking
- Parking description:Garage, Garage Faces Front
- Garage:Yes
- Garage spaces:2
New listings near 341 Timber Meadow Lake Drive
- New
$325,000Active3 beds 3 baths1,345 sq. ft.313 Pittsboro Street, Fuquay Varina, NC 27526
MLS# 10158869Listed by: COMPASS -- CARY - Open Fri, 2 to 4pmNew
$379,900Active4 beds 3 baths2,087 sq. ft.857 Stable Fern Drive, Fuquay Varina, NC 27526
MLS# 10158787Listed by: EXP REALTY LLC - Open Sat, 2 to 4pmNew
$309,900Active3 beds 3 baths1,606 sq. ft.131 Joneshaven Drive, Fuquay Varina, NC 27526
MLS# 10158621Listed by: CARY-RALEIGH REALTY, INC. - Open Sat, 12 to 2pmNew
$525,000Active4 beds 3 baths2,700 sq. ft.418 Stranraer Court, Fuquay Varina, NC 27526
MLS# 10158659Listed by: COLDWELL BANKER HPW - Open Sat, 3 to 5pmNew
$625,000Active5 beds 3 baths4,003 sq. ft.1400 Addison Lake Street, Fuquay Varina, NC 27526
MLS# 10158719Listed by: KELLER WILLIAMS LEGACY - New
$725,000Active5 beds 5 baths3,505 sq. ft.361 Lake Lure Way, Fuquay Varina, NC 27526
MLS# 10158561Listed by: EXP REALTY LLC - New
$398,000Active4 beds 3 baths1,926 sq. ft.820 Logan Meadow Court, Fuquay Varina, NC 27526
MLS# 10158569Listed by: RELEVATE REAL ESTATE INC. - Open Sat, 3 to 5pmNew
$624,900Active4 beds 4 baths3,240 sq. ft.1413 Matisse Drive, Fuquay Varina, NC 27526
MLS# 10158503Listed by: NEWS REALTY LLC - Open Sat, 10am to 12pmNew
$689,995Active4 beds 4 baths3,007 sq. ft.1276 Dairy Glen Drive, Fuquay Varina, NC 27526
MLS# 10158488Listed by: TEAM ANDERSON REALTY