168 Potomac River Street, Garner, NC 27529
Local realty services provided by:ERA Live Moore
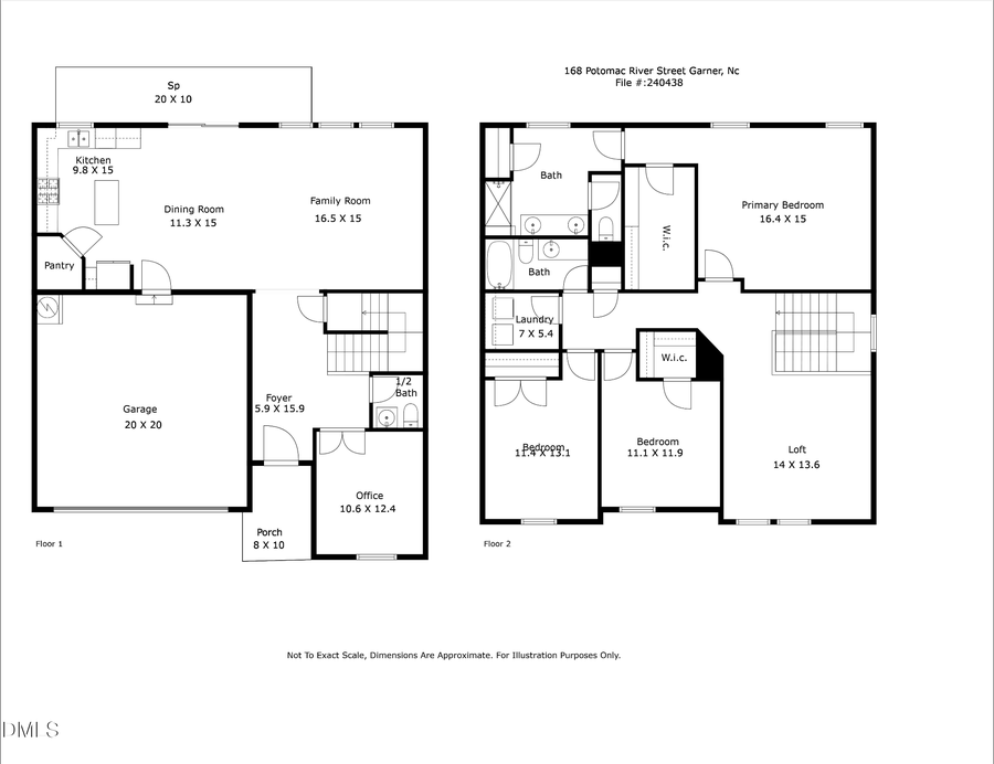
168 Potomac River Street,Garner, NC 27529
$495,000
- 4 Beds
- 3 Baths
- 2,414 sq. ft.
- Single family
- Active
Listed by: austin wood
Office: united real estate triangle
MLS#:10133581
Source:RD
Price summary
- Price:$495,000
- Price per sq. ft.:$205.05
- Monthly HOA dues:$52.33
About this home
Check out this well-maintained, south-facing home in desirable southern Wake County! Gorgeous upgrades throughout: stamped concrete patio, extensive craftsman-style trim in foyer/primary bedroom, and a primary suite built-in closet system! Entertain with ease in the open-concept family/kitchen/dining room. Gourmet kitchen with gas cooking, granite countertops, tile backsplash, and SS appliances. First floor features 9' ceilings and an office/flex room which could easily be used as a bedroom. Upstairs features a spacious primary bedroom with en-suite. Find space for the whole family with two generously sized secondary bedrooms and a loft. Low-maintenance fiber-cement exterior and large covered front porch. Relax in the fully screened extended patio enclosure with a serene view of the woods or enjoy playing in the flat backyard! Minutes from White Oak shopping center and I-40 access--don't miss this one!
Contact an agent
Home facts
- Year built:2022
- Listing ID #:10133581
- Added:1 day(s) ago
- Updated:November 18, 2025 at 12:03 AM
Rooms and interior
- Bedrooms:4
- Total bathrooms:3
- Full bathrooms:2
- Half bathrooms:1
- Living area:2,414 sq. ft.
Heating and cooling
- Cooling:Ceiling Fan(s), Central Air, Zoned
- Heating:Natural Gas
Structure and exterior
- Roof:Shingle
- Year built:2022
- Building area:2,414 sq. ft.
- Lot area:0.21 Acres
Schools
- High school:Wake - South Garner
- Middle school:Wake - East Garner
- Elementary school:Wake - Bryan Road
Utilities
- Water:Public
- Sewer:Public Sewer
Finances and disclosures
- Price:$495,000
- Price per sq. ft.:$205.05
- Tax amount:$4,419
New listings near 168 Potomac River Street
- New
$314,990Active3 beds 3 baths1,558 sq. ft.230 Broomside Avenue, Raleigh, NC 27603
MLS# 10133573Listed by: PULTE HOME COMPANY LLC - New
$540,000Active5 beds 4 baths3,246 sq. ft.77 Ravensworth Drive, Garner, NC 27529
MLS# 10133559Listed by: FATHOM REALTY NC, LLC - New
$424,500Active4 beds 2 baths1,848 sq. ft.1408 Edgebrook Drive, Garner, NC 27529
MLS# 100541596Listed by: DOWN HOME REALTY AND PROPERTY MANAGEMENT, LLC - New
$439,900Active3 beds 3 baths2,024 sq. ft.128 Umbrella Way, Garner, NC 27529
MLS# 10133394Listed by: EXP REALTY LLC - New
$400,211Active3 beds 3 baths1,878 sq. ft.372 White Oak Garden Way #231, Garner, NC 27529
MLS# 10133378Listed by: CLAYTON PROPERTIES GROUP INC - New
$454,165Active4 beds 4 baths2,490 sq. ft.420 White Oak Garden Way #317, Garner, NC 27529
MLS# 10133380Listed by: CLAYTON PROPERTIES GROUP INC - New
$507,000Active4 beds 3 baths3,056 sq. ft.81 Hidden Grove Court, Garner, NC 27529
MLS# 10133312Listed by: ULTRA REALTY INC - New
$470,000Active4 beds 3 baths2,630 sq. ft.306 Springhill Lane, Garner, NC 27529
MLS# 10133288Listed by: CHOICE RESIDENTIAL REAL ESTATE - New
$564,895Active4 beds 3 baths3,209 sq. ft.268 Tennyson Drive, Garner, NC 27529
MLS# 10133241Listed by: LENNAR CAROLINAS LLC