109 Sycamore Drive, Jacksonville, NC 28546
Local realty services provided by:ERA Strother Real Estate
Listed by: alexis k pierson
Office: re/max executive
MLS#:100562956
Source:NC_CCAR
Price summary
- Price:$264,900
- Price per sq. ft.:$184.99
About this home
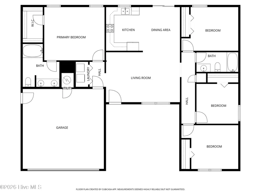
Welcome to this well-maintained 4 bedroom, 2 bathroom home in Aragona Village, offering a functional layout and fresh paint throughout! When you enter the home, you'll be greeted by a comfortable, open living space with vaulted ceilings, creating a bright and inviting atmosphere. The split bedroom floor plan provides privacy, while the kitchen and dining areas flow easily for everyday living. On the left side of the home is the primary suite, boasting a walk-in closet and private bathroom with double vanity and linen closet. On the right side of the home are three spare bedrooms and a second full bathroom.
Outside you'll find a fully fenced backyard with two patios, perfect for pets, play, or grilling out with friends. The property also includes a 2-car garage and a shed for exterior storage needs.
One of the standout features of this neighborhood is access to a community boat launch, making it easy to enjoy time on the water whenever you'd like.
If you're looking for a move-in ready home with space, convenience, outdoor perks and no city taxes, then schedule a showing today!...
Contact an agent
Home facts
- Year built:2005
- Listing ID #:100562956
- Added:2 day(s) ago
- Updated:March 29, 2026 at 10:16 AM
Rooms and interior
- Bedrooms:4
- Total bathrooms:2
- Full bathrooms:2
- Rooms Total:6
- Flooring:Carpet, Laminate, Vinyl
- Kitchen Description:Dishwasher, Refrigerator
- Bedroom Description:Walk-In Closet(s)
- Living area:1,432 sq. ft.
Heating and cooling
- Cooling:Central Air
- Heating:Electric, Heat Pump, Heating
- Central air:Yes
Structure and exterior
- Roof:Architectural Shingle
- Year built:2005
- Building area:1,432 sq. ft.
- Lot area:0.24 Acres
- Construction Materials:Vinyl Siding, Wood Frame
- Exterior Features:Patio
- Foundation Description:Slab
- Levels:1 Story
Schools
- High school:White Oak
- Middle school:Hunters Creek
- Elementary school:Morton
Utilities
- Water:Water Connected
- Sewer:Sewer Connected
Finances and disclosures
- Price:$264,900
- Price per sq. ft.:$184.99
Features and amenities
- Appliances:Dishwasher, Refrigerator
- Laundry features:In Hall, Laundry Closet
- Amenities:Ceiling Fan(s), Ramp, Vaulted Ceiling(s), Walk-In Closet(s)
Parking
- Total parking spaces:2
- Parking description:Attached Garage, Garage Door Opener, Paved
- Garage:Yes
New listings near 109 Sycamore Drive
- New
$168,000Active2 beds 2 baths1,368 sq. ft.211 Bracken Place, Jacksonville, NC 28540
MLS# 100563342Listed by: ANCHOR & CO. OF EASTERN NORTH CAROLINA - New
$243,000Active3 beds 2 baths1,387 sq. ft.409 Jarman Street, Jacksonville, NC 28540
MLS# 100563356Listed by: REAL BROKER LLC - New
$100,000Active0.57 Acres147 Bratton Drive, Jacksonville, NC 28540
MLS# 100563288Listed by: COLDWELL BANKER SEA COAST ADVANTAGE - JACKSONVILLE - New
$299,900Active3 beds 2 baths1,585 sq. ft.217 Merin Height Road, Jacksonville, NC 28546
MLS# 100563260Listed by: ANCHOR & CO. OF EASTERN NORTH CAROLINA - New
$220,000Active3 beds 2 baths1,064 sq. ft.625 Shadowridge Road, Jacksonville, NC 28546
MLS# 100563238Listed by: BERKSHIRE HATHAWAY HOMESERVICES CAROLINA PREMIER PROPERTIES - New
$289,000Active3 beds 2 baths1,318 sq. ft.408 Carole Drive, Jacksonville, NC 28540
MLS# 100563148Listed by: RED DOOR REALTY NC, INC - New
$468,000Active5 beds 5 baths3,317 sq. ft.304 Water Wagon Trail, Jacksonville, NC 28546
MLS# 100563163Listed by: TERRI ALPHIN SMITH & CO - New
$344,340Active4 beds 2 baths1,774 sq. ft.311 Merchant Point Boulevard #Lot 69, Jacksonville, NC 28546
MLS# 100563126Listed by: D.R. HORTON, INC - New
$329,900Active3 beds 2 baths1,714 sq. ft.709 Cattail Court, Jacksonville, NC 28540
MLS# 100563083Listed by: CENTURY 21 CHAMPION REAL ESTATE - New
$518,000Active4 beds 4 baths3,878 sq. ft.500 Huggins Way, Jacksonville, NC 28546
MLS# 100563088Listed by: TERRI ALPHIN SMITH & CO