235 Sequoia Drive #2127, Louisburg, NC 27549
Local realty services provided by:ERA Live Moore
235 Sequoia Drive #2127,Louisburg, NC 27549
$305,000
- 3 Beds
- 2 Baths
- - sq. ft.
- Single family
- Sold
Listed by: jim allen
Office: coldwell banker hpw
MLS#:10137723
Source:RD
Sorry, we are unable to map this address
Price summary
- Price:$305,000
- Monthly HOA dues:$99.42
About this home
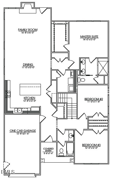
Custom-built ranch by Ken Harvey Homes situated inside the gated Lake Royale community. Enjoy single-level living in this 1,773 square foot home featuring 3 bedrooms and 2 baths. The attached 1-car garage and bright open-concept layout provide both convenience and modern sophistication.
The main living areas showcase 7'' wide waterproof LVP flooring and elegant crown molding throughout. A gourmet kitchen serves as the heart of the home with White Satin cabinetry and Moonlight granite countertops. The space is complete with an Ice Gloss herringbone tile backsplash, a center island with storage, and a large walk-in pantry. High-end stainless appliances and a seamless flow to the family room make this home perfect for entertaining.
The spacious Owner's Suite offers a private retreat with a triple window and a large walk-in closet. Its spa-like bath includes a dual quartz vanity and a walk-in tiled shower featuring a bench and shampoo niche. In the family room, a stone surround gas log fireplace creates a warm focal point for the home. Large glass doors open to a covered rear porch that provides a private backyard oasis.
Experience resort-style living in the Triangle Area with access to a 345-acre lake for boating and fishing. Community amenities include multiple beaches, a swimming pool, tennis courts, and a clubhouse. This move-in ready home offers a seamless commute to Downtown Raleigh and major hubs via US-401 and NC-98. Energy-efficient features and 24-hour gated security ensure comfort and peace of mind in this Franklin County gem....
Contact an agent
Home facts
- Year built:2025
- Listing ID #:10137723
- Added:98 day(s) ago
- Updated:March 19, 2026 at 06:47 AM
Rooms and interior
- Bedrooms:3
- Total bathrooms:2
- Full bathrooms:2
- Rooms Total:6
- Flooring:Carpet, Tile, Vinyl
- Dining Description:Eat-in Kitchen
- Bathrooms Description:Bathtub/Shower Combination, Double Vanity, Separate Shower, Walk-In Shower
- Kitchen Description:Dishwasher, Electric Range, Electric Water Heater, Microwave, Plumbed For Ice Maker, Self Cleaning Oven, Stainless Steel Appliance(s)
- Bedroom Description:Master Downstairs
- Basement Description:Crawl Space
Heating and cooling
- Cooling:Central Air
- Heating:Central, Fireplace(s)
- Central air:Yes
Structure and exterior
- Roof:Shingle
- Year built:2025
- Lot Features:Landscaped
- Architectural Style:Ranch, Transitional
- Construction Materials:Stone, Vinyl Siding
- Exterior Features:Covered, Front Porch, Rain Gutters, Rear Porch
- Foundation Description:Permanent, Raised
- Levels:One
Schools
- High school:Franklin - Bunn
- Middle school:Franklin - Bunn
- Elementary school:Franklin - Ed Best
Utilities
- Water:Public, Water Connected
- Sewer:Septic Available, Septic Tank
Finances and disclosures
- Price:$305,000
Features and amenities
- Appliances:Dishwasher, Electric Range, Electric Water Heater, Microwave, Plumbed For Ice Maker, Self Cleaning Oven, Stainless Steel Appliance(s)
- Laundry features:Electric Dryer Hookup, Inside, Laundry Room, Main Level, Washer Hookup
- Amenities:Ceiling Fan(s), Clubhouse, Crown Molding, Electric Water Heater, Golf Course, Granite Counters, Kitchen Island, Management, Open Floorplan, Pantry, Playground, Pond Year Round, Pool, Quartz Counters, Smooth Ceilings, Tennis Court(s), Trail(s), Tray Ceiling(s), Walk-In Closet(s)
- Pool features:Association
Parking
- Parking description:Attached, Concrete, Garage, Garage Door Opener, Garage Faces Side
- Garage:Yes
- Garage spaces:1
New listings near 235 Sequoia Drive #2127
- New
$39,500Active0.34 Acres112 Buffalo Drive, Louisburg, NC 27549
MLS# 10155606Listed by: ALLEN TATE/ LAKE ROYALE - Coming Soon
$649,000Coming Soon3 beds 3 baths562 Peach Orchard Road, Louisburg, NC 27549
MLS# 10155475Listed by: RAYNOR REALTY POWERED BY REAL - New
$197,000Active7.96 Acres0 Pete Smith Road, Louisburg, NC 27549
MLS# 10155489Listed by: A.C.E. REAL ESTATE SERVICES - New
$145,000Active0.44 Acres125 Cimarron Drive, Louisburg, NC 27549
MLS# 10155415Listed by: MARK SPAIN REAL ESTATE - New
$295,000Active3 beds 2 baths1,198 sq. ft.109 Wy Drive, Louisburg, NC 27549
MLS# 10155351Listed by: ALLEN TATE/ LAKE ROYALE - New
$360,000Active3 beds 3 baths1,740 sq. ft.158 Nakoma Drive, Louisburg, NC 27549
MLS# 10155293Listed by: COLDWELL BANKER HPW - New
$745,000Active5 beds 6 baths3,901 sq. ft.1049 Firetower Road, Louisburg, NC 27549
MLS# 10155210Listed by: ALLEN TATE/ LAKE ROYALE - New
$350,000Active5 Acres50 Nipper Lane, Louisburg, NC 27549
MLS# 10155176Listed by: RE/MAX LEGACY - Open Sat, 12 to 4pmNew
$309,990Active4 beds 2 baths1,721 sq. ft.107 Big Dream Court, Louisburg, NC 27549
MLS# 10155088Listed by: STARLIGHT HOMES NC LLC - New
$95,000Active3.8 AcresLot 7 Simon Collie Road, Louisburg, NC 27549
MLS# 10155036Listed by: COLDWELL BANKER HPW