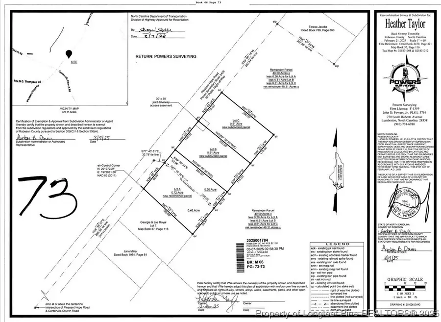
Lot A Pleasant Hope Road, Lumberton, NC 28340
Local realty services provided by:ERA Strother Real Estate
Lot A Pleasant Hope Road,Lumberton, NC 28340
$40,000
- 0.72 Acres
- Lots / Land
- Active
Listed by:heather taylor
Office:taylor made real estate
MLS#:741524
Source:NC_FRAR
Price summary
- Price:$40,000
About this home
Ready to build lot in a gorgeous part of Robeson County! .72 acres of cleared, level, former farmland on Pleasant Hope Rd, amongst the gently rolling fields of Southern Robeson County. Conveniently located, only a 6 minute drive from the intersection of I-95 and US-74! 45 minute drive to Fayetteville or Florence! 2 hours straight down US-74 to Charlotte! 1 hour 30 minutes to Myrtle Beach or Wilmington!! between Lumberton and Fairmont. 150' of road frontage. Huge, old pecan trees line one side of the lot. Perfect, shady spot to build your dream home! Zoned County Residential Agricultural. Access to county water at the road.No water tap or septic system currently installed. No soil evaluation on file.A lot line adjustment was done recently to increase the size to .72 acres. Recorded Plat on file (GIS is not accurate at this time). Additional adjoining acreage is available.Will consider seller financing with at least a 20% down payment, 8% interest for no longer than a 10 year term.
Contact an agent
Home facts
- Listing ID #:741524
- Added:173 day(s) ago
- Updated:August 30, 2025 at 03:00 PM
Structure and exterior
- Lot area:0.72 Acres
Schools
- High school:Robeson County Schools
- Middle school:Robeson County Schools
- Elementary school:Robeson Co Schools
Utilities
- Water:Public, Water Available
- Sewer:Septic Tank
Finances and disclosures
- Price:$40,000
New listings near Lot A Pleasant Hope Road
- New$154,000Active3 beds 1 baths1,328 sq. ft.
2067 N Broadridge Road, Lumberton, NC 28358
MLS# LP750849Listed by: COX REALTY AND APPRAISAL INC. - New$179,500Active3 beds 2 baths1,593 sq. ft.
4900 Independence Drive #10, Lumberton, NC 28358
MLS# 750777Listed by: COSTELLO REAL ESTATE AND INVESTMENTS - New$90,000Active2 beds 1 baths990 sq. ft.
59 Crescent Street, Lumberton, NC 28358
MLS# LP750835Listed by: SWEET MAGNOLIA REALTY, LLC. - New$44,600Active3 beds 2 baths1,469 sq. ft.
122 Orange Street, Lumberton, NC 28358
MLS# 4306021Listed by: REALHOME SERVICES AND SOLUTIONS - New$22,500Active0.46 Acres
Old Tower Road, Lumberton, NC 28360
MLS# 750783Listed by: REALTY ONE GROUP HERITAGE - New$279,900Active4 beds 3 baths2,055 sq. ft.
3880 Kale Drive, Lumberton, NC 28358
MLS# LP750657Listed by: CENTURY 21 THE REAL ESTATE CENTER - New$719,500Active4 beds 5 baths4,316 sq. ft.
1302 Oakridge Boulevard, Lumberton, NC 28358
MLS# 750662Listed by: CENTURY 21 THE REAL ESTATE CENTER - New$276,900Active3 beds 2 baths2,292 sq. ft.
196 Kensington Street, Lumberton, NC 28358
MLS# LP750613Listed by: CENTURY 21 THE REAL ESTATE CENTER - New$172,000Active3 beds 2 baths1,442 sq. ft.
4105 Vann Drive, Lumberton, NC 28358
MLS# 100531811Listed by: LEWIS REALTY - New$49,900Active4.19 Acres
00 Bessie, Lumberton, NC 28358
MLS# 100531803Listed by: MOSSY OAK PROPERTIES LAND AND FARMS