313 Madres Lane, Morrisville, NC 27560
Local realty services provided by:ERA Live Moore
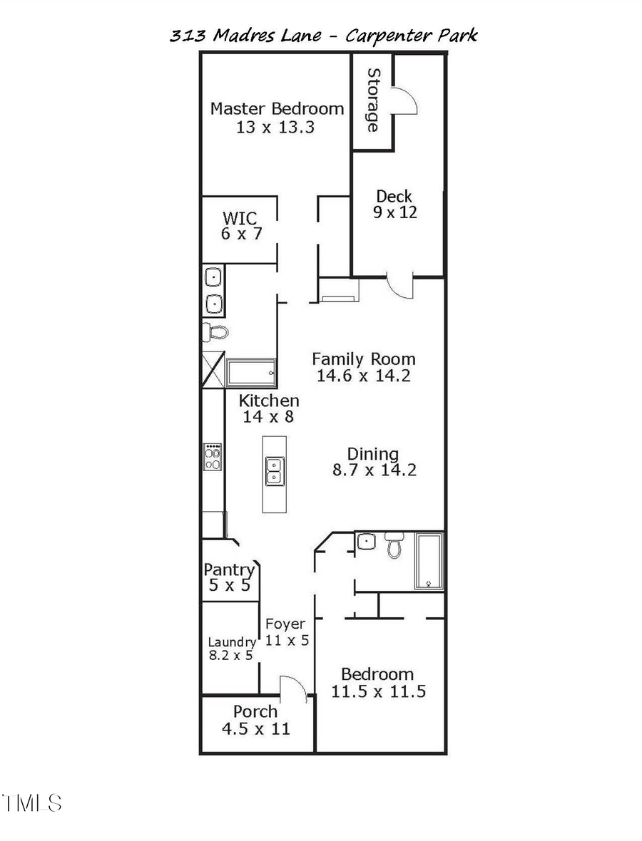
313 Madres Lane,Morrisville, NC 27560
$349,900
- 2 Beds
- 2 Baths
- 1,287 sq. ft.
- Townhouse
- Active
Listed by:cindy bright
Office:my dog tess, inc.
MLS#:10111584
Source:RD
Price summary
- Price:$349,900
- Price per sq. ft.:$271.87
- Monthly HOA dues:$239
About this home
Move-in ready 2-bedroom end-unit townhome in sought-after Carpenter Park neighborhood. Large bedrooms with tons of storage space. 2 closets in the primary bedroom. Gas-log fireplace in the open family room. The home has been freshly painted throughout. Raised deck overlooks permanent natural area. No worries about anyone building on the other side. Hatcher Creek Greenway is just through the trees.
Contact an agent
Home facts
- Year built:2006
- Listing ID #:10111584
- Added:68 day(s) ago
- Updated:October 02, 2025 at 12:39 PM
Rooms and interior
- Bedrooms:2
- Total bathrooms:2
- Full bathrooms:2
- Living area:1,287 sq. ft.
Heating and cooling
- Cooling:Ceiling Fan(s), Central Air, Electric
- Heating:Fireplace(s), Forced Air, Natural Gas
Structure and exterior
- Roof:Asphalt, Shingle
- Year built:2006
- Building area:1,287 sq. ft.
- Lot area:0.04 Acres
Schools
- High school:Wake - Green Hope
- Middle school:Wake - Alston Ridge
- Elementary school:Wake - Carpenter
Utilities
- Water:Public, Water Connected
- Sewer:Public Sewer, Sewer Connected
Finances and disclosures
- Price:$349,900
- Price per sq. ft.:$271.87
- Tax amount:$3,298
New listings near 313 Madres Lane
- Open Fri, 4 to 6pmNew$400,000Active3 beds 3 baths1,737 sq. ft.
1016 Brightskies Street Street, Morrisville, NC 27560
MLS# 10125092Listed by: EXP REALTY LLC - New$835,000Active7 beds 5 baths4,246 sq. ft.
2129 Glade Valley Lane, Morrisville, NC 27560
MLS# 10125066Listed by: KELLER WILLIAMS REALTY CARY - Coming Soon$460,000Coming Soon3 beds 3 baths
605 Courthouse Drive, Morrisville, NC 27560
MLS# 10125033Listed by: COLDWELL BANKER ADVANTAGE - New$408,900Active3 beds 3 baths2,246 sq. ft.
102 Crusaders Drive #279, Morrisville, NC 27560
MLS# 10124162Listed by: TLS REALTY LLC - Open Sat, 11am to 2pmNew$729,900Active4 beds 3 baths2,880 sq. ft.
111 Governors House Drive, Morrisville, NC 27560
MLS# 10124102Listed by: KELLER WILLIAMS REALTY - Open Sun, 2 to 4pmNew$350,000Active3 beds 3 baths1,518 sq. ft.
204 Hickory Meadow Circle, Morrisville, NC 27560
MLS# 10124021Listed by: KELLER WILLIAMS REALTY CARY - New$860,000Active6 beds 4 baths4,381 sq. ft.
1148 Survada Lane, Morrisville, NC 27560
MLS# 10123930Listed by: KENDAHL MCINTYRE REAL ESTATE - New$625,000Active3 beds 3 baths2,313 sq. ft.
2032 Kirkhaven Road, Morrisville, NC 27560
MLS# 10123903Listed by: COMPASS -- CHAPEL HILL - DURHAM - New$450,000Active3 beds 3 baths2,179 sq. ft.
5320 Jessip Street, Morrisville, NC 27560
MLS# 10123833Listed by: COMPASS -- RALEIGH - New$612,500Active4 beds 3 baths2,869 sq. ft.
211 Fortress Drive, Morrisville, NC 27560
MLS# 10123862Listed by: BERKSHIRE HATHAWAY HOMESERVICE