205 Back Street, Newport, NC 28570
Local realty services provided by:ERA Strother Real Estate
205 Back Street,Newport, NC 28570
$2,750,000
- 4 Beds
- 4 Baths
- 3,923 sq. ft.
- Single family
- Active
Listed by: kimberly malone gay
Office: malone realty
MLS#:100548377
Source:NC_CCAR
Price summary
- Price:$2,750,000
- Price per sq. ft.:$700.99
About this home
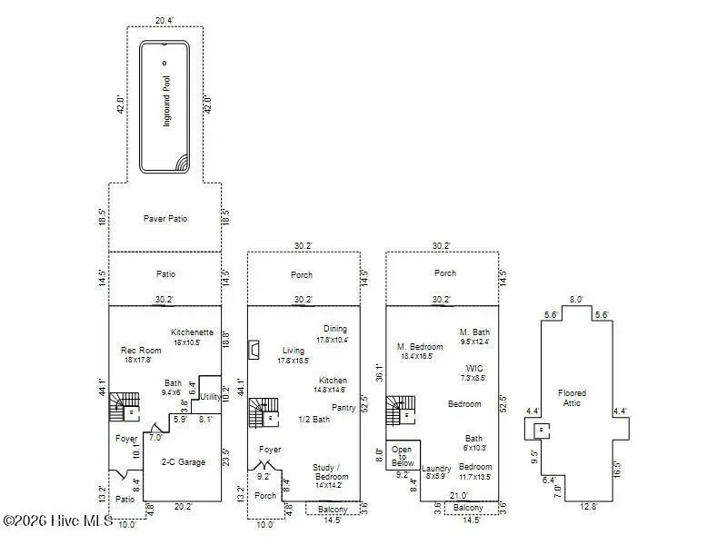
Waterfront Luxury Redefined... Welcome to an extraordinary waterfront Intracoastal Waterway sanctuary where timeless craftsmanship meets modern luxury. This impeccably designed residence offers refined elegance, exceptional attention to detail, and resort-style amenities- crafted for those who expect nothing less than the best. From the moment you arrive, the home impresses with its paver driveway, mature professional landscaping, inground pool, and expansive porches overlooking the ICW. This one-of-a-kind home draws inspiration from the panoramic views. The result is a blend of coastal living and cutting edge design with a French flair. Inside, wide-plank white oak hardwood floors, soaring 10-foot ceilings, and exquisite custom millwork create a warm, yet sophisticated ambiance. A dramatic two-story foyer, shiplap accents, and antique barn doors, add character and charm throughout. The gourmet kitchen is a showpiece, featuring custom cabinetry with soft-close drawers, lighted glass cabinets, farmhouse sink, walk-in pantry, and an oversized solid marble island perfect for entertaining. Under-cabinet lights, and premium finishes make this space as functional, as it is beautiful. This 4 bedroom, 3 1/2 bath residence has an elevator servicing to the 4th floor attic. Offering unique storage options not often found in Charleston Style homes. Designed for effortless living and entertaining, the home offers an outdoor kitchen, gas fire pit, gas-heated pool, waterside porches enclosed with motorized hurricane screens. A private hog slat walkway and viewing platform extend over the water , complemented by a seawall and decorative second level retaining wall. Additional highlights include: Whole house Generac generator, Surround Sound/ Security System, Epoxy Flooring in Garage, Gas interior fireplace, some Tongue-and Groove Ceilings, Tankless Rinnai Water Heater, Fenced in yard, nestled within the gated community of Cannonsgate. Boatslip option to be sold separately...
Contact an agent
Home facts
- Year built:2017
- Listing ID #:100548377
- Added:126 day(s) ago
- Updated:May 16, 2026 at 10:19 AM
Rooms and interior
- Bedrooms:4
- Total bathrooms:4
- Full bathrooms:3
- Half bathrooms:1
- Rooms Total:8
- Flooring:Tile, Wood
- Kitchen Description:Dishwasher, Kitchen Island, Pantry, Refrigerator
- Bedroom Description:Walk-In Closet(s)
- Living area:3,923 sq. ft.
Heating and cooling
- Cooling:Heat Pump
- Heating:Forced Air, Heat Pump, Heating, Zoned
Structure and exterior
- Roof:Aluminum
- Year built:2017
- Building area:3,923 sq. ft.
- Lot area:0.28 Acres
- Construction Materials:Brick, Fiber Cement, Wood Frame
- Exterior Features:Covered, Porch
- Foundation Description:Slab
- Levels:Three Or More
Schools
- High school:Croatan
- Middle school:Broad Creek
- Elementary school:Bogue Sound
Utilities
- Water:County Water
- Sewer:Sewer Connected
Finances and disclosures
- Price:$2,750,000
- Price per sq. ft.:$700.99
Features and amenities
- Appliances:Dishwasher, Dryer, Refrigerator, Washer
- Laundry features:Dryer, Laundry Room, Washer, Washer Hookup
- Amenities:Clubhouse, Gated, Jogging Path, Management, Marina, Pickleball, Picnic Area, Playground, Ramp, Security, Street Lights, Tennis Court(s), Trail(s), Walk-In Closet(s), Whole-Home Generator
Parking
- Total parking spaces:2
- Parking description:Attached Garage
- Garage spaces:2
New listings near 205 Back Street
- New
$286,000Active3 beds 1 baths1,189 sq. ft.5250 Business Drive, Newport, NC 28570
MLS# 100574340Listed by: RE/MAX ELITE REALTY GROUP - New
$1,999,000Active3 beds 4 baths3,632 sq. ft.435 Munden Farm Road, Newport, NC 28570
MLS# 100574365Listed by: COLLECTIVE REALTY LLC - New
$500,000Active11.6 Acres3115 Mill Creek Road, Newport, NC 28570
MLS# 100573833Listed by: KELLER WILLIAMS CRYSTAL COAST - New
$225,000Active3 Acres3115 Mill Creek Road, Newport, NC 28570
MLS# 100573834Listed by: KELLER WILLIAMS CRYSTAL COAST - New
$325,000Active8 Acres3115 Mill Creek Road, Newport, NC 28570
MLS# 100573836Listed by: KELLER WILLIAMS CRYSTAL COAST - New
$375,000Active3 beds 2 baths2,280 sq. ft.157 Hall Road, Newport, NC 28570
MLS# 100573528Listed by: BERKSHIRE HATHAWAY HOMESERVICES CAROLINA PREMIER PROPERTIES
$366,740Pending3 beds 2 baths1,634 sq. ft.357 Revolution Road, Newport, NC 28570
MLS# 100572591Listed by: JC JACKSON HOMES, LLC- New
$1,495,000Active5 beds 6 baths3,105 sq. ft.204 Back Street, Newport, NC 28570
MLS# 100572345Listed by: BLUEWATER REAL ESTATE - EI - New
$789,750Active5 beds 3 baths2,861 sq. ft.432 Lanyard Drive, Newport, NC 28570
MLS# 100572051Listed by: NATIONAL LAND REALTY NC - New
$397,900Active3 beds 2 baths1,546 sq. ft.2328 N Lakeview Drive, Newport, NC 28570
MLS# 100571916Listed by: KELLER WILLIAMS CRYSTAL COAST