11816 Straley Place, Raleigh, NC 27614
Local realty services provided by:ERA Strother Real Estate
11816 Straley Place,Raleigh, NC 27614
$750,000
- 4 Beds
- 3 Baths
- - sq. ft.
- Single family
- Coming Soon
Upcoming open houses
- Sat, Apr 1101:00 pm - 04:00 pm
Listed by: len talarico
Office: marquis realty
MLS#:10158568
Source:RD
Price summary
- Price:$750,000
About this home
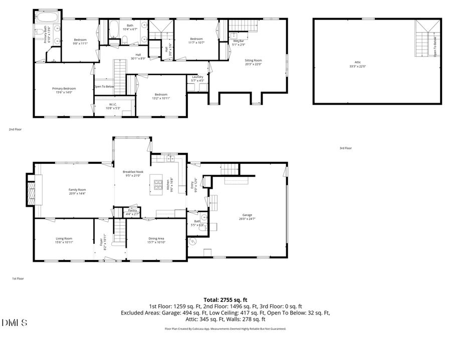
**Showings begin 4/10**Ideally located in North Raleigh near Falls Lake, 11816 Straley Place features 4 bedrooms, 2.5 baths, and 3,000 square feet set on a beautifully wooded homesite of over 1.1 acres! This meticulously maintained property offers the rare opportunity to enjoy exceptional privacy and mature natural surroundings while remaining just minutes from shopping, dining, major commuter routes, and outdoor recreation.
Inside, the home features a versatile and thoughtfully designed layout that blends comfortable everyday living with inviting entertaining spaces. The main level includes formal living and dining rooms and a convenient half bath, while the family room serves as the heart of the home with a beautiful fireplace, custom woodwork, and built-in shelving. It flows seamlessly into the kitchen and breakfast nook, creating a bright, connected gathering space enhanced by skylights overhead. The kitchen is well appointed with granite countertops, island with gas cooktop, and built-in wall oven and microwave. Just off the kitchen, a spacious deck overlooks the private backyard, offering the perfect setting for relaxing evenings or hosting guests. A secondary staircase leads directly to the bonus room for added convenience.
Upstairs, you'll find four bedrooms including a spacious primary suite with en suite bath, along with a full hall bath and a large bonus/recreation room ideal for a media space, home office, playroom, or fitness area. A walk-up attic already plumbed for future expansion provides exceptional storage and the opportunity to add additional finished living space if desired.
With no HOA, a whole-home generator, an oversized two-car garage, and timeless custom craftsmanship throughout, this home offers a rare combination of privacy, space, and convenience in one of North Raleigh's most desirable settings!...
Contact an agent
Home facts
- Year built:1989
- Listing ID #:10158568
- Added:1 day(s) ago
- Updated:April 09, 2026 at 09:18 PM
Rooms and interior
- Bedrooms:4
- Total bathrooms:3
- Full bathrooms:2
- Half bathrooms:1
- Rooms Total:15
- Flooring:Carpet, Hardwood, Tile
- Dining Description:Eat-in Kitchen, Living/Dining Room Combination
- Bathrooms Description:Bathtub/Shower Combination, Soaking Tub
- Kitchen Description:Dishwasher, Gas Cooktop, Microwave, Refrigerator
Heating and cooling
- Cooling:Ceiling Fan(s), Central Air, Zoned
- Heating:Floor Furnace, Natural Gas
- Central air:Yes
Structure and exterior
- Roof:Shingle
- Year built:1989
- Lot Features:Back Yard, Corner, Landscaped, Many Trees, Private
- Architectural Style:Traditional
- Construction Materials:Brick, Masonite
- Exterior Features:Fenced Yard, Private Yard, Rain Gutters
- Levels:Bi-Level
Schools
- High school:Wake - Millbrook
- Middle school:Wake - West Millbrook
- Elementary school:Wake - Brassfield
Utilities
- Water:Public, Shared Well
- Sewer:Septic Tank
Finances and disclosures
- Price:$750,000
- Tax amount:$4,618
Features and amenities
- Appliances:Dishwasher, Gas Cooktop, Microwave, Oven, Refrigerator
- Laundry features:Electric Dryer Hookup, Upper Level
- Amenities:Ceiling Fan(s), Crown Molding, Entrance Foyer, Granite Counters, Kitchen Island, Pantry, Storage
Parking
- Parking description:Driveway, Garage
- Garage:Yes
- Garage spaces:2
New listings near 11816 Straley Place
- Open Sat, 1 to 3pmNew
$475,000Active3 beds 2 baths1,420 sq. ft.200 Brandon Court, Raleigh, NC 27609
MLS# 10158768Listed by: COMPASS -- CARY - New
$305,000Active3 beds 2 baths1,303 sq. ft.2316 Carthage Circle, Raleigh, NC 27604
MLS# 10158788Listed by: COSTELLO REAL ESTATE & INVESTM - Open Sat, 2 to 4pmNew
$600,000Active3 beds 2 baths1,902 sq. ft.8305 Wheatstone Lane, Raleigh, NC 27613
MLS# 10158789Listed by: ALLEN TATE/APEX-CENTER STREET - New
$380,705Active3 beds 3 baths1,938 sq. ft.2218 Bright Shore Street #6, Raleigh, NC 27604
MLS# 10158791Listed by: M/I HOMES OF RALEIGH LLC - New
$775,000Active3 beds 3 baths2,161 sq. ft.2004 Varnell, Raleigh, NC 27612
MLS# 10158792Listed by: HODGE & KITTRELL SOTHEBY'S INT - New
$380,705Active3 beds 3 baths1,938 sq. ft.2216 Bright Shore Street #7, Raleigh, NC 27604
MLS# 10158796Listed by: M/I HOMES OF RALEIGH LLC - New
$525,000Active3 beds 3 baths1,730 sq. ft.6716 Holly Mill Court, Raleigh, NC 27613
MLS# 10158806Listed by: SOCIETY REAL ESTATE, LLC - New
$399,000Active3 beds 2 baths1,342 sq. ft.2005 Misty Fog Court, Raleigh, NC 27603
MLS# 10158622Listed by: REDFIN CORPORATION - Open Sat, 2 to 4pmNew
$1,200,000Active4 beds 4 baths2,806 sq. ft.801 Compton Road, Raleigh, NC 27609
MLS# 10158625Listed by: RE/MAX UNITED - New
$7,500,000Active5 beds 8 baths7,235 sq. ft.6004 Canadero Drive, Raleigh, NC 27612
MLS# 10158627Listed by: COMPASS -- RALEIGH