228 Woodsborough Place, Raleigh, NC 27601
Local realty services provided by:ERA Strother Real Estate
Listed by: tina caul, ladondria morris
Office: exp realty llc.
MLS#:10149761
Source:RD
Price summary
- Price:$840,000
- Price per sq. ft.:$403.85
- Monthly HOA dues:$120
About this home
A home that glows with natural light, flows with intention, and connects seamlessly to the energy of the city. This four story contemporary home was crafted for those who appreciate refined simplicity and seamless flow.
Flooded with natural light from oversized Pella windows, the main level offers an open and airy living experience anchored by a sleek fireplace, wide plank white oak flooring, and custom brass lighting that casts a soft glow across every surface. The gourmet kitchen blends form and function with warm oak cabinetry, a stunning waterfall edge quartz island, brushed gold hardware and fixtures, and designer pendants, creating a refined yet approachable heart of the home.
Upstairs, the second floor hosts two bedrooms including the spacious primary suite, each thoughtfully designed for comfort and privacy. The primary bedroom connects to a serene ensuite bath with dual vanities, modern floor to ceiling tile selections, and a frameless glass shower.
As you ascend, motion sensor stair lighting guides your path, revealing meticulous craftsmanship and subtle architectural detail along the way. The top level opens to a rooftop terrace with gas, water, and power connections, ready for gatherings beneath the Raleigh skyline.
A lower level guest suite with private entry offers versatility for guests or a home office. Every inch of this home reflects intentional design and timeless style, from the soft neutral palette to precision trimmed gray doors and contemporary hardware.
Quality craftsmanship meets thoughtful service. This beautifully built home includes a builder blue tape walkthrough, allowing buyers to mark cosmetic touch ups prior to closing, along with a comprehensive new home orientation designed to ensure you feel confident and comfortable with every feature of your home from day one.
Ideally located moments from Fayetteville Street, Moore Square, and Raleigh's celebrated dining scene, 228 Woodsborough Place embodies architectural sophistication and effortless city living....
Contact an agent
Home facts
- Year built:2024
- Listing ID #:10149761
- Added:167 day(s) ago
- Updated:March 27, 2026 at 02:20 PM
Rooms and interior
- Bedrooms:4
- Total bathrooms:4
- Full bathrooms:4
- Rooms Total:7
- Flooring:Hardwood, Tile
- Bathrooms Description:Bathtub/Shower Combination, Walk-In Shower
- Kitchen Description:Dishwasher, Disposal, Stainless Steel Appliance(s)
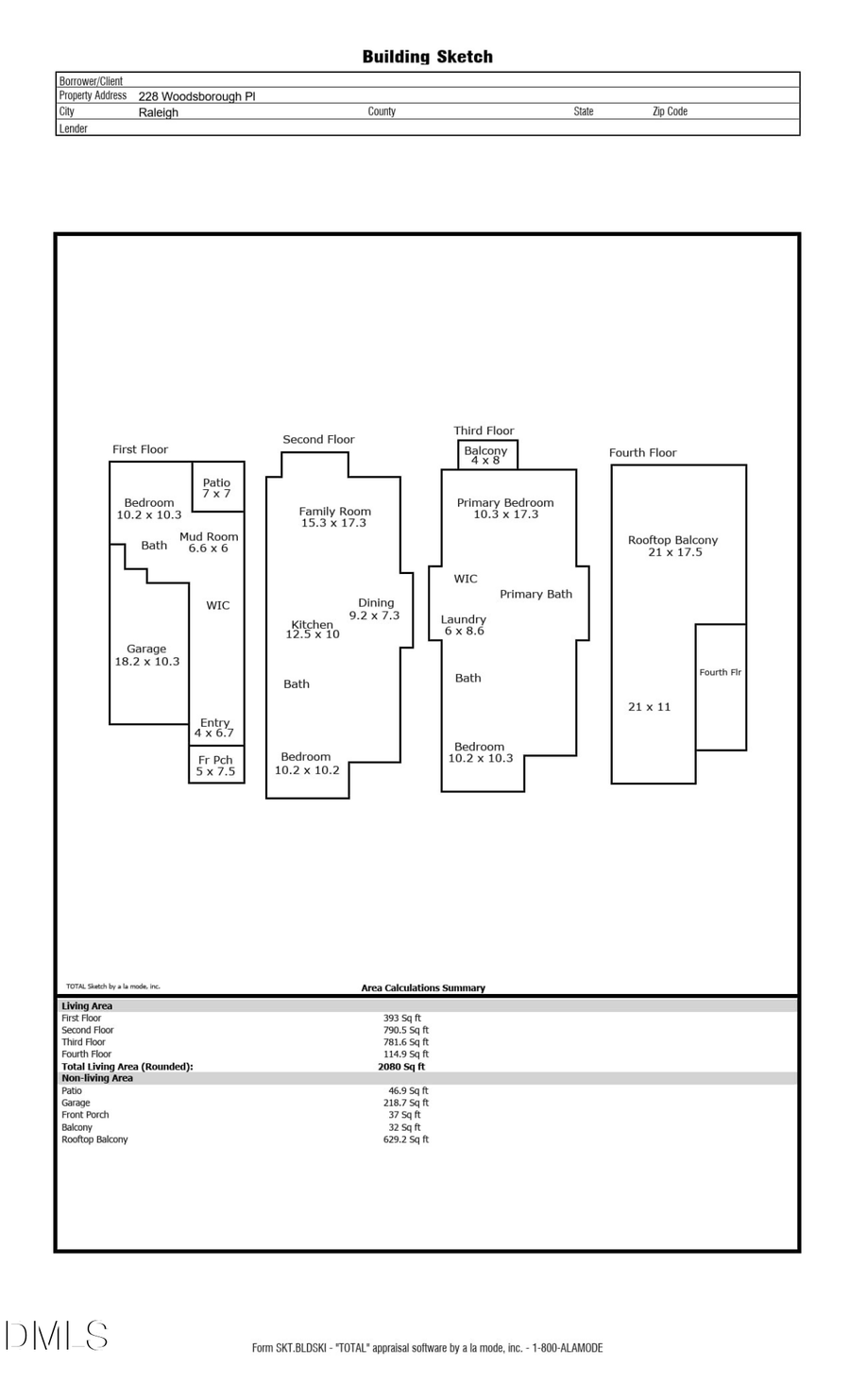
- Living area:2,080 sq. ft.
Heating and cooling
- Cooling:Ceiling Fan(s), Central Air, Electric
- Heating:Central, Electric, Forced Air, Heat Pump
- Central air:Yes
Structure and exterior
- Year built:2024
- Building area:2,080 sq. ft.
- Lot area:0.05 Acres
- Lot Features:Landscaped
- Architectural Style:Contemporary
- Construction Materials:HardiPlank Type
- Exterior Features:Front Porch, Rain Gutters
- Foundation Description:Slab
- Levels:Tri-Level
Schools
- High school:Wake - Broughton
- Middle school:Wake - Moore Square Museum
- Elementary school:Wake - Root
Utilities
- Water:Public
- Sewer:Public Sewer
Finances and disclosures
- Price:$840,000
- Price per sq. ft.:$403.85
- Tax amount:$8,747
Features and amenities
- Appliances:Dishwasher, Disposal, Stainless Steel Appliance(s), Tankless Water Heater
- Laundry features:Laundry Room, Upper Level
- Amenities:Ceiling Fan(s), Kitchen Island, Quartz Counters, Smooth Ceilings, Tankless Water Heater, Walk-In Closet(s)
Parking
- Parking description:Attached, Concrete, Driveway, Garage, Garage Faces Front
- Garage:Yes
- Garage spaces:1
New listings near 228 Woodsborough Place
- New
$1,750,000Active5 beds 5 baths5,219 sq. ft.116 Crestview Road, Raleigh, NC 27609
MLS# 10155715Listed by: COSTELLO REAL ESTATE & INVESTM - New
$252,900Active2 beds 3 baths1,443 sq. ft.2813 Bedfordshire Court, Raleigh, NC 27604
MLS# 10155732Listed by: GROW LOCAL REALTY, LLC - New
$285,000Active2 beds 3 baths1,306 sq. ft.1405 Quarter Point, Raleigh, NC 27615
MLS# 10155652Listed by: HAMPTON & COMPANY REAL ESTATE - Open Sat, 11am to 1pmNew
$725,000Active3 beds 3 baths2,860 sq. ft.9400 Does Run Court, Raleigh, NC 27613
MLS# 10155667Listed by: EXP REALTY LLC - New
$305,000Active-- beds 3 baths1,381 sq. ft.2809 Delco Court, Raleigh, NC 27610
MLS# 10155669Listed by: LEE REALTY AND ASSOCIATES - New
$1,125,000Active3 beds 3 baths2,439 sq. ft.2908 Fairview Road, Raleigh, NC 27608
MLS# 10155673Listed by: CORCORAN DERONJA REAL ESTATE - New
$279,000Active2 beds 3 baths1,364 sq. ft.2021 Rivergate Road #103, Raleigh, NC 27614
MLS# 10155675Listed by: BERKSHIRE HATHAWAY HOMESERVICE - Open Sat, 12 to 3pmNew
$635,000Active4 beds 3 baths2,389 sq. ft.828 Reading Circle, Raleigh, NC 27615
MLS# 10155692Listed by: COSTELLO REAL ESTATE & INVESTM - New
$530,000Active3 beds 3 baths2,408 sq. ft.7804 Milltrace Run, Raleigh, NC 27615
MLS# 10155694Listed by: LONG & FOSTER REAL ESTATE INC/RALEIGH - New
$499,000Active3 beds 3 baths2,477 sq. ft.5600 Cardinal Landing Drive, Raleigh, NC 27603
MLS# 10155697Listed by: COLDWELL BANKER ADVANTAGE