2817 Falls River Avenue, Raleigh, NC 27614
Local realty services provided by:ERA Parrish Realty Legacy Group
2817 Falls River Avenue,Raleigh, NC 27614
$400,000
- 3 Beds
- 2 Baths
- 1,583 sq. ft.
- Single family
- Active
Upcoming open houses
- Sun, Dec 1402:00 pm - 04:00 pm
Listed by: cara pierce
Office: compass -- raleigh
MLS#:10136862
Source:RD
Price summary
- Price:$400,000
- Price per sq. ft.:$252.68
- Monthly HOA dues:$82
About this home
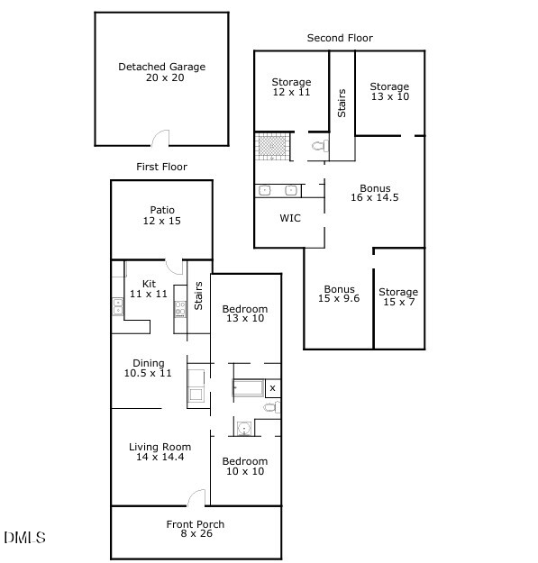
Welcome home to your charming, cozy cottage located in sought-after Bedford at Falls River. Walk out your front door and enjoy sidewalks (both sides!), greenway trails, two resort-style pools, tennis, dog parks, playgrounds, shops and dining - just steps away. Just past your covered front porch you will find a comfortable floor plan the includes 2 bedrooms, full bath and laundry on the main floor. Kitchen and dining room are open and perfect for entertaining. Upstairs you will fall in love the the primary suite with luxury, no-curb tiled shower, water closet, bedroom and sitting areas, plus huge walk in closet. Need storage? There are several walk-in attic areas! And, a 2-car garage. Step outside into your fenced back yard and enjoy the private patio area. Don't wait - this home - this location - this price - it won't last long.
Contact an agent
Home facts
- Year built:2004
- Listing ID #:10136862
- Added:2 day(s) ago
- Updated:December 14, 2025 at 12:22 PM
Rooms and interior
- Bedrooms:3
- Total bathrooms:2
- Full bathrooms:2
- Living area:1,583 sq. ft.
Heating and cooling
- Cooling:Ceiling Fan(s), Central Air
- Heating:Forced Air, Natural Gas
Structure and exterior
- Roof:Shingle
- Year built:2004
- Building area:1,583 sq. ft.
- Lot area:0.1 Acres
Schools
- High school:Wake - Wakefield
- Middle school:Wake - Wakefield
- Elementary school:Wake - Abbotts Creek
Utilities
- Water:Public
- Sewer:Public Sewer
Finances and disclosures
- Price:$400,000
- Price per sq. ft.:$252.68
- Tax amount:$3,357
New listings near 2817 Falls River Avenue
- New
$649,000Active3 beds 1 baths2,170 sq. ft.608 Dennis Avenue, Raleigh, NC 27604
MLS# 10137244Listed by: NAVIGATE REALTY - New
$998,000Active4 beds 3 baths3,112 sq. ft.2610 Dover Road, Raleigh, NC 27608
MLS# 10137231Listed by: BEST INVESTMENT REALTY - New
$303,340Active3 beds 4 baths1,736 sq. ft.3324 Bomore Road #Lot 28, Raleigh, NC 27610
MLS# 10137211Listed by: SM NORTH CAROLINA BROKERAGE - Open Sun, 1 to 6pmNew
$301,440Active3 beds 4 baths1,725 sq. ft.3326 Bomore Road #Lot 29, Raleigh, NC 27610
MLS# 10137205Listed by: SM NORTH CAROLINA BROKERAGE - New
$304,990Active3 beds 3 baths1,674 sq. ft.1316 Rollman Farm Road, Raleigh, NC 27603
MLS# 10137197Listed by: ESTEEM PROPERTIES - New
$274,990Active3 beds 3 baths1,564 sq. ft.1237 Rollman Farm Road, Raleigh, NC 27603
MLS# 10137198Listed by: ESTEEM PROPERTIES - New
$279,990Active3 beds 3 baths1,564 sq. ft.576 Wheatland Country Road, Raleigh, NC 27603
MLS# 10137200Listed by: ESTEEM PROPERTIES - Coming Soon
$975,000Coming Soon3 beds 3 baths709 W North Street, Raleigh, NC 27603
MLS# 10137183Listed by: RIG REAL ESTATE LLC - New
$270,000Active2 beds 2 baths1,069 sq. ft.2305 Dandridge Drive, Raleigh, NC 27610
MLS# 10137179Listed by: HAMPTON & COMPANY REAL ESTATE - New
$319,900Active3 beds 2 baths1,441 sq. ft.1317 Wrentree Circle, Raleigh, NC 27610
MLS# 10137175Listed by: GROW LOCAL REALTY, LLC