320 S Tarboro Street, Raleigh, NC 27610
Local realty services provided by:ERA Strother Real Estate
320 S Tarboro Street,Raleigh, NC 27610
$789,900
- 4 Beds
- 4 Baths
- 2,545 sq. ft.
- Single family
- Active
Listed by: johnny chappell, kalpna jean patel
Office: compass -- raleigh
MLS#:10152636
Source:RD
Price summary
- Price:$789,900
- Price per sq. ft.:$310.37
About this home
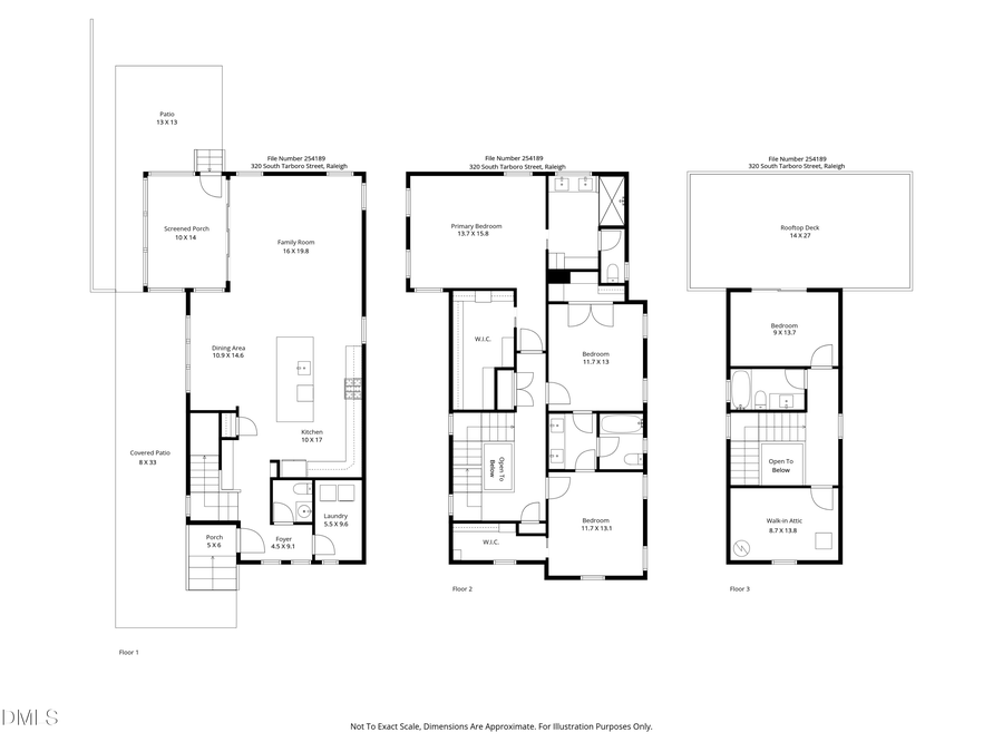
Shaped by Latin Modernist design with presence, proportion, and a point of view. Welcome to 320 S Tarboro St. Designed and built by the architect as his personal residence, where light and air carry as much weight as concrete or wood. With 2,545 square feet, 4 bedrooms and 3 1/2 baths, the home lives larger than its measurements suggest. Construction decisions favor simplicity and calm. Acoustic insulation softens interior sound, and every opening is placed with purpose. The result is a home that feels settled, composed, and intelligent in the way it lives.
The exterior meets the street with quiet assurance, while the interior moves at its own grounded tempo. Inside, light gathers at the central stair where oak treads and slender uprights rise beneath a skylight that threads illumination through all three levels.
The main living space and kitchen form a continuous volume defined by clean geometry and natural light. Quartz surfaces and custom cabinetry set a measured tone, while durable luxury vinyl plank flooring supports the reality of daily life. The atmosphere is open yet anchored. A screened porch extends the living environment outward with the kind of effortless connection making indoor and outdoor living feel cohesive.
On the private level, a buddy bath links two well-proportioned bedrooms, creating a sense of symmetry and ease. The primary suite completes the composition with soft light, and a calm that feels both deliberate and effortless.
A walk-in attic storage room adds everyday practicality to the top floor, grounding the home's design with thoughtful function. The flexible room nearby adapts to shifting rhythms as a studio, office, guest retreat, or creative extension of the home. It opens to a rooftop terrace set within the canopy, offering breathing room, skyline glimpses, and a view of the city's next chapter taking shape below.
That change is already beginning nearby. The former DMV site has entered a city-led redevelopment, transforming the area into a civic and anchor. Moore Square offers shaded lawn and open-air community fun. Chavis Park brings movement and play with its historic carousel, while Dorothea Dix stretches into wide green fields with Gibson Play Park tucked inside its landscape. Red Hat Amphitheater, CAM Raleigh, and neighboring studios infuse art and conversation into the district and keep you in tune with the cultural rhythm of the city. Around them, Raleigh's food scene hums with purpose. The location also opens the door for more than one kind of ownership. With Raleigh's parks, museums, and cultural institutions within easy reach, the home presents an exceptional opportunity for an investor seeking a high-performing short-term rental or design-focused urban retreat. Architect-owned and set within an area of continued investment, it is well positioned for both personal enjoyment and long-term value....
Contact an agent
Home facts
- Year built:2021
- Listing ID #:10152636
- Added:48 day(s) ago
- Updated:May 01, 2026 at 03:17 PM
Rooms and interior
- Bedrooms:4
- Total bathrooms:4
- Full bathrooms:3
- Half bathrooms:1
- Rooms Total:8
- Flooring:Hardwood, Tile, Vinyl
- Dining Description:Eat-in Kitchen, Kitchen/Dining Room Combination, Living/Dining Room Combination
- Bathrooms Description:Bathtub/Shower Combination, Double Vanity, Shower Only, Water Closet
- Kitchen Description:Dishwasher, Disposal, ENERGY STAR Qualified Appliances, Plumbed For Ice Maker, Range Hood, Self Cleaning Oven, Stainless Steel Appliance(s)
- Living area:2,545 sq. ft.
Heating and cooling
- Cooling:Ceiling Fan(s), Central Air, ENERGY STAR Qualified Equipment, Electric, Heat Pump, Zoned
- Heating:Central, Electric, Forced Air
- Central air:Yes
Structure and exterior
- Roof:Asphalt, Shingle
- Year built:2021
- Building area:2,545 sq. ft.
- Lot area:0.09 Acres
- Lot Features:Back Yard, Few Trees, Interior Lot, Level, Near Public Transit, Partially Cleared, Rectangular Lot
- Architectural Style:Contemporary
- Construction Materials:Block, Board & Batten Siding, Fiber Cement, Lap Siding, Low VOC Paint/Sealant/Varnish, Radiant Barrier
- Exterior Features:Awning(s), Covered, Deck, Fenced Yard, Front Porch, Patio, Private Yard, Rain Gutters, Rear Porch, Screened, Side Porch
- Foundation Description:Block, Permanent
- Levels:Three Or More
Schools
- High school:Wake - Enloe
- Middle school:Wake - Ligon
- Elementary school:Wake - Hunter
Utilities
- Water:Public, Water Connected
- Sewer:Public Sewer, Sewer Connected
Finances and disclosures
- Price:$789,900
- Price per sq. ft.:$310.37
- Tax amount:$7,417
Features and amenities
- Appliances:Dishwasher, Disposal, ENERGY STAR Qualified Appliances, Plumbed For Ice Maker, Range Hood, Self Cleaning Oven, Smart Appliance(s), Stainless Steel Appliance(s), Water Heater
- Laundry features:Electric Dryer Hookup, Laundry Room, Main Level, Washer Hookup
- Amenities:Built-in Features, Ceiling Fan(s), Entrance Foyer, High Ceilings, High Speed Internet, Kitchen Island, Open Floorplan, Quartz Counters, Recessed Lighting, Smooth Ceilings, Vaulted Ceiling(s), Walk-In Closet(s), Water Heater
Parking
- Parking description:Concrete, Driveway, Gravel, Off Street
New listings near 320 S Tarboro Street
- New
$750,000Active4 beds 3 baths3,149 sq. ft.2728 Snowy Meadow Court, Raleigh, NC 27614
MLS# 10164081Listed by: NEST REALTY OF THE TRIANGLE - New
$885,000Active4 beds 4 baths3,375 sq. ft.8101 Standing Stone Court, Raleigh, NC 27613
MLS# 10164101Listed by: EXP REALTY LLC - New
$439,900Active3 beds 2 baths1,167 sq. ft.2239 Rumson Road, Raleigh, NC 27610
MLS# 10164086Listed by: CAMBRIDGE & ASSOC. R.E. GROUP - New
$335,000Active4 beds 3 baths2,638 sq. ft.2917 Barrington Drive, Raleigh, NC 27610
MLS# 10164091Listed by: CHOICE RESIDENTIAL REAL ESTATE - New
$349,900Active3 beds 4 baths1,827 sq. ft.5411 Vista View Court, Raleigh, NC 27612
MLS# 10164047Listed by: REAL BROKER, LLC - New
$1,055,000Active4 beds 4 baths4,213 sq. ft.1604 Yates Wheel Way, Raleigh, NC 27606
MLS# 10164053Listed by: MORTON BRADBURY REAL ESTATE GROUP - New
$240,000Active3 beds 2 baths1,700 sq. ft.1311 Canyon Rock Court #U105, Raleigh, NC 27610
MLS# 10164058Listed by: LONG & FOSTER REAL ESTATE INC/RALEIGH - Open Sun, 11am to 1pmNew
$475,000Active3 beds 4 baths2,525 sq. ft.2829 Livery Way, Raleigh, NC 27603
MLS# 10164062Listed by: COMPASS -- CARY - Open Sun, 2 to 4pmNew
$319,000Active3 beds 1 baths1,214 sq. ft.2831 Friar Tuck Road, Raleigh, NC 27610
MLS# 10164067Listed by: EXP REALTY LLC - New
$990,000Active5 beds 5 baths3,438 sq. ft.7253 Manor Oaks Drive, Raleigh, NC 27615
MLS# 10164070Listed by: KELLER WILLIAMS LEGACY