1960 Salisbury Road, Southport, NC 28461
Local realty services provided by:ERA Strother Real Estate
1960 Salisbury Road,Southport, NC 28461
$243,900
- 2 Beds
- 2 Baths
- 1,104 sq. ft.
- Single family
- Pending
Listed by: susy cannon
Office: emerald city real estate, inc.
MLS#:100550249
Source:NC_CCAR
Price summary
- Price:$243,900
- Price per sq. ft.:$220.92
About this home
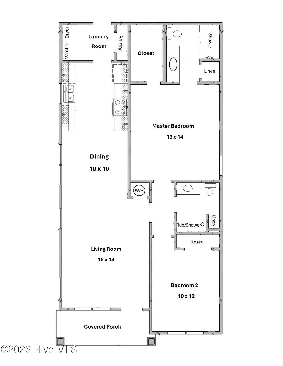
Now Under Construction, this home is cute as a button. Covered front porch invites you into this roomy open floor plan with large living area, separate dining room and kitchen with island with additional storage/pantry in laundry room. This home flows nicely and offers the perfect space for entertaining. Whether you are a first-time home buyer or just looking to down-size and enjoy life, this home checks all the boxes. Solid wood cabinetry with comfort height vanities and raised toilets, granite/marble counter tops, stainless appliances, LVP flooring, ceiling fans in both bedrooms and living room, walk-in closet and shower in master and both bathrooms have linen closets!
Contact an agent
Home facts
- Year built:2026
- Listing ID #:100550249
- Added:65 day(s) ago
- Updated:March 21, 2026 at 07:44 AM
Rooms and interior
- Bedrooms:2
- Total bathrooms:2
- Full bathrooms:2
- Rooms Total:6
- Bathrooms Description:Walk-in Shower
- Kitchen Description:Dishwasher, Kitchen Island, Pantry
- Bedroom Description:Walk-In Closet(s)
- Living area:1,104 sq. ft.
Heating and cooling
- Cooling:Heat Pump
- Heating:Electric, Heat Pump, Heating
Structure and exterior
- Roof:Architectural Shingle
- Year built:2026
- Building area:1,104 sq. ft.
- Lot area:0.24 Acres
- Construction Materials:Vinyl Siding
- Exterior Features:Patio
- Foundation Description:Slab
- Levels:1 Story
Schools
- High school:South Brunswick
- Middle school:South Brunswick
- Elementary school:Bolivia
Utilities
- Water:Water Connected
Finances and disclosures
- Price:$243,900
- Price per sq. ft.:$220.92
Features and amenities
- Appliances:Dishwasher
- Amenities:Ceiling Fan(s), Walk-In Closet(s)
Parking
- Parking description:On Site, Paved
New listings near 1960 Salisbury Road
- Open Sun, 12 to 2pmNew
$624,900Active4 beds 3 baths2,530 sq. ft.1121 Spincast Road, Southport, NC 28461
MLS# 100562920Listed by: EXP REALTY - New
$424,500Active2 beds 2 baths1,301 sq. ft.701 N Howe Street #Ste 7, Southport, NC 28461
MLS# 100562852Listed by: SOUTHPORT REALTY, INC. - Open Sat, 11am to 2pmNew
$529,900Active3 beds 3 baths2,051 sq. ft.6474 Walden Pond Lane, Southport, NC 28461
MLS# 100562796Listed by: MARGARET RUDD ASSOC/O.I. - New
$139,995Active2 beds 1 baths660 sq. ft.295 Redwood Road, Southport, NC 28461
MLS# 100562798Listed by: EXP REALTY - New
$89,000Active0.13 Acres404 Fire Fly Lane, Southport, NC 28461
MLS# 100562765Listed by: SOUTHPORT REALTY, INC. - New
$395,000Active2 beds 2 baths1,078 sq. ft.3350 Club Villas Drive #1105, Southport, NC 28461
MLS# 100562563Listed by: ST JAMES PROPERTIES LLC, MARINA OFFICE - New
$249,000Active3 beds 2 baths1,301 sq. ft.808 Wimberley Road, Southport, NC 28461
MLS# 100562538Listed by: COLDWELL BANKER SEA COAST ADVANTAGE - New
$995,000Active4 beds 3 baths3,155 sq. ft.5207 White Ibis Court, Southport, NC 28461
MLS# 100562480Listed by: SOUTHPORT REALTY, INC. - New
$696,030Active3 beds 3 baths2,659 sq. ft.2023 Oakton Drive #6, Southport, NC 28461
MLS# 100562481Listed by: SM NORTH CAROLINA BROKERAGE LLC - New
$299,999Active2 beds 2 baths1,065 sq. ft.3030 Marsh Winds Circle #Unit 802, Southport, NC 28461
MLS# 100562501Listed by: RE/MAX SOUTHERN COAST