110 Circle Drive, Spring Hope, NC 27882
Local realty services provided by:ERA Strother Real Estate
Listed by: alden lawrence
Office: lpt realty, llc.
MLS#:10159296
Source:RD
Price summary
- Price:$489,000
- Price per sq. ft.:$193.74
About this home
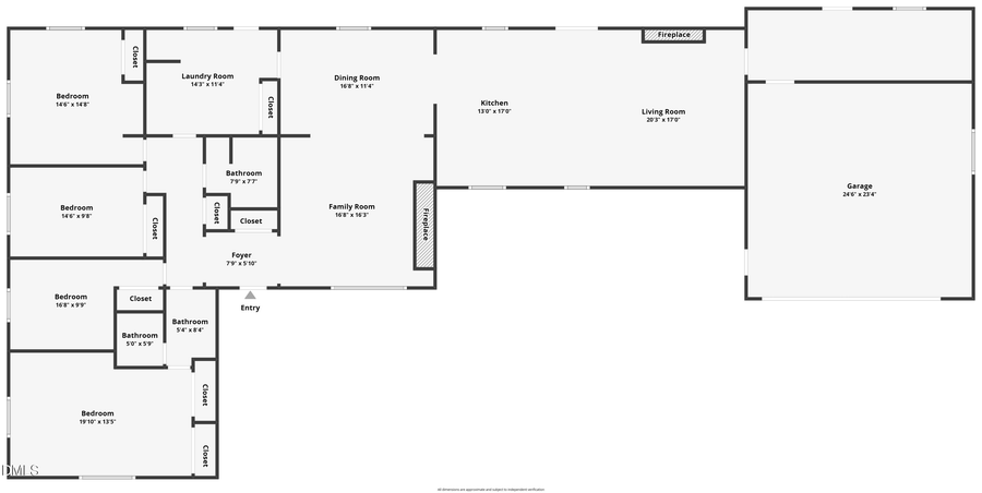
Welcome to this beautifully designed , 2,524 sq ft ranch on 1.11 acre offering 4 spacious bedrooms and 2 full baths. This home had a full interior refresh in 2023. The open concept layout is ideal for both everyday living and entertaining, with seamless flow between the main living spaces.
At the heart of the home is a show-stopping kitchen, featuring a massive 5.5' x 9' quartz island with built-in storage, stainless steel farmhouse sink, gas range, and abundant cabinetry perfect for gatherings and meal prep alike.
The home offers multiple living areas, including a cozy family room with an electric fireplace, a separate living room with a gas fireplace, and a formal dining room ideal for hosting special occasions. French doors lead to a private, fully fenced backyard, creating a peaceful outdoor retreat.
Adding exceptional value to the property is a 529 sq ft heated and cooled outbuilding, completely refreshed in 2024 with new roof, siding, insulation, and white oak hardwood flooring. The building is currently used as a gaming room and features two additional storage areas measuring 23' x 10' and 23' x 8'. This flexible space is perfect for a home office, gym, workshop, hobby room, or guest area, making it a rare and versatile bonus.
This home blends comfort, functionality, and style and is truly move-in ready. A must-see property with flexible space to fit your lifestyle....
Contact an agent
Home facts
- Year built:1973
- Listing ID #:10159296
- Added:43 day(s) ago
- Updated:May 24, 2026 at 02:56 PM
Rooms and interior
- Bedrooms:4
- Total bathrooms:2
- Full bathrooms:2
- Rooms Total:10
- Flooring:Ceramic Tile
- Bathrooms Description:Bathtub/Shower Combination, Double Vanity
- Kitchen Description:Dishwasher, Gas Range
- Living area:2,524 sq. ft.
Heating and cooling
- Cooling:Ceiling Fan(s), Central Air, Heat Pump
- Heating:Fireplace(s), Heat Pump
- Central air:Yes
Structure and exterior
- Roof:Shingle
- Year built:1973
- Building area:2,524 sq. ft.
- Lot area:1.11 Acres
- Lot Features:Back Yard, Front Yard, Level
- Architectural Style:Ranch
- Construction Materials:Vinyl Siding
- Exterior Features:Covered, Front Porch, Storage
- Foundation Description:Slab
- Levels:One
Schools
- High school:Nash - Southern Nash
- Middle school:Nash - Southern Nash
- Elementary school:Nash - Spring Hope
Utilities
- Water:Public, Water Connected
- Sewer:Public Sewer, Sewer Connected
Finances and disclosures
- Price:$489,000
- Price per sq. ft.:$193.74
- Tax amount:$2,710
Features and amenities
- Appliances:Dishwasher, Gas Range, Water Heater
- Laundry features:Electric Dryer Hookup, In Unit, Laundry Room, Main Level, Washer Hookup
- Amenities:Ceiling Fan(s), Crown Molding, Kitchen Island, Pantry, Quartz Counters, Smooth Ceilings, Water Heater
Parking
- Parking description:Driveway, Garage Door Opener, Garage Faces Front, Off Street
- Garage:Yes
- Garage spaces:2
New listings near 110 Circle Drive
- New
$435,000Active3 beds 3 baths2,077 sq. ft.2000 Hayes Road, Spring Hope, NC 27882
MLS# 10169345Listed by: LX REALTY - New
$595,000Active3 beds 3 baths2,576 sq. ft.Lot 8 Trey Point Drive, Spring Hope, NC 27882
MLS# 10168663Listed by: FATHOM REALTY NC - New
$100,000Active1.48 Acres12279 Trey Point Drive, Spring Hope, NC 27882
MLS# 10168565Listed by: COSTELLO REAL ESTATE & INVESTM - New
$289,900Active2 beds 2 baths1,276 sq. ft.50 Robert Sledge Road, Spring Hope, NC 27882
MLS# 10168527Listed by: CHOICE RESIDENTIAL REAL ESTATE - New
$299,000Active3 beds 1 baths1,694 sq. ft.4967 Nc-581, Spring Hope, NC 27882
MLS# 10167843Listed by: CENTURY 21 FOLKS PROPERTIES - New
$449,900Active3 beds 3 baths2,074 sq. ft.1600 S Big Woods Road, Spring Hope, NC 27882
MLS# 100573809Listed by: JACKIE ROBERTSON TEAM, INC. - New
$454,900Active3 beds 3 baths2,104 sq. ft.1554 S Big Woods Road, Spring Hope, NC 27882
MLS# 100573793Listed by: JACKIE ROBERTSON TEAM, INC. - New
$876,260Active62 Acres00 Seven Paths Road, Spring Hope, NC 27882
MLS# 100573714Listed by: EXP REALTY LLC - C - New
$379,900Active4 beds 3 baths1,947 sq. ft.8555 Savage Road, Spring Hope, NC 27882
MLS# 100573401Listed by: DRT REALTY LLC
$405,000Active3 beds 3 baths2,004 sq. ft.10440 Stallings Road, Spring Hope, NC 27882
MLS# 100573368Listed by: SUNFLOWER REALTY, LLC