Lot 11 Poppy Mallow Lane, Stem, NC 27581
Local realty services provided by:ERA Live Moore
Lot 11 Poppy Mallow Lane,Stem, NC 27581
$499,900
- 4 Beds
- 2 Baths
- 2,088 sq. ft.
- Single family
- Active
Listed by: amy winstead
Office: fathom realty nc
MLS#:10147224
Source:RD
Price summary
- Price:$499,900
- Price per sq. ft.:$239.42
- Monthly HOA dues:$45
About this home
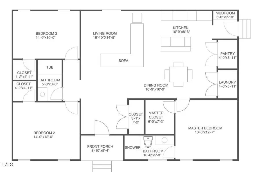
Discover Murphy's Ridge! This modern and stylish 1-story ranch home w/ 576 sf living space over the garage offers a thoughtfully designed living space with 3 bedrooms on the main level plus a 4th bedroom option upstairs and 2 full bathrooms. The modern home's open-concept layout creates an effortless flow between the main living areas--perfect for everyday living or entertaining. 576 finish square feet upstairs can be used any way you choose, as a bedroom, bonus room or office. This flex space allows for customization to fit the buyers needs.
You'll find luxury vinyl plank flooring in the main spaces, tile flooring in all wet areas, and moisture-resistant drywall in every bathroom--built for durability and low maintenance. The home sits on a sealed crawlspace foundation for added structural protection.
The exterior is designed to impress, with LP Smart Siding, energy-efficient windows, architectural shingles, and a bright front porch framed by clean white trim--all combining to create great curb appeal.
Murphy's Ridge offers the freedom to personalize. You'll have access to a range of customization options to suit your lifestyle. The 2 car attached garage is designed for usability with a large 18' wide garage door for access.
Set in a tranquil location near the Granville-Durham County line, residents enjoy the peace of rural living with quick access to Durham, RTP, and Duke University....
Contact an agent
Home facts
- Year built:2026
- Listing ID #:10147224
- Added:45 day(s) ago
- Updated:April 05, 2026 at 02:58 PM
Rooms and interior
- Bedrooms:4
- Total bathrooms:2
- Full bathrooms:2
- Rooms Total:1
- Flooring:Carpet, Vinyl
- Living area:2,088 sq. ft.
Heating and cooling
- Cooling:Central Air
- Heating:Forced Air
- Central air:Yes
Structure and exterior
- Roof:Shingle
- Year built:2026
- Building area:2,088 sq. ft.
- Lot area:1.01 Acres
- Levels:Two
Schools
- High school:Granville - Granville Central
- Middle school:Granville - Granville Central
- Elementary school:Granville - West Oxford
Utilities
- Water:Well
- Sewer:Septic Tank
Finances and disclosures
- Price:$499,900
- Price per sq. ft.:$239.42
Parking
- Garage:Yes
- Garage spaces:2
New listings near Lot 11 Poppy Mallow Lane
- New
$299,000Active3 beds 2 baths1,459 sq. ft.4540 Culbreth Road, Stem, NC 27581
MLS# 10157023Listed by: NINJA REALTY
$315,000Active3 beds 2 baths1,212 sq. ft.204 Orkney Road, Stem, NC 27581
MLS# 10153503Listed by: CAMBRIDGE & ASSOC. R.E. GROUP
$280,000Pending2 beds 2 baths1,911 sq. ft.3569 Jacobs Road, Stem, NC 27581
MLS# 10153235Listed by: EXP REALTY LLC
$438,850Active3 beds 3 baths2,982 sq. ft.102 Griffis Drive, Stem, NC 27581
MLS# 10152614Listed by: ADORN REALTY
$295,000Active3 beds 2 baths1,904 sq. ft.3555 Deerfield Road, Stem, NC 27581
MLS# 10149230Listed by: PREMIER ADVANTAGE REALTY INC
$49,950Active0.62 Acres101 Richmond Run, Stem, NC 27581
MLS# 10148273Listed by: S CRAIG MORRISON REAL ESTATE
$380,490Pending5 beds 3 baths2,511 sq. ft.100 Ross Drive, Stem, NC 27581
MLS# 10147681Listed by: DR HORTON-TERRAMOR HOMES, LLC
$343,490Active4 beds 2 baths1,764 sq. ft.104 Ross Drive, Stem, NC 27581
MLS# 10147680Listed by: DR HORTON-TERRAMOR HOMES, LLC
$377,490Pending5 beds 3 baths2,511 sq. ft.103 Ross Drive, Stem, NC 27581
MLS# 10147683Listed by: DR HORTON-TERRAMOR HOMES, LLC
$361,990Pending3 beds 3 baths2,164 sq. ft.107 Ross Drive, Stem, NC 27581
MLS# 10147687Listed by: DR HORTON-TERRAMOR HOMES, LLC