3020 Tasso Dr., Sunset Beach, NC 28468
Local realty services provided by:ERA Real Estate Modo
3020 Tasso Dr.,Sunset Beach, NC 28468
$311,340
- 3 Beds
- 2 Baths
- 1,732 sq. ft.
- Single family
- Active
Office: dr horton
MLS#:2528218
Source:SC_CCAR
Price summary
- Price:$311,340
- Price per sq. ft.:$179.76
- Monthly HOA dues:$60
About this home
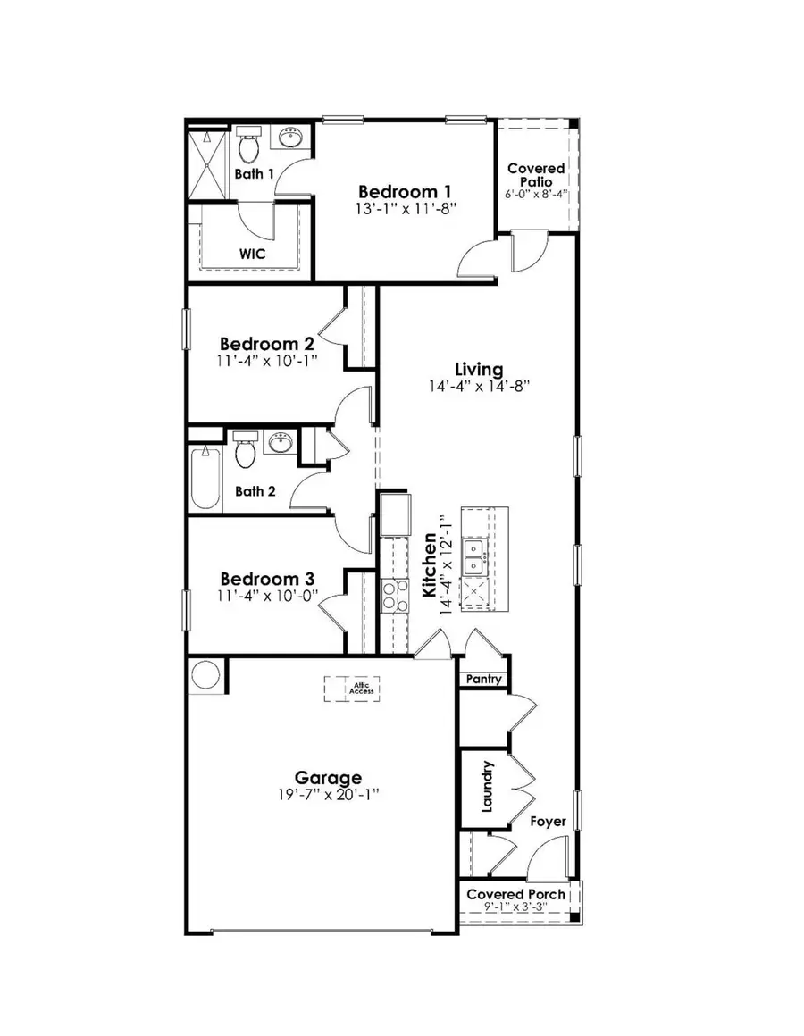
Welcome to Southshore Bay only 2 miles from the Atlantic Ocean. Nestled near the North and South Carolina border, this coastal gem combines laid-back living with easy access to everything that makes this area so special. Enjoy life just minutes from local shops, waterfront dining, multiple golf courses, and the scenic Calabash River and Intracoastal Waterway. Spend your weekends at nearby Sunset Beach, enjoying the shopping and entertainment in Myrtle Beach, or taking a quick day trip to Southport or Wilmington. Whether you're a golf lover, outdoor adventurer, or simply ready to relax near the water, Southshore Bay is your place to call home. Charming 3-Bedroom Home with Open-Concept Living and Private Primary Suite. Step into comfort and style with this thoughtfully designed single-story home, perfect for modern living. Featuring three spacious bedrooms and two full bathrooms, this layout offers both functionality and comfort for families looking for a beach retreat or anyone looking to downsize without compromise. At the heart of the home is a large open-concept living area, seamlessly connecting the living room, dining space, and a well-equipped kitchen with granite countertops, a tile backsplash, 36'' cabinets, a pantry, stainless steel appliances including a refrigerator, a center island. Tucked away at the back for privacy, the primary suite boasts a generous bedroom, walk-in closet, and a private bath. Two additional bedrooms share a full bathroom. •Covered back porch for relaxation and enjoying the coastal breeze •Attached 2-car garage with direct home access •Welcoming front porch and foyer •Convenient laundry area Whether you're starting out, settling down, or investing smart, this home combines practical living with stylish comfort — all on one easy-to-maintain level. *Photos are of a similar Downing home. Pictures, photographs, colors, features, and sizes are for illustration purposes only and will vary from the homes as built. Home and community information, including pricing, included features, terms, availability and amenities, are subject to change and prior sale at any time without notice or obligation. Square footage dimensions are approximate. Equal housing opportunity builder.
Contact an agent
Home facts
- Year built:2025
- Listing ID #:2528218
- Added:85 day(s) ago
- Updated:February 19, 2026 at 02:59 PM
Rooms and interior
- Bedrooms:3
- Total bathrooms:2
- Full bathrooms:2
- Living area:1,732 sq. ft.
Heating and cooling
- Cooling:Central Air
- Heating:Central, Electric
Structure and exterior
- Year built:2025
- Building area:1,732 sq. ft.
- Lot area:0.11 Acres
Schools
- High school:West Brunswick High School
- Middle school:Shallotte Middle School
- Elementary school:Jesse Mae Monroe Elementary School
Utilities
- Water:Public, Water Available
- Sewer:Sewer Available
Finances and disclosures
- Price:$311,340
- Price per sq. ft.:$179.76
New listings near 3020 Tasso Dr.
- New
$120,000Active0.28 Acres7483 Haddington Place Sw, Sunset Beach, NC 28468
MLS# 100555362Listed by: OCEAN RIDGE PLANTATION REAL ESTATE SALES
$525,734Pending2 beds 2 baths2,324 sq. ft.1303 Piper Glen Drive, Sunset Beach, NC 28468
MLS# 100555245Listed by: NEXTHOME CAPE FEAR- New
$1,199,900Active5 beds 4 baths2,433 sq. ft.410 2nd Street, Sunset Beach, NC 28468
MLS# 100555045Listed by: BLUE STRAND REAL ESTATE GROUP - New
$524,200Active3 beds 3 baths2,754 sq. ft.1257 Black Wolf Run, Sunset Beach, NC 28468
MLS# 2604223Listed by: NVR RYAN HOMES - New
$44,900Active0.78 Acres632 Kingfisher Lane, Sunset Beach, NC 28468
MLS# 100554817Listed by: COLDWELL BANKER SLOANE REALTY OIB - Open Thu, 10am to 5pmNew
$528,994Active3 beds 3 baths1,898 sq. ft.1304 Piper Glen Drive, Sunset Beach, NC 28468
MLS# 100554836Listed by: NEXTHOME CAPE FEAR - Open Thu, 10am to 5pmNew
$639,990Active4 beds 4 baths2,739 sq. ft.1429 Whistling Straits Way, Sunset Beach, NC 28468
MLS# 100554840Listed by: NEXTHOME CAPE FEAR - New
$3,800,000Active4 beds 6 baths4,925 sq. ft.1527 N Shore Drive, Sunset Beach, NC 28468
MLS# 100554777Listed by: COLDWELL BANKER SLOANE REALTY OIB - New
$662,970Active3 beds 3 baths2,233 sq. ft.7530 Donegal Circle Sw #86, Sunset Beach, NC 28468
MLS# 100554692Listed by: COLDWELL BANKER SEA COAST ADVANTAGE - New
$652,795Active3 beds 3 baths2,408 sq. ft.7533 Donegal Circle Sw #51, Sunset Beach, NC 28468
MLS# 100554696Listed by: COLDWELL BANKER SEA COAST ADVANTAGE