2550 White Sands Drive Sw, Supply, NC 28462
Local realty services provided by:ERA Strother Real Estate
2550 White Sands Drive Sw,Supply, NC 28462
$249,900
- 3 Beds
- 2 Baths
- 1,428 sq. ft.
- Mobile / Manufactured
- Pending
Listed by: misty d. sine, bob percesepe
Office: blue chip real estate
MLS#:100563452
Source:NC_CCAR
Price summary
- Price:$249,900
- Price per sq. ft.:$175
About this home
Welcome to 2550 White Sands Drive SW, a beautifully crafted 3-bedroom, 2-bath home built in 2022, offering thoughtfully designed living space on a generous .54-acre lot in desirable Brunswick County. Ideally located just minutes from the pristine shores of Holden Beach, this property delivers the perfect blend of modern comfort, coastal charm, and everyday convenience.
From the moment you arrive, you'll appreciate the curb appeal featuring a clean concrete driveway, covered carport, and ample space for additional parking--perfect for boats, trailers, or guests. The expansive lot provides both privacy and flexibility, with room to create your dream outdoor oasis.
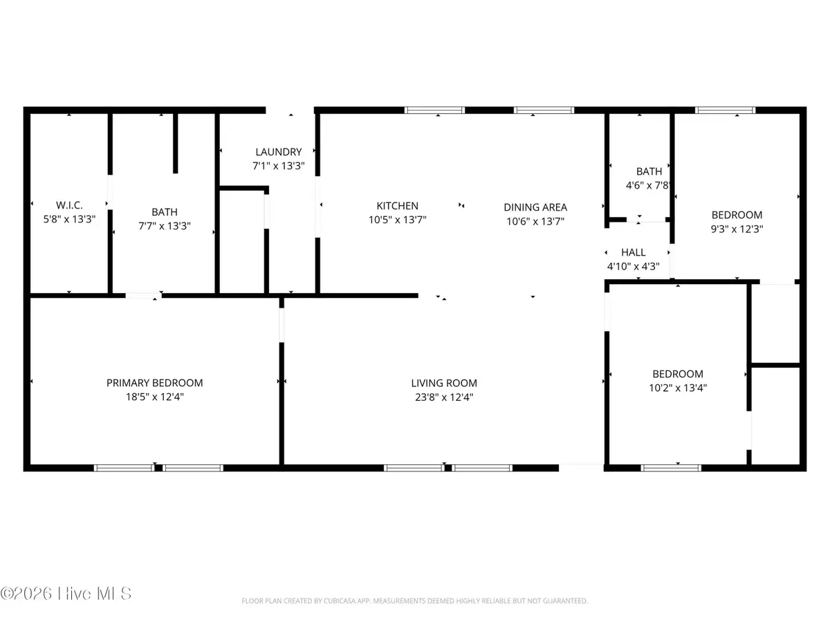
Step inside to discover a bright and airy open-concept floor plan designed for both relaxation and entertaining. The spacious living area flows seamlessly into the kitchen and dining space, creating a welcoming environment for gatherings with family and friends. The kitchen is well-appointed with abundant cabinetry, generous counter space, and a layout that makes both cooking and hosting effortless.
The split-bedroom floor plan offers ideal privacy, with a comfortable primary suite featuring a private bath and ample closet space. Two additional bedrooms provide versatility for guests, a home office, or growing families, along with a second full bathroom designed with modern finishes.
Outdoor living truly shines with a brand-new deck overlooking the expansive backyard--perfect for morning coffee, evening relaxation, or weekend barbecues. The property also includes two outbuildings, offering endless possibilities for storage, workshop space, hobbies, or even a creative studio.
This home stands out not only for its quality and location but also for its turnkey potential--it can be sold fully furnished, allowing buyers to move right in or begin generating rental income immediately. Whether you're searching for a primary residence, second home, or investment property near the coast, this opportunity checks every box.
Enjoy the peaceful setting while still being conveniently close to beaches, golf courses, local dining, shopping, and all that coastal North Carolina has to offer....
Contact an agent
Home facts
- Year built:2022
- Listing ID #:100563452
- Added:47 day(s) ago
- Updated:May 17, 2026 at 07:44 AM
Rooms and interior
- Bedrooms:3
- Total bathrooms:2
- Full bathrooms:2
- Rooms Total:5
- Kitchen Description:Dishwasher, Range, Refrigerator
- Bedroom Description:Walk-In Closet(s)
- Living area:1,428 sq. ft.
Heating and cooling
- Cooling:Central Air
- Heating:Electric, Forced Air
- Central air:Yes
Structure and exterior
- Roof:Composition
- Year built:2022
- Building area:1,428 sq. ft.
- Lot area:0.54 Acres
- Construction Materials:Steel Frame, Vinyl Siding, Wood Frame
- Exterior Features:Deck, Porch
- Foundation Description:Block
- Levels:1 Story
Schools
- High school:West Brunswick
- Middle school:Cedar Grove
- Elementary school:Virginia Williamson
Utilities
- Water:County Water
Finances and disclosures
- Price:$249,900
- Price per sq. ft.:$175
Features and amenities
- Appliances:Dishwasher, Dryer, Range, Refrigerator, Washer
- Laundry features:Dryer, Washer, Washer Hookup
- Amenities:Blinds/Shades, Furnished, Walk-In Closet(s)
Parking
- Parking description:Unpaved
New listings near 2550 White Sands Drive Sw
- Open Sat, 12 to 2pmNew
$259,900Active3 beds 2 baths1,450 sq. ft.1660 White Duck Court Sw, Supply, NC 28462
MLS# 100574417Listed by: RE/MAX AT THE BEACH / HOLDEN BEACH - New
$1,400,000Active3 beds 4 baths1,919 sq. ft.2072 W Sea Aire Canal Sw, Supply, NC 28462
MLS# 100574421Listed by: NORTHGROUP REAL ESTATE LLC - New
$775,000Active3 beds 3 baths2,657 sq. ft.3599 Concordia Avenue Sw, Supply, NC 28462
MLS# 100574414Listed by: PROACTIVE REAL ESTATE - New
$95,000Active0.46 Acres3579 Red Berry Court Sw, Supply, NC 28462
MLS# 100574390Listed by: COLDWELL BANKER SEA COAST ADVANTAGE-HAMPSTEAD - New
$35,000Active0.16 Acres2981 Hatteras Avenue Sw, Supply, NC 28462
MLS# 100574216Listed by: REAL BROKER LLC - New
$974,500Active3 beds 4 baths3,358 sq. ft.611 S Seascape Boulevard Sw, Supply, NC 28462
MLS# 100574104Listed by: PROACTIVE REAL ESTATE - New
$499,900Active2 beds 2 baths1,032 sq. ft.1068 Ocean Boulevard W # 2a, Holden Beach, NC 28462
MLS# 100574068Listed by: PROACTIVE REAL ESTATE - New
$679,000Active3 beds 3 baths2,531 sq. ft.630 Valverda Street Sw, Supply, NC 28462
MLS# 100574098Listed by: PROACTIVE REAL ESTATE - New
$184,900Active2 beds 2 baths880 sq. ft.427 Baker Drive Sw, Supply, NC 28462
MLS# 100573987Listed by: COLDWELL BANKER SEA COAST ADVANTAGE
$258,000Pending3 beds 2 baths1,424 sq. ft.142 Maymont Street Nw, Supply, NC 28462
MLS# 100573913Listed by: CENTURY 21 COLLECTIVE