300 N Red Maple Court, Swansboro, NC 28584
Local realty services provided by:ERA Strother Real Estate
300 N Red Maple Court,Swansboro, NC 28584
$249,400
- 3 Beds
- 2 Baths
- - sq. ft.
- Mobile / Manufactured
- Sold
Listed by: chuck douglas
Office: douglas & company real estate, inc.
MLS#:100541936
Source:NC_CCAR
Sorry, we are unable to map this address
Price summary
- Price:$249,400
About this home
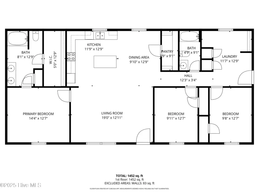
Welcome to 300 North Red Maple Court in Swansboro—a brand-new Clayton Legend 3 bedroom, 2 bath double-wide manufactured home offering quality, comfort, and modern style. Set on a spacious corner lot in the desirable Cedar Creek Woods neighborhood, this 26' x 56' home features a brick foundation and thoughtful design throughout.
Step inside to an inviting, open layout highlighted by Linoleum flooring throughout and a well-appointed kitchen complete with stainless steel appliances, a large pantry, and a generous kitchen island that flows seamlessly into the dedicated dining area—the perfect spot for holiday gatherings and everyday meals alike.
The private master suite includes an ensuite bath and walk-in closet, while the spacious secondary bedrooms provide plenty of room for family, guests, or office space. A convenient mud room adds extra functionality for coastal living. Seller is also offering up to $600 toward a home warranty, providing added peace of mind for your first year in the home.
Located in the sought-after Croatan school district, you're just a short drive from the Crystal Coast beaches, public boat access, shopping, and restaurants—making this home as practical as it is enjoyable. Act fast though; seller is considering putting the home on the rental market.
Affordable and move-in ready—offered at $249,400....
Contact an agent
Home facts
- Year built:2025
- Listing ID #:100541936
- Added:155 day(s) ago
- Updated:April 23, 2026 at 06:51 AM
Rooms and interior
- Bedrooms:3
- Total bathrooms:2
- Full bathrooms:2
- Rooms Total:6
- Kitchen Description:Dishwasher, Kitchen Island, Pantry, Refrigerator
- Bedroom Description:Walk-In Closet(s)
Heating and cooling
- Cooling:Heat Pump
- Heating:Electric, Heat Pump, Heating
Structure and exterior
- Roof:Shingle
- Year built:2025
- Lot Features:Corner Lot
- Construction Materials:Steel Frame, Vinyl Siding
- Exterior Features:Porch
- Foundation Description:Brick/Mortar
- Levels:1 Story
Schools
- High school:Croatan
- Middle school:Broad Creek
- Elementary school:White Oak Elementary
Utilities
- Water:Water Connected
Finances and disclosures
- Price:$249,400
Features and amenities
- Appliances:Dishwasher, Refrigerator
- Laundry features:Laundry Room, Washer Hookup
- Amenities:Blinds/Shades, Street Lights, Walk-In Closet(s)
Parking
- Parking description:Gravel
New listings near 300 N Red Maple Court
- New
$292,000Active3 beds 2 baths1,576 sq. ft.605 Windsong N, Swansboro, NC 28584
MLS# 100568919Listed by: JOHN VESCO INC. - New
$589,000Active4 beds 4 baths3,155 sq. ft.803 Canvas Court, Swansboro, NC 28584
MLS# 100568818Listed by: BOGUE BANKS REALTY, INC - New
$249,500Active2 beds 3 baths1,137 sq. ft.6 Outrigger Drive, Swansboro, NC 28584
MLS# 100568703Listed by: CENTURY 21 CHAMPION REAL ESTATE - Open Sat, 11am to 1pmNew
$424,900Active4 beds 3 baths2,038 sq. ft.331 Foster Creek Road, Swansboro, NC 28584
MLS# 100568672Listed by: BOGUE BANKS REALTY, INC
$320,000Pending3 beds 2 baths1,398 sq. ft.420 Patriots Point Lane, Swansboro, NC 28584
MLS# 100568643Listed by: SOUTHERN COAST REALTY GROUP,
$445,000Pending3 beds 2 baths1,665 sq. ft.202 Nikida Court, Swansboro, NC 28584
MLS# 100568486Listed by: RE/MAX HOMESTEAD SWANSBORO- New
$205,000Active3 beds 3 baths1,227 sq. ft.41 Pirates Cove Drive, Swansboro, NC 28584
MLS# 100568444Listed by: REALTY ONE GROUP EAST - New
$199,900Active2 beds 3 baths1,080 sq. ft.68 Crush Court, Swansboro, NC 28584
MLS# 100568354Listed by: WATERWAY REALTY - New
$199,000Active2 beds 3 baths1,125 sq. ft.83 Crush Court, Swansboro, NC 28584
MLS# 100568070Listed by: TELLERS TRUSS REALTY - New
$245,000Active2 beds 3 baths1,137 sq. ft.14 Catalina Circle, Swansboro, NC 28584
MLS# 100567509Listed by: GREAT MOVES REALTY