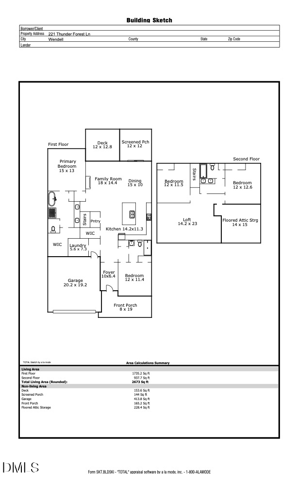
221 Thunder Forest Lane, Wendell, NC 27591
Local realty services provided by:ERA Strother Real Estate
Listed by: matt perry, ashley mays
Office: keller williams elite realty
MLS#:10152071
Source:RD
Price summary
- Price:$634,900
- Price per sq. ft.:$237.52
- Monthly HOA dues:$100
About this home
Refined modern farmhouse in the highly sought-after Wendell Falls community, showcasing exceptional craftsmanship, designer finishes, and thoughtfully curated spaces throughout. From the charming covered front porch to the expansive screened outdoor living area, this home blends timeless architecture with elevated everyday living. Welcome to the highly-popular Beau floor plan, built by Garman Homes.
Inside, the open-concept design is filled with natural light and anchored by a sophisticated living space with fireplace and wide-plank flooring. The gourmet chef's kitchen serves as the centerpiece of the home, featuring a dramatic oversized quartz island, custom cabinetry, designer lighting, stainless appliances, and a seamless flow ideal for entertaining and gathering.
The luxurious main-level primary suite offers a true retreat with spa-inspired finishes including dual vanities, elegant stone surfaces, a soaking tub, and a beautifully tiled walk-in shower. An additional bedroom with full bath complete the first floor. Every detail reflects the quality construction and thoughtful design expected in one of the Triangle's most desirable master-planned communities.
Outdoor living continues with a screened porch designed for year-round enjoyment, while the home's striking exterior architecture and curated landscaping create undeniable curb appeal.
Located in the vibrant Wendell Falls lifestyle community, residents enjoy resort-style amenities, scenic walking trails, parks, dining, and neighborhood events--all just minutes from Raleigh and the greater Triangle....
Contact an agent
Home facts
- Year built:2021
- Listing ID #:10152071
- Added:1 day(s) ago
- Updated:March 12, 2026 at 09:23 PM
Rooms and interior
- Bedrooms:4
- Total bathrooms:3
- Full bathrooms:3
- Rooms Total:9
- Flooring:Laminate
- Kitchen Description:Convection Oven, Dishwasher, Disposal, Electric Water Heater, Freezer, Gas Cooktop, Gas Oven, Microwave, Stainless Steel Appliance(s)
- Bedroom Description:Master Downstairs
- Basement Description:Crawl Space
- Living area:2,673 sq. ft.
Heating and cooling
- Cooling:Central Air
- Heating:Forced Air, Natural Gas
- Central air:Yes
Structure and exterior
- Roof:Shingle
- Year built:2021
- Building area:2,673 sq. ft.
- Lot area:0.14 Acres
- Architectural Style:Traditional
- Construction Materials:Fiber Cement
- Exterior Features:Covered, Deck, Fenced Yard, Front Porch, Porch, Rear Porch, Screened, Smart Camera(s)/Recording
- Levels:Two
Schools
- High school:Wake - East Wake
- Middle school:Wake - Wendell
- Elementary school:Wake - Lake Myra
Utilities
- Water:Public, Water Connected
- Sewer:Public Sewer, Sewer Connected
Finances and disclosures
- Price:$634,900
- Price per sq. ft.:$237.52
- Tax amount:$6,107
Features and amenities
- Appliances:Convection Oven, Dishwasher, Disposal, Electric Water Heater, Freezer, Gas Cooktop, Gas Oven, Microwave, Stainless Steel Appliance(s), Wine Refrigerator
- Laundry features:Electric Dryer Hookup, Laundry Room, Main Level
- Amenities:Clubhouse, Electric Water Heater, Pantry, Playground, Pool, Quartz Counters, Trail(s), Walk-In Closet(s)
- Pool features:Community Pool
Parking
- Parking description:Driveway, Garage Faces Front
- Garage:Yes
- Garage spaces:2
New listings near 221 Thunder Forest Lane
- Open Sat, 1 to 3pmNew
$477,000Active3 beds 3 baths2,581 sq. ft.1812 Stagecoach Trail, Wendell, NC 27591
MLS# 10152195Listed by: CHOICE RESIDENTIAL REAL ESTATE - New
$310,000Active3 beds 3 baths1,684 sq. ft.1712 Mallard Trace Drive, Wendell, NC 27591
MLS# 10152232Listed by: COMPASS -- RALEIGH - Open Sat, 11am to 1pmNew
$390,000Active4 beds 3 baths1,863 sq. ft.37 Overcup Court, Wendell, NC 27591
MLS# 10152170Listed by: FOX RENTAL MANAGEMENT ASSOC. - New
$279,900Active3 beds 2 baths1,149 sq. ft.619 Industrial Drive, Wendell, NC 27591
MLS# 10152141Listed by: DASH CAROLINA - New
$366,000Active3 beds 3 baths1,602 sq. ft.524 Green Willow Circle, Wendell, NC 27591
MLS# 10152159Listed by: OPENDOOR BROKERAGE LLC - Open Sat, 1 to 3pmNew
$499,900Active4 beds 3 baths2,297 sq. ft.1568 Lone Prairie Drive, Wendell, NC 27591
MLS# 10152164Listed by: COLDWELL BANKER HPW - Open Sat, 12 to 2pmNew
$300,000Active3 beds 2 baths1,193 sq. ft.313 Wood Green Drive, Wendell, NC 27591
MLS# 10152068Listed by: KELLER WILLIAMS LEGACY - New
$1,050,000Active4 beds 5 baths3,346 sq. ft.1210 Lake Wendell Road, Wendell, NC 27591
MLS# 10151718Listed by: DASH CAROLINA - New
$1,099,000Active4 beds 4 baths3,542 sq. ft.1200 Lake Wendell Road, Wendell, NC 27591
MLS# 10151524Listed by: DASH CAROLINA