964 Double Helix Road, White Oak, NC 27523
Local realty services provided by:ERA Live Moore
Listed by: gretchen coley, scott griggs
Office: compass -- raleigh
MLS#:10127459
Source:RD
Price summary
- Price:$575,000
- Price per sq. ft.:$215.92
- Monthly HOA dues:$117
About this home
ASK ABOUT BUILDER INCENTIVES WITH USE OF PREFERRED LENDER!
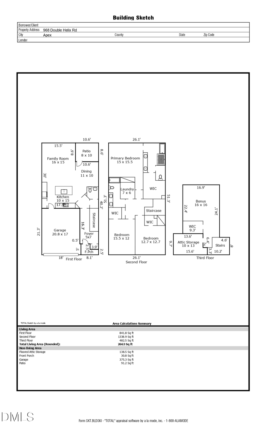
Located in The Park at Wimberly, this Envision Homes property offers a three-level layout with 2,663 sq ft of interior living space, multiple walk-in closets, a dedicated bonus room, and floored attic storage. The main level features an open kitchen measuring approximately 10 × 15 with designated dining and gathering areas that connect to a 16 × 15 family room. The layout supports a variety of uses with defined zones for cooking, dining, and everyday living. A covered rear porch extends the main-level living area and overlooks a natural buffer behind the home, offering space for outdoor dining, grilling, or container gardening. The front porch and attached two-car garage add additional convenience, with the garage providing storage for tools, seasonal items, and sports equipment.
The second level includes a spacious 15 × 15.5 primary bedroom with a walk-in closet and access to a dedicated bath. Two additional bedrooms measuring approximately 15.5 × 12 and 12.7 × 12.7 are located nearby, each with access to storage and the full hall bath. A centrally located laundry room adds to the efficiency of the floor plan. Multiple closets on this level contribute to strong organizational capacity and help support varied household needs.
The third-floor bonus room (16 × 16) offers a flexible environment for a home office, media setup, fitness area, or recreation. Adjacent floored attic storage provides additional square footage for long-term storage, hobby materials, or larger household items. The combination of a full bonus level and extensive storage is a notable functional feature in this plan and increases the home's capacity to adapt to evolving needs.
The Park at Wimberly community includes maintained grounds, landscaped common areas, sidewalks, and green space. The location provides proximity to Sweetwater Town Center (approximately 0.6-0.7 miles), offering grocery options, coffee shops, restaurants, and services. Starbucks, Common Grounds Coffee, Publix, and additional dining options are close by. Beaver Creek Commons, with expanded retail, services, and entertainment, sits approximately 1.3-1.4 miles from the property. Access to local parks, greenways, and recreation areas, including Kelly Road Park and Beaver Creek Greenway trailheads, is also nearby. NC-540 and US-64 provide straightforward connectivity for regional commuting.
Not all new construction is created equal. Park at Wimberly homes stand apart through quality materials, enhanced construction details, and thoughtfully designed floorplans that prioritize comfort, functionality, and long-term value. Open layouts provide generous living areas, well-proportioned bedrooms, and kitchens designed for both everyday living and entertaining. Attention to detail is evident throughout in the fit and finish, efficient use of space, and design choices selected for durability as well as style.
The value extends beyond the home itself. Town-owned property directly behind the community provides preserved open space, added privacy, and long-term peace of mind. The location further enhances everyday living, with close proximity to Beaver Creek Commons for shopping and dining, convenient access to the American Tobacco Trail for outdoor recreation, and quick connections to major interstates and freeways for commuting throughout the Triangle. While nearby new homes may appear similar at a glance, meaningful differences in construction quality, setting, and location become clear upon closer comparison....
Contact an agent
Home facts
- Year built:2025
- Listing ID #:10127459
- Added:174 day(s) ago
- Updated:April 06, 2026 at 05:02 AM
Rooms and interior
- Bedrooms:3
- Total bathrooms:3
- Full bathrooms:2
- Half bathrooms:1
- Rooms Total:6
- Flooring:Carpet, Hardwood, Tile
- Dining Description:Eat-in Kitchen
- Bathrooms Description:Bathtub Only, Bathtub/Shower Combination, Double Vanity, Separate Shower, Shower Only, Soaking Tub, Walk-In Shower
- Kitchen Description:Dishwasher, Gas Cooktop, Gas Water Heater, Microwave, Plumbed For Ice Maker
- Living area:2,663 sq. ft.
Heating and cooling
- Cooling:Zoned
- Heating:Forced Air, Natural Gas, Zoned
Structure and exterior
- Roof:Shingle
- Year built:2025
- Building area:2,663 sq. ft.
- Lot area:0.05 Acres
- Architectural Style:Craftsman, Transitional
- Construction Materials:Fiber Cement, Stone
- Exterior Features:Rain Gutters
- Foundation Description:Slab
- Levels:Three Or More
Schools
- High school:Wake - Green Level
- Middle school:Wake - Salem
- Elementary school:Wake - Salem
Utilities
- Water:Public
- Sewer:Public Sewer
Finances and disclosures
- Price:$575,000
- Price per sq. ft.:$215.92
Features and amenities
- Appliances:Dishwasher, Gas Cooktop, Gas Water Heater, Microwave, Plumbed For Ice Maker
- Laundry features:Laundry Room
- Amenities:Gas Water Heater, High Ceilings, Quartz Counters, Radon Mitigation, Smooth Ceilings, Walk-In Closet(s)
Parking
- Parking description:Attached, Garage
- Garage:Yes
- Garage spaces:2
New listings near 964 Double Helix Road
$335,000Active67 Acres7399 Burney Road, White Oak, NC 28399
MLS# LP753480Listed by: EXIT REALTY PREFERRED
$17,000Pending2.97 AcresLot 44964 Big Island Road, White Oak, NC 28399
MLS# 100540496Listed by: GATOR REALTY GROUP
$129,000Active1 beds 1 baths601 sq. ft.1031 Pine Acres Road, White Oak, NC 28399
MLS# 752283Listed by: COLDWELL BANKER ADVANTAGE - FAYETTEVILLE
$74,900Active18 Acres0 Burney Road, White Oak, NC 28399
MLS# 100536888Listed by: MOSSY OAK PROPERTIES LAND AND FARMS
$149,900Pending2 beds 2 baths1,944 sq. ft.10154 Hwy 53 Highway, White Oak, NC 29399
MLS# 751663Listed by: CENTURY 21 THE REALTY GROUP
$100,000Pending3 beds 2 baths1,584 sq. ft.1403 Dowd Dairy Road, White Oak, NC 28399
MLS# 10124378Listed by: COLDWELL BANKER ADVANTAGE
$850,000Active3 beds 2 baths1,824 sq. ft.653 D Lynne Hope Way, White Oak, NC 28399
MLS# LP757525Listed by: ATLAS REAL ESTATE PARTNERS
$275,000Active74.81 AcresTbd John Owen Road, White Oak, NC 28399
MLS# 100496935Listed by: SOUTHERN PALMETTO LAND COMPANY LTD CO LLC