44 Plantation Drive, Youngsville, NC 27596

Local realty services provided by:ERA Strother Real Estate
44 Plantation Drive,Youngsville, NC 27596
$379,000
  • 5 Beds
  • 3 Baths
  • 2,310 sq. ft.
  • Single family
  • Pending
Listed by: jim allen
Office: coldwell banker hpw
MLS#:10133508
Source:RD

Price summary

  • Price:$379,000
  • Price per sq. ft.:$164.07
  • Monthly HOA dues:$50

About this home

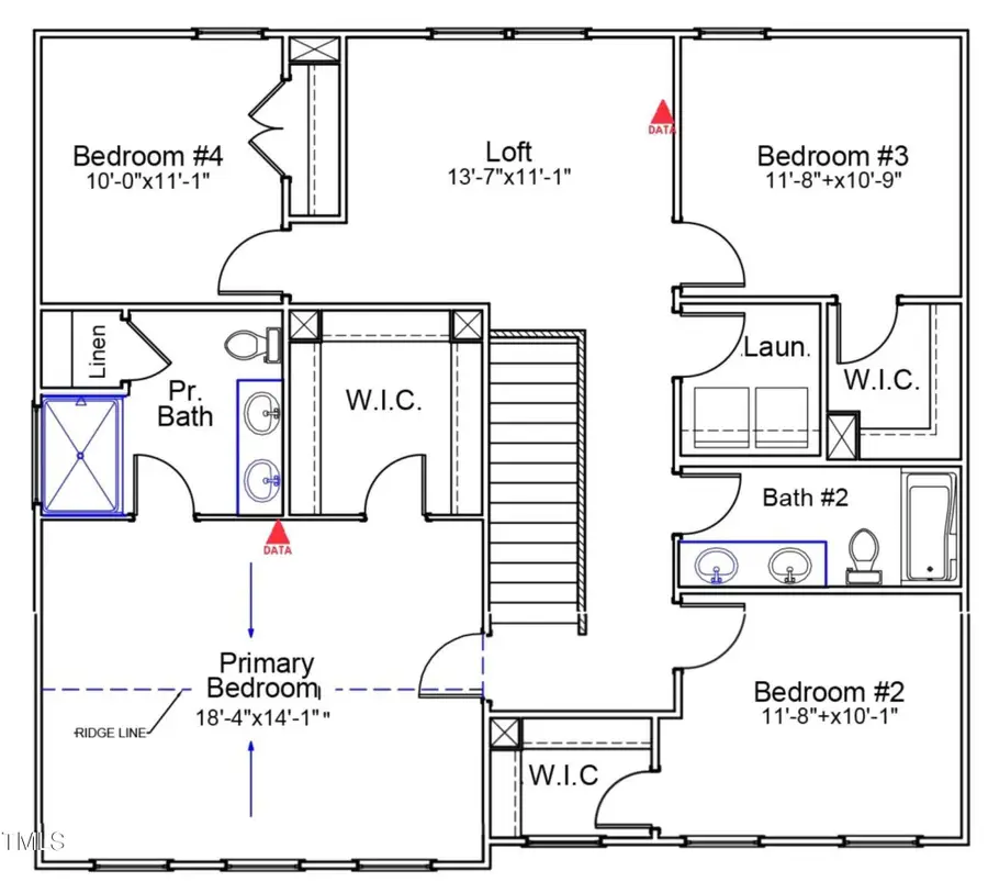
USDA ELIGIBLE! Main Level Guest Bedroom! ''Wild Dunes'' Luxury Vinyl Plank Flooring on Entire 1st Floor! Large Kitchen: features 10' Island, Custom White Cabinets, ''Lagoon'' Quartz Countertops, Tile Backsplash, SS Appliances Including Gas Range, Pendant Lights & Pantry! Spacious Primary Suite: Vaulted Ceiling & Huge Walk in Closet! Primary Bath: 5' Tiled Shower, Tile Flooring, Double Vanity w/Quartz Top, Custom White Vanity Cabinets & Linen Closet! Great Room: Open Concept w/Abundant Natural Light, Perfect Wall Space for Furniture & Ceiling Fan! Generously Sized Secondary Bedrooms with Privacy! Open Bonus Area is Perfect for a Play Area or Media Space! Rear Covered Porch! Right Down the Street from Amazing Swimming Pool and Clubhouse!

Contact an agent

contact an agent

Yes, I would like more information. Please use and/or share my information with an ERA®  affiliated agent to contact me about my real estate needs. By clicking Send message, I request to be contacted by phone or text message and consent to being contacted by automated means. I understand that my consent to receive calls or texts is not a condition of purchasing any property, goods, or services. Alternatively, I understand that I can access real estate services by email or I can contact the agent myself.

If an ERA®  affiliated agent is not available in the area where I need assistance, I agree to be contacted by a real estate agent affiliated with another brand owned or licensed by Anywhere Real Estate (BHGRE® , CENTURY 21® , Coldwell Banker® , Corcoran® , Sotheby's International Realty® ).
 I acknowledge that I have read and agree to theTerms of useandPrivacy notice

Home facts

  • Year built:2026
  • Listing ID #:10133508
  • Added:114 day(s) ago
  • Updated:February 10, 2026 at 08:36 AM

Rooms and interior

  • Bedrooms:5
  • Total bathrooms:3
  • Full bathrooms:3
  • Rooms Total:9
  • Flooring:Carpet, Tile, Vinyl
  • Dining Description:Eat-in Kitchen
  • Bathrooms Description:Double Vanity, Separate Shower, Walk-In Shower
  • Kitchen Description:Dishwasher, Gas Range, Gas Water Heater, Microwave, Plumbed For Ice Maker, Self Cleaning Oven, Stainless Steel Appliance(s)
  • Living area:2,310 sq. ft.

Heating and cooling

  • Cooling:Central Air
  • Heating:Central, Forced Air, Natural Gas
  • Central air:Yes

Structure and exterior

  • Roof:Shingle
  • Year built:2026
  • Building area:2,310 sq. ft.
  • Lot area:0.22 Acres
  • Lot Features:Back Yard, Front Yard, Landscaped
  • Architectural Style:Craftsman
  • Construction Materials:Blown-In Insulation, Low VOC Paint/Sealant/Varnish, Vinyl Siding
  • Exterior Features:Covered, Front Porch, Porch, Rain Gutters, Rear Porch
  • Foundation Description:Slab
  • Levels:Two

Schools

  • High school:Franklin - Franklinton
  • Middle school:Franklin - Cedar Creek
  • Elementary school:Franklin - Long Mill

Utilities

  • Water:Public, Water Connected
  • Sewer:Public Sewer, Sewer Connected

Finances and disclosures

  • Price:$379,000
  • Price per sq. ft.:$164.07

Features and amenities

  • Appliances:Dishwasher, Gas Range, Gas Water Heater, Microwave, Plumbed For Ice Maker, Self Cleaning Oven, Stainless Steel Appliance(s), Tankless Water Heater
  • Laundry features:Electric Dryer Hookup, Laundry Room, Upper Level, Washer Hookup
  • Amenities:Ceiling Fan(s), Clubhouse, Gas Water Heater, Kitchen Island, Management, Open Floorplan, Pantry, Pool, Quartz Counters, Smooth Ceilings, Tankless Water Heater, Vaulted Ceiling(s), Walk-In Closet(s)
  • Pool features:Association, Community

Parking

  • Parking description:Attached, Driveway, Garage, Garage Door Opener, Garage Faces Front
  • Garage:Yes
  • Garage spaces:2
MLS LogoListings marked with a Doorify MLS icon are provided courtesy of the Doorify MLS, of North Carolina, Internet Data Exchange Database. Brokers make an effort to deliver accurate information, but buyers should independently verify any information on which they will rely in a transaction. The listing broker shall not be responsible for any typographical errors, misinformation, or misprints, and they shall be held totally harmless from any damages arising from reliance upon this data. This data is provided exclusively for consumers’ personal, non-commercial use. Copyright 2026 Doorify MLS of North Carolina. All rights reserved.