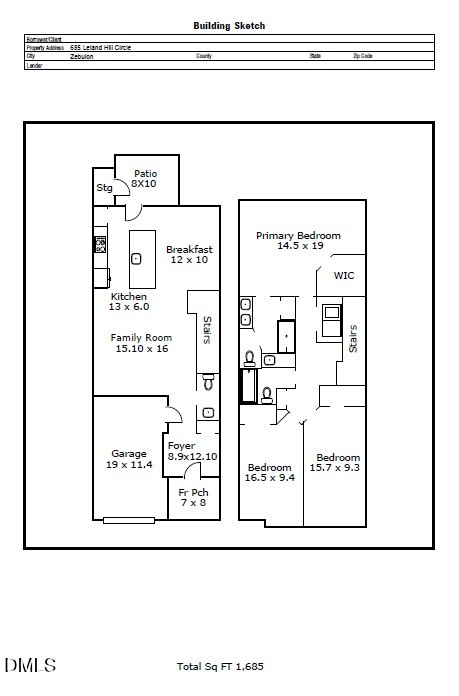
685 Leland Hill Circle, Zebulon, NC 27597
Local realty services provided by:ERA Strother Real Estate
685 Leland Hill Circle,Zebulon, NC 27597
$280,000
- 3 Beds
- 3 Baths
- 1,685 sq. ft.
- Townhouse
- Active
Listed by: chad benjamin haywood
Office: keller williams realty
MLS#:10162380
Source:RD
Price summary
- Price:$280,000
- Price per sq. ft.:$166.17
- Monthly HOA dues:$95
About this home
Welcome to this beautiful 3-bedroom, 2.5-bath home in the highly desirable Sidney Creek community in Zebulon! This well-designed two-story home offers spacious living areas, modern touches, and a layout perfect for both everyday living and entertaining.
The main level features an open-concept floor plan connecting the family room, dining area, and large kitchen--creating a seamless flow for gatherings. The kitchen is a standout with a center island, updated hardware, and plenty of prep and storage space. Step outside to the rear patio, ideal for relaxing or hosting guests.
Upstairs, the primary suite provides a comfortable retreat with a walk-in closet and a private en-suite bath featuring a dual vanity, garden tub, and separate walk-in shower. Two additional bedrooms and a full bath complete the second floor, offering flexibility for guests, family, or a home office.
Additional highlights include a spacious kitchen, functional layout, and access to incredible community amenities.
Sidney Creek offers resort-style living with amenities including a pool, clubhouse, tennis courts, two pickleball courts, bocce ball, horseshoe pits, grilling deck, two fire pits, three dog parks, playground, greenway trails, and sidewalks throughout the neighborhood.
Located just 2-3 miles from downtown Zebulon, you'll enjoy convenient access to local dining, shopping, grocery stores, and entertainment, along with nearby attractions like Zebulon Community Park and Five County Stadium. Easy access to US-64 makes commuting to Raleigh and surrounding areas a breeze.
Don't miss your chance to own in one of Zebulon's most sought-after communities!...
Contact an agent
Home facts
- Year built:2024
- Listing ID #:10162380
- Added:1 day(s) ago
- Updated:April 25, 2026 at 10:49 AM
Rooms and interior
- Bedrooms:3
- Total bathrooms:3
- Full bathrooms:2
- Half bathrooms:1
- Rooms Total:8
- Flooring:Carpet, Tile, Vinyl
- Bathrooms Description:Bathtub/Shower Combination, Shower Only, Soaking Tub, Walk-In Shower
- Kitchen Description:Dishwasher, Electric Range, Electric Water Heater, Microwave, Refrigerator, Stainless Steel Appliance(s)
- Living area:1,685 sq. ft.
Heating and cooling
- Cooling:Ceiling Fan(s), Central Air
- Heating:Electric, Heat Pump
- Central air:Yes
Structure and exterior
- Roof:Shingle
- Year built:2024
- Building area:1,685 sq. ft.
- Lot area:0.04 Acres
- Architectural Style:Traditional, Transitional
- Construction Materials:Stone Veneer, Vinyl Siding
- Exterior Features:Covered, Lighting, Playground, Private Entrance, Rain Gutters, Rear Porch, Storage, Tennis Court(s)
- Foundation Description:Slab
- Levels:Two
Schools
- High school:Wake - East Wake
- Middle school:Wake - Zebulon
- Elementary school:Wake - Zebulon
Utilities
- Water:Public
- Sewer:Public Sewer
Finances and disclosures
- Price:$280,000
- Price per sq. ft.:$166.17
- Tax amount:$2,976
Features and amenities
- Appliances:Dishwasher, Dryer, Electric Range, Electric Water Heater, Microwave, Refrigerator, Stainless Steel Appliance(s), Washer
- Laundry features:Dryer, Upper Level, Washer
- Amenities:Ceiling Fan(s), Clubhouse, Crown Molding, Electric Water Heater, Kitchen Island, Management, Open Floorplan, Pantry, Pool, Quartz Counters, Smooth Ceilings, Tennis Court(s), Walk-In Closet(s), Washer
- Pool features:Association
Parking
- Parking description:Garage
- Garage:Yes
- Garage spaces:1
New listings near 685 Leland Hill Circle
- Open Sun, 1 to 3pmNew
$439,999Active3 beds 3 baths2,728 sq. ft.617 Richardson Road, Zebulon, NC 27597
MLS# 10162556Listed by: RELEVATE REAL ESTATE INC. - New
$2,350,000Active3 beds 3 baths2,958 sq. ft.5416 Pulley Town Road, Zebulon, NC 27597
MLS# 10162467Listed by: COLDWELL BANKER HPW - New
$295,000Active3 beds 2 baths1,520 sq. ft.120 Mission Belle Lane, Zebulon, NC 27597
MLS# 10162483Listed by: INTEGRA REALTY - New
$360,000Active3 beds 2 baths1,502 sq. ft.103 Sugarhill Drive, Zebulon, NC 27597
MLS# 10162295Listed by: EXP REALTY LLC - New
$469,900Active4 beds 3 baths2,544 sq. ft.36 Birchtop Circle, Zebulon, NC 27597
MLS# 10162273Listed by: JACKIE ROBERTSON TEAM, INC. - New
$465,000Active3 beds 3 baths2,114 sq. ft.97 Cotton Mill Drive, Zebulon, NC 27597
MLS# 10162017Listed by: FATHOM REALTY NC - Open Sun, 11am to 1pmNew
$370,000Active3 beds 2 baths1,654 sq. ft.191 Stratocastor Drive, Zebulon, NC 27597
MLS# 10161970Listed by: CAPITAL TO COAST REALTY COMPANY - Open Sat, 11am to 1pmNew
$355,000Active3 beds 2 baths1,685 sq. ft.78 Pedestal Court, Zebulon, NC 27597
MLS# 10161934Listed by: HTR CAPITAL GROUP - New
$309,900Active3 beds 2 baths1,194 sq. ft.12863 Eagle Ridge Drive, Zebulon, NC 27597
MLS# 10161914Listed by: VFG REALTY