-21 Windsor Lane, Colonia, NJ 07067
Local realty services provided by:ERA Reed Realty, Inc.
Office: keller williams west monmouth
MLS#:2609876R
Source:NJ_MCMLS
Price summary
- Price:$849,900
- Price per sq. ft.:$411.37
About this home
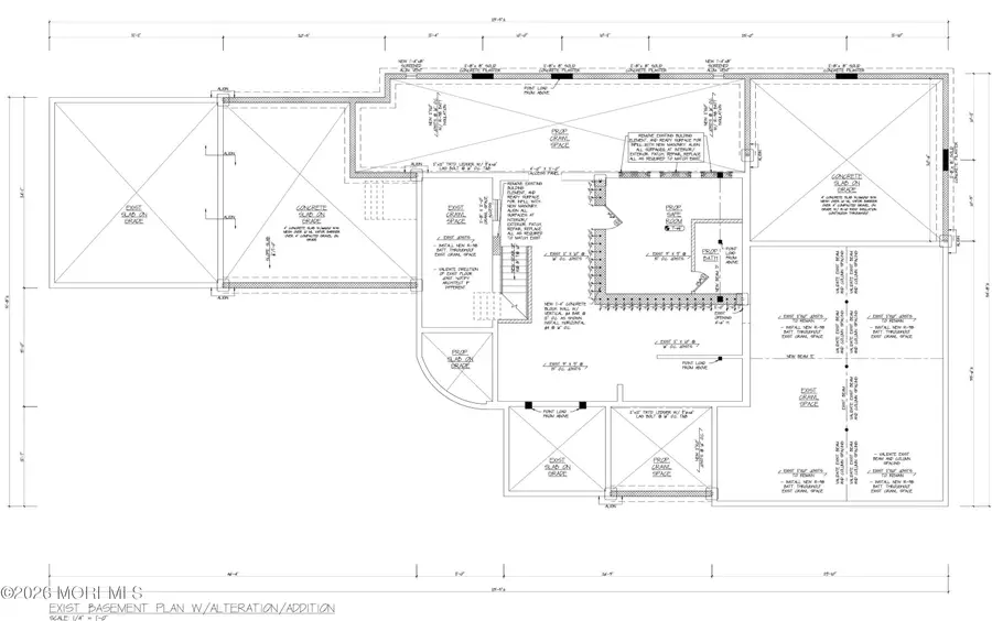
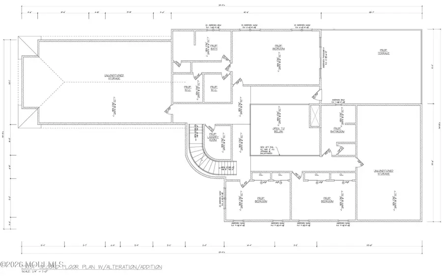
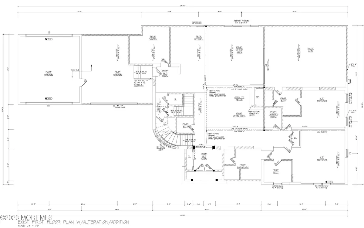
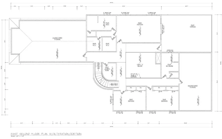
Set in Colonia's most prestigious neighborhood, this exceptional property offers a rare opportunity to create a bespoke luxury residence with professionally designed expansion plans already in place. The offering includes the existing home along with detailed architectural plans for a refined, multi-level transformation that elevates both style and functionality. The proposed design showcases a grand gourmet kitchen with a dedicated pantry, seamlessly flowing into expansive open-concept living and dining spacesideal for upscale entertaining and elegant everyday living. Thoughtful layout enhancements maximize natural light, improve circulation, and create a sophisticated atmosphere throughout the main level. The upper floor is designed with generously proportioned bedrooms, ample closet storage, a private laundry room, and beautifully appointed full bathrooms, delivering comfort, privacy, and convenience. Additional unconditioned storage areas provide discreet space for seasonal and long-term needs. The finished basement adds a versatile living environment suitable for a private lounge, media retreat, or entertaining suite, while also incorporating a reinforced safe room structure for enhanced peace of mind. Structural upgrades, including professional underpinning, ensure lasting integrity and support the expanded footprint. Multiple design concept options allow the future owner to tailor finishes and details to their personal vision while benefiting from a professionally planned foundation. This is a rare chance to bypass the design phase and move directly toward crafting a custom estate-quality home. Located in the most desirable section of Colonia, 21 Windsor Lane offers close proximity to major transportation, fine dining, shopping, and top-tier amenitiescombining luxury living with everyday convenience. This elegant private residence presents an extraordinary opportunity to create a timeless luxury home in one of the area's most sought-after locations....
Contact an agent
Home facts
- Year built:1953
- Listing ID #:2609876R
- Added:64 day(s) ago
- Updated:March 26, 2026 at 02:56 PM
Rooms and interior
- Bedrooms:3
- Total bathrooms:3
- Full bathrooms:3
- Rooms Total:6
- Dining Description:Living Dining Combo
- Kitchen Description:Kitchen
- Basement Description:Daylight, Full, Interior Entry
- Living area:2,066 sq. ft.
Heating and cooling
- Heating:Forced Air
Structure and exterior
- Roof:Asphalt
- Year built:1953
- Building area:2,066 sq. ft.
- Lot area:0.82 Acres
- Lot Features:Cul-De-Sac, Dead - End Street
- Architectural Style:Ranch
- Levels:1 Story
Utilities
- Water:Public
- Sewer:Public Sewer
Finances and disclosures
- Price:$849,900
- Price per sq. ft.:$411.37
- Tax amount:$16,982
Features and amenities
- Appliances:Gas Water Heater
- Amenities:Attic, Gas Water Heater
Parking
- Parking description:2 Car Width, 3 Cars Deep, Asphalt Driveway, Detached
- Garage:Yes
- Garage spaces:2
New listings near -21 Windsor Lane
- New
$1,129,900Active5 beds 4 baths2,950 sq. ft.-122 Arthur Avenue, Colonia, NJ 07067
MLS# 2612706RListed by: MJ HOMES REALTY, LLC. - Open Sat, 12 to 3pmNew
$639,000Active4 beds 2 baths1,371 sq. ft.-32 Tanglewood Lane, Colonia, NJ 07067
MLS# 2611611RListed by: WEICHERT CO REALTORS - New
$850,000Active4 beds 3 baths2,673 sq. ft.-377 New Dover Road, Colonia, NJ 07067
MLS# 2661519MListed by: DAUNNO REALTY SERVICES, LLC. - New
$899,000Active4 beds 3 baths15 New Dover Ave, Woodbridge Twp., NJ 07067
MLS# 4015561Listed by: REDFIN CORPORATION - New
$499,000Active4 beds 2 baths1,482 sq. ft.-44 Mckinley Avenue, Colonia, NJ 07067
MLS# 2612464RListed by: EXP REALTY, LLC - New
$674,900Active3 beds 3 baths1,800 sq. ft.-112 Mckinley Avenue, Colonia, NJ 07067
MLS# 2611977RListed by: RE/MAX 1ST ADVANTAGE - New
$1,079,000Active4 beds 3 baths3,390 sq. ft.-53 Princeton Avenue, Colonia, NJ 07067
MLS# 2661493MListed by: BHHS FOX & ROACH REALTORS - New
$625,000Active4 beds 3 baths-38 Lincoln Avenue, Colonia, NJ 07067
MLS# 2612325RListed by: BH HOMESERVICES FOX & ROACH - New
$650,000Active4 beds 2 baths2,200 sq. ft.-69 Stanford Avenue, Colonia, NJ 07067
MLS# 2612074RListed by: RE/MAX 1ST ADVANTAGE
$625,000Active3 beds 2 baths1,052 sq. ft.-17 Thelma Court, Colonia, NJ 07067
MLS# 2612143RListed by: REALTY ONE GROUP LIFESTYLE HOM