1 Division Pl, East Orange, NJ 07017
Local realty services provided by:Burgdorff ERA
1 Division Pl,East Orange City, NJ 07017
$275,000
- 0.06 Acres
- Lots / Land
- Active
Listed by:victor ramos faist
Office:keller williams park views
MLS#:3994440
Source:NJ_GSMLS
Price summary
- Price:$275,000
About this home
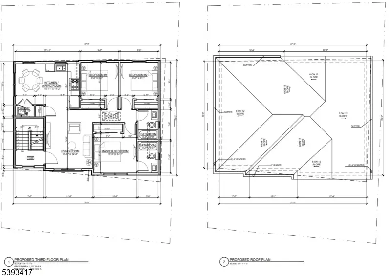
Prime East Orange Development Opportunity!This rare, shovel-ready lot in East Orange comes with fully approved plans to build a stunning brand-new two-family home totaling approximately 3,000 sq. ft. The proposed design includes 6 bedrooms and 4.5 bathrooms, offering excellent rental or resale potential. With ARVs ranging from $900K to $950K in the area, this is a high-upside investment opportunity.All plans and city approvals are included, meaning the buyer can skip the lengthy approval process simply apply for permits and start building right away! The lot is clear, flat, and has all utilities available at the street, saving time and costs. A survey is also available.Located in a desirable neighborhood, the property sits just half a mile from the East Orange Train Station (walkable distance), providing easy access to major transit, highways, shops, and schools. Few lots like this remain in such a convenient and growing area.Don't miss this chance to develop immediately in one of East Orange's most promising locations a turnkey project with everything ready to go!
Contact an agent
Home facts
- Listing ID #:3994440
- Added:5 day(s) ago
- Updated:October 30, 2025 at 06:03 PM
Structure and exterior
- Lot area:0.06 Acres
Utilities
- Water:Public Water in Street
- Sewer:Public Sewer In Street
Finances and disclosures
- Price:$275,000
- Tax amount:$1,099 (2024)
New listings near 1 Division Pl
- New
$535,000Active4 beds 3 baths1,425 sq. ft.65 Leslie St, East Orange City, NJ 07017
MLS# 3995332Listed by: RE/MAX FIRST REALTY II - New
$549,900Active8 beds 3 baths2,329 sq. ft.552 Norwood St, East Orange City, NJ 07018
MLS# 3995310Listed by: COLDWELL BANKER REALTY ALP - New
$599,000Active7 beds 2 baths101 Eaton Pl, East Orange City, NJ 07017
MLS# 3995222Listed by: TWRG REALTY GROUP - Open Sat, 2 to 4pmNew
$649,999Active6 beds 3 baths154 Eppirt St, East Orange City, NJ 07018
MLS# 3995146Listed by: EXODUS REAL ESTATE - New
$684,900Active7 beds 4 baths234 Halsted, East Orange City, NJ 07018
MLS# 3995051Listed by: EXP REALTY, LLC - New
$429,000Active7 beds 3 baths65 N Grove St, East Orange City, NJ 07017
MLS# 3994984Listed by: TWRG REALTY GROUP - New
$899,000Active8 beds 4 baths60 Cambridge St, East Orange City, NJ 07018
MLS# 3994873Listed by: PREMIERBLU - Open Sat, 1 to 3pmNew
$599,999Active4 beds 3 baths63 Oak Street, East Orange, NJ 07018
MLS# 25038399Listed by: CAMPODONICO REALTY LLC - New
$899,000Active9 beds 5 baths253 Midland Ave, East Orange City, NJ 07017
MLS# 3994806Listed by: COLDWELL BANKER REALTY - Open Sat, 11am to 1pmNew
$459,999Active3 beds 2 baths510 Halsted Street, East Orange, NJ 07018
MLS# 25038392Listed by: CAMPODONICO REALTY LLC