-1821 Oak Tree Road, Edison, NJ 08820
Local realty services provided by:ERA Central Realty Group
Office: keller williams elite realtors
MLS#:2610366R
Source:NJ_MCMLS
Price summary
- Price:$1,350,000
About this home
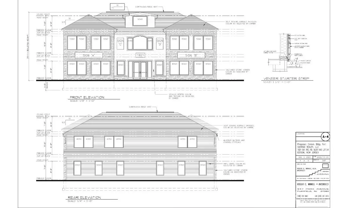
Prime Edison Commercial Opportunity | 0.5-Acre Shovel-Ready Site Rare Investment Opportunity in a High-Demand Location Skip the years of bureaucratic delays and red tape. This 100' x 200' (1/2 Acre) vacant lot in the heart of Edison is officially shovel-ready. With the heavy lifting of the approval process already completed, this property is perfect for investors and developers looking to break ground immediately. Property Highlights * Lot Size: 1/2 Acre (100' \times 200') * Total Buildable Area: 5,300 Square Feet * Status: Vacant, level, and ready for construction * Approvals: Full site plans approved. No need to spend time or resources navigating the municipal approval process. * Final Steps: Currently awaiting final utility sign-off. Once cleared, construction can begin instantly. Why This Property? Finding a lot of this size in Edison's central corridor is an extreme rarity. This sale offers a streamlined path to ownership and development without the typical 12-24 month wait for zoning and planning sign permits. This site is uniquely positioned for high-value commercial use, including: * State-of-the-Art Medical Office: Perfect for private practices, or specialty clinics. * Professional Office Suites: Ideal for legal, financial, or corporate headquarters. * Mixed-Use Commercial: Combining professional space with modern utility. > Investor Note: This is a turnkey development sale. The value lies not just in the land, but in the approved plans that allow you to bypass the traditional development timeline....
Contact an agent
Home facts
- Listing ID #:2610366R
- Added:52 day(s) ago
- Updated:March 26, 2026 at 02:56 PM
Structure and exterior
- Lot Features:Near Shopping, Near Train
Finances and disclosures
- Price:$1,350,000
- Tax amount:$7,144
New listings near -1821 Oak Tree Road
- New
$419,900Active2 beds 2 baths-809 Woodhaven Drive, Edison, NJ 08817
MLS# 2612872RListed by: KELLER WILLIAMS ELITE REALTORS - New
$500,000Active3 beds 1 baths1,008 sq. ft.117 Winthrop Rd, EDISON, NJ 08817
MLS# NJMX2011638Listed by: BHHS ZACK SHORE REALTORS - Coming SoonOpen Sat, 12 to 2pm
$699,900Coming Soon3 beds 3 baths-8 Adelphi Court, Edison, NJ 08837
MLS# 2612763RListed by: RE/MAX COMPETITIVE EDGE - Open Sun, 1 to 4pmNew
$599,000Active3 beds 2 baths8,590 sq. ft.-4 Estok Road, Edison, NJ 08817
MLS# 2612779RListed by: PREMIER HOME PROS - Coming Soon
$490,000Coming Soon3 beds 1 baths-25 Ovington Avenue, Edison, NJ 08817
MLS# 2612838RListed by: HALO REALTY - New
$175,000Active1 beds 1 baths-5 York Drive #5B, Edison, NJ 08817
MLS# 2612812RListed by: JOHN ANTHONY AGENCY C-21 - Open Sat, 1 to 4pmNew
$1,299,000Active5 beds 5 baths2,904 sq. ft.-1855 Woodland Avenue, Edison, NJ 08820
MLS# 2612803RListed by: JOHN ANTHONY AGENCY C-21 - Open Sat, 1 to 3pmNew
$375,000Active2 beds 2 baths1,248 sq. ft.-1614 Edison Glen Terrace, Edison, NJ 08837
MLS# 2612769RListed by: KELLER WILLIAMS REALTY - Open Sun, 1 to 4pmNew
$445,000Active2 beds 2 baths1,034 sq. ft.-1223 Waterford Drive, Edison, NJ 08817
MLS# 2612671RListed by: KELLER WILLIAMS ELITE REALTORS - New
$900,000Active2 beds 2 baths612 sq. ft.-15 Riverview Avenue, Edison, NJ 08817
MLS# 2661553MListed by: COLDWELL BANKER REALTY