263 Hopkins Rd, Haddonfield, NJ 08033
Local realty services provided by:ERA Byrne Realty
263 Hopkins Rd,Haddonfield, NJ 08033
$459,900
- 3 Beds
- 1 Baths
- 1,362 sq. ft.
- Single family
- Pending
Listed by: dana m ubele
Office: the property alliance llc.
MLS#:NJCD2112434
Source:BRIGHTMLS
Price summary
- Price:$459,900
- Price per sq. ft.:$337.67
About this home
Welcome to this charming 3-bedroom, 1-bath Colonial located in the highly desirable Haddonleigh section of Haddon Township. Known for its tree-lined streets, classic homes, and convenient location just minutes from Haddon Avenue’s restaurants, shops, and the PATCO Speedline, this neighborhood remains one of the most sought-after areas in the township.
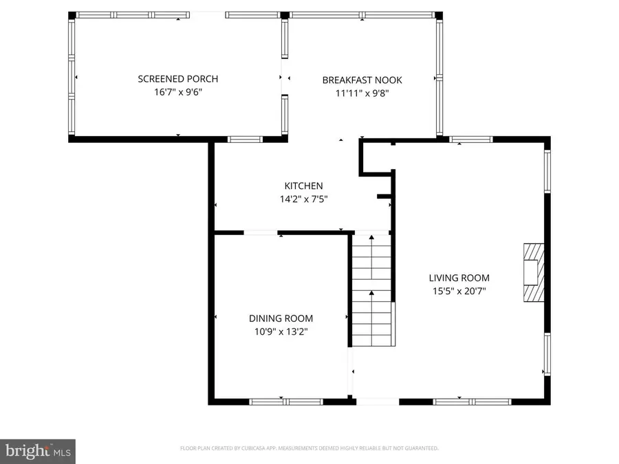
The first floor offers a spacious traditional layout featuring a large formal living room with fireplace, a formal dining room, and a kitchen with wooden cabinetry. Just off the kitchen you will find a comfortable family room, along with an enclosed porch that overlooks the fenced rear yard—a great space for relaxing, entertaining, or enjoying your morning coffee.
The second floor features three ample-sized bedrooms and a full bath, along with pull-down attic stairs providing convenient additional storage.
Additional features include a full unfinished basement offering plenty of storage or future finishing potential, a 1-car attached garage, and a fully fenced backyard—perfect for pets, gardening, or outdoor gatherings. All kitchen appliances, along with the washer and dryer, are included in the sale.
Recent improvements include a new roof (December 2023), chimney liners (November 2023), and newer A/C, front door, and garage door installed in 2024, offering added peace of mind for the next owner.
Located in a wonderful established neighborhood close to parks, schools, shopping, and major commuting routes, this home offers a fantastic opportunity to own in one of Haddon Township’s most desirable communities....
Contact an agent
Home facts
- Year built:1948
- Listing ID #:NJCD2112434
- Added:64 day(s) ago
- Updated:May 14, 2026 at 07:41 AM
Rooms and interior
- Bedrooms:3
- Total bathrooms:1
- Full bathrooms:1
- Rooms Total:7
- Flooring:Fully Carpeted, Tile/Brick, Vinyl
- Dining Description:Dining Room
- Kitchen Description:Dishwasher, Disposal
- Bedroom Description:Primary Bedroom
- Basement:Yes
- Basement Description:Fully Finished, Partial
- Living area:1,362 sq. ft.
Heating and cooling
- Cooling:Central A/C
- Heating:Forced Air, Natural Gas
Structure and exterior
- Roof:Shingle
- Year built:1948
- Building area:1,362 sq. ft.
- Lot area:0.17 Acres
- Architectural Style:Colonial
- Construction Materials:Aluminum Siding, Brick
- Foundation Description:Block
- Levels:2 Stories
Schools
- High school:HADDON TOWNSHIP
Utilities
- Water:Public
- Sewer:Public Sewer
Finances and disclosures
- Price:$459,900
- Price per sq. ft.:$337.67
- Tax amount:$8,810 (2025)
Features and amenities
- Amenities:100 Amp Service, Ceiling Fan(s)
Parking
- Parking description:Attached Garage, Built In, Garage - Front Entry
- Garage:Yes
- Garage spaces:1
New listings near 263 Hopkins Rd
- New
$1,495,000Active5 beds 4 baths2,750 sq. ft.213 Warwick Rd, HADDONFIELD, NJ 08033
MLS# NJCD2117346Listed by: LISA WOLSCHINA & ASSOCIATES, INC. - Coming SoonOpen Sat, 12 to 3pm
$499,000Coming Soon3 beds 2 baths158 Ellis St, HADDONFIELD, NJ 08033
MLS# NJCD2116872Listed by: KELLER WILLIAMS - MAIN STREET - Open Sun, 12 to 2pmNew
$650,000Active4 beds 2 baths2,037 sq. ft.29 W Euclid Ave, HADDONFIELD, NJ 08033
MLS# NJCD2116866Listed by: PROMINENT PROPERTIES SOTHEBY'S INTL REALTY - Coming Soon
$2,695,000Coming Soon5 beds 7 baths161 Gill Rd, HADDONFIELD, NJ 08033
MLS# NJCD2114970Listed by: KELLER WILLIAMS REALTY - MOORESTOWN - New
$1,545,000Active5 beds 4 baths3,300 sq. ft.83 Centre St, HADDONFIELD, NJ 08033
MLS# NJCD2114626Listed by: COMPASS NEW JERSEY, LLC - HADDON TOWNSHIP - Open Sun, 12 to 2pmNew
$449,000Active3 beds 1 baths1,102 sq. ft.225 Bradley Ave, HADDONFIELD, NJ 08033
MLS# NJCD2114776Listed by: COMPASS NEW JERSEY, LLC - HADDON TOWNSHIP - Coming SoonOpen Sat, 12 to 2pm
$650,000Coming Soon5 beds 2 baths300 Hutchinson Ave, HADDONFIELD, NJ 08033
MLS# NJCD2116328Listed by: BETTER HOMES AND GARDENS REAL ESTATE MATURO - New
$625,000Active3 beds 2 baths1,654 sq. ft.404 Graisbury Ave, HADDONFIELD, NJ 08033
MLS# NJCD2116630Listed by: KELLER WILLIAMS REALTY - MOORESTOWN
$650,000Pending4 beds 3 baths1,912 sq. ft.871 Wayside Ln, HADDONFIELD, NJ 08033
MLS# NJCD2116420Listed by: BHHS FOX & ROACH - HADDONFIELD
$850,000Pending4 beds 3 baths2,272 sq. ft.147 Hawthorne Ave, HADDONFIELD, NJ 08033
MLS# NJCD2116348Listed by: WEICHERT REALTORS-HADDONFIELD