0 Sunnyhill Ave/mary Duffy Dr, Williamstown, NJ 08094
Local realty services provided by:ERA Martin Associates
0 Sunnyhill Ave/mary Duffy Dr,Williamstown, NJ 08094
$850,000
- 7.1 Acres
- Lots / Land
- Active
Listed by:thomas p. duffy
Office:keller williams realty - washington township
MLS#:NJGL2065000
Source:BRIGHTMLS
Price summary
- Price:$850,000
- Monthly HOA dues:$23.75
About this home
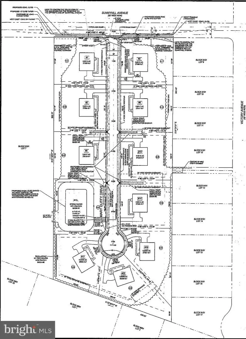
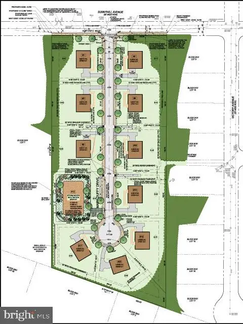
RESIDENTIAL DEVELOPMENT OPPORTUNITY: Rare, fully approved 10-lot residential subdivision in desirable Monroe Township. Skip the entitlement risk and timeline—approvals are in place so you can focus on engineering, site work, and vertical construction planning. Highlights: 10 buildable lots (final subdivision approvals in hand), Monroe Township, New Jersey – strong demand & growth corridor, All approvals complete for subdivision (docs available upon request), Clean exit or build-out: sell finished lots, build spec/custom, or partner, Prime location with convenient access to major roadways, schools, and amenities.
Ideal for: Builders, small-to-mid developers, and investor groups seeking an entitled project to accelerate pipeline. Due Diligence/Access: Approval and plans available for review.
Contact an agent
Home facts
- Listing ID #:NJGL2065000
- Added:22 day(s) ago
- Updated:November 01, 2025 at 01:36 PM
Structure and exterior
- Lot area:7.1 Acres
Utilities
- Water:Well Required
- Sewer:Public Hook/Up Avail
Finances and disclosures
- Price:$850,000
- Tax amount:$2,310 (2025)
New listings near 0 Sunnyhill Ave/mary Duffy Dr
- New
$80,000Active2 beds 1 baths900 sq. ft.40 N Dale Ln, WILLIAMSTOWN, NJ 08094
MLS# NJGL2065908Listed by: RE/MAX COMMUNITY-WILLIAMSTOWN - New
$399,900Active3 beds 2 baths1,584 sq. ft.741 N Tuckahoe Rd, WILLIAMSTOWN, NJ 08094
MLS# NJGL2065878Listed by: EXPRESSWAY REALTY LLC - Open Sat, 11am to 1pmNew
$365,000Active3 beds 1 baths1,236 sq. ft.1398 New Brooklyn Rd, WILLIAMSTOWN, NJ 08094
MLS# NJGL2065882Listed by: THE PLUM REAL ESTATE GROUP, LLC - Coming Soon
$315,000Coming Soon3 beds 2 baths1011 S Beecham Rd, WILLIAMSTOWN, NJ 08094
MLS# NJGL2065754Listed by: BHHS FOX & ROACH-WASHINGTON-GLOUCESTER - Coming SoonOpen Sat, 12 to 2pm
$425,000Coming Soon4 beds 2 baths1008 London Cir, WILLIAMSTOWN, NJ 08094
MLS# NJGL2065862Listed by: KELLER WILLIAMS REALTY - MOORESTOWN - New
$294,900Active3 beds 3 baths1,578 sq. ft.1029 Baywood Dr, WILLIAMSTOWN, NJ 08094
MLS# NJGL2065768Listed by: REAL OF PENNSYLVANIA - New
$599,900Active3 beds 2 baths2,028 sq. ft.244 Jackson Rd, WILLIAMSTOWN, NJ 08094
MLS# NJAC2021484Listed by: RE/MAX COMMUNITY-WILLIAMSTOWN - Open Sat, 1 to 3pmNew
$535,000Active2 beds 2 baths2,171 sq. ft.215 Kippen Dr, WILLIAMSTOWN, NJ 08094
MLS# NJGL2065780Listed by: REAL BROKER, LLC - Coming Soon
$250,000Coming Soon3 beds 2 baths747 Cains Mill Rd, WILLIAMSTOWN, NJ 08094
MLS# NJAC2021498Listed by: BHHS FOX & ROACH-WASHINGTON-GLOUCESTER - Open Sat, 1 to 3pmNew
$425,000Active3 beds 3 baths2,343 sq. ft.1121 Lafayette St, WILLIAMSTOWN, NJ 08094
MLS# NJGL2065616Listed by: REAL BROKER, LLC