2614 Box Lake Drive Ne, Rio Rancho, NM 87144
Local realty services provided by:ERA Sellers & Buyers Real Estate
2614 Box Lake Drive Ne,Rio Rancho, NM 87144
- 3 Beds
- 3 Baths
- - sq. ft.
- Single family
- Sold
Listed by: brian leigh earnest
Office: realty one of new mexico
MLS#:1092115
Source:NM_SWMLS
Sorry, we are unable to map this address
Price summary
- Price:
About this home
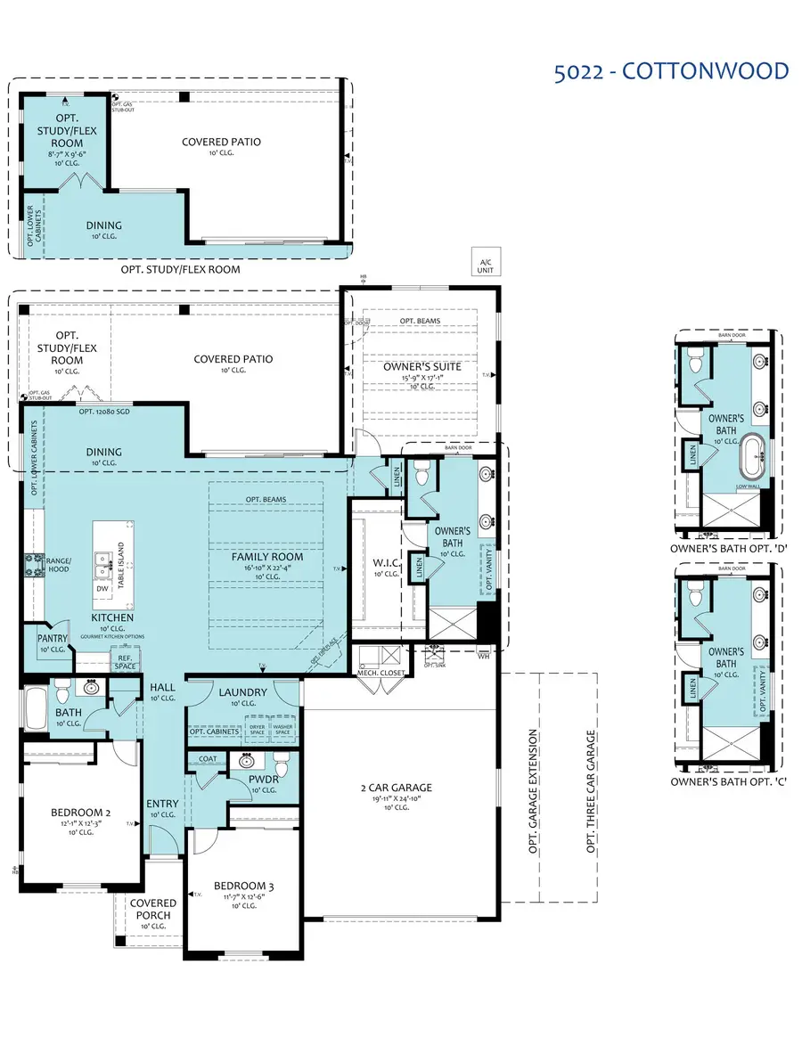
New Construction with Office on 1/2 Acre Lot! This single-story 2,318 sq ft Green Build Gold Certified home offers the perfect blend of style, comfort, and efficiency. Set on a 1/2 acre lot with city water and sewer, it features 3 bedrooms plus an office, and a spacious extended covered patio with a 12' sliding glass panel door for seamless indoor-outdoor living. Warm wood beam accents add character, while the gourmet kitchen shines with stainless steel appliances and granite counters throughout. Energy-smart and thoughtfully designed, this home combines modern convenience and privacy. Home construction began is scheduled to complete in January 2026. Call or visit Amreston Homes for more information or to schedule a tour.
Contact an agent
Home facts
- Year built:2026
- Listing ID #:1092115
- Added:210 day(s) ago
- Updated:April 28, 2026 at 07:45 PM
Rooms and interior
- Bedrooms:3
- Total bathrooms:3
- Full bathrooms:2
- Half bathrooms:1
- Flooring:Carpet, Tile
- Dining Description:Living Dining Combo
- Bathrooms Description:Separate Shower, Soaking Tub
- Kitchen Description:Cooktop, Dishwasher, Microwave, Pantry, Self Cleaning Oven
Heating and cooling
- Cooling:Refrigerated
- Heating:Central, Forced Air, Natural Gas
Structure and exterior
- Roof:Pitched, Shingle
- Year built:2026
- Lot Features:Landscaped
- Construction Materials:Frame, Stone, Synthetic Stucco
- Exterior Features:Patio, Private Entrance
- Levels:1 Story
Utilities
- Water:Public, Water Connected
- Sewer:Public Sewer, Sewer Connected
Finances and disclosures
- Price:
- Tax amount:$418
Features and amenities
- Appliances:Cooktop, Dishwasher, Microwave, Self Cleaning Oven
- Amenities:Insulated Windows, Low Emissivity Windows, Vinyl Windows
Parking
- Parking description:Garage
- Garage:Yes
- Garage spaces:2
New listings near 2614 Box Lake Drive Ne
- New
$5,000Active0.5 AcresLt19 N Natlie Road Ne #25, Rio Rancho, NM 87144
MLS# 1102480Listed by: PQUAIL REALTY & PROPERTY MGMT - New
$130,000Active2.5 Acres5591 Iris Road Ne, Rio Rancho, NM 87144
MLS# 1102481Listed by: OSO ELITE REALTY - New
$379,000Active3 beds 2 baths1,716 sq. ft.5041 27th Avenue Ne, Rio Rancho, NM 87144
MLS# 1102452Listed by: BERKSHIRE HATHAWAY NM PROP - New
$643,668Active4 beds 3 baths2,597 sq. ft.2050 Althea Lane Ne, Rio Rancho, NM 87144
MLS# 1102454Listed by: PULTE HOMES OF NEW MEXICO - New
$420,000Active3 beds 3 baths1,989 sq. ft.885 Tazanita Loop Se, Rio Rancho, NM 87124
MLS# 1102434Listed by: COLDWELL BANKER LEGACY - New
$24,000Active1 Acres29th (u5 B29 L3) Street Sw #5, Rio Rancho, NM 87124
MLS# 1102425Listed by: COLLIERS INTERNATIONAL - New
$1,500Active0.5 AcresMarble (u26 B46 L14) Road Ne #26, Rio Rancho, NM 87144
MLS# 1102426Listed by: COLLIERS INTERNATIONAL - New
$1,300Active0.57 AcresOberon (u26 B54 L28) Road Nw #26, Rio Rancho, NM 87144
MLS# 1102427Listed by: COLLIERS INTERNATIONAL - New
$447,900Active3 beds 2 baths2,204 sq. ft.6530 Shiprock Drive Ne, Rio Rancho, NM 87144
MLS# 202601138Listed by: KELLER WILLIAMS REALTY
$650,000Active3 beds 2 baths2,149 sq. ft.4517 Huron Drive Ne, Rio Rancho, NM 87144
MLS# 1101656Listed by: BROWN & ASSOCIATES, INC.