449 Camino Monte Vista, Santa Fe, NM 87505
Local realty services provided by:ERA Summit
449 Camino Monte Vista,Santa Fe, NM 87505
$1,195,000Last list price
- - Acres
- Lots / Land
- Sold
Listed by: darlene l. streit
Office: sotheby's int. re/grant
MLS#:202600666
Source:NM_SFAR
Sorry, we are unable to map this address
Price summary
- Price:$1,195,000
About this home
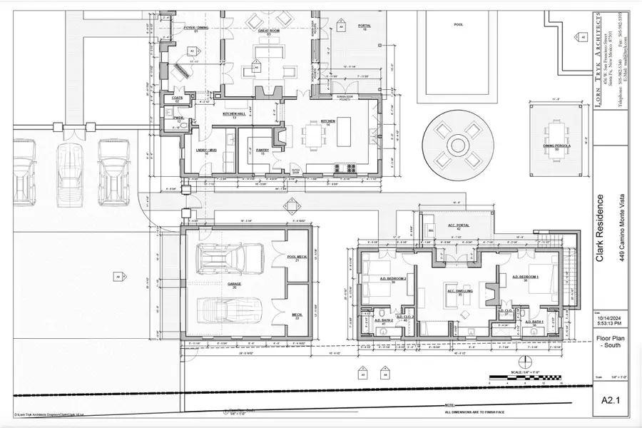
Prime Historic Eastside nearly 3/4-acre residential lot with R-3 zoning located in the heart of the prime Acequia Madre neighborhood. This area is renowned for its unique charm, featuring gracefully curved walls, aged Mexican doors, and lush cascades of wisteria and willows. The Acequia Madre neighborhood represents the essence of Eastside Santa Fe—romantic, time-honored, and rich in history. Here, you will enjoy breathtaking views of the surrounding mountain ranges and the brilliant blue skies that New Mexico is famous for, providing a stunning backdrop for your future home. Lot includes architectural drawings by renowned architect Lorn Tryk for a territorial style 5 bedroom, 5.5 bath home (including casita), surrounded by an abundance of outdoor living spaces, portals and pool. or the home and casita have already been approved by the City of Santa Fe. Award-inning builder Scott Wong of Solterra Design Build is ready to turn these plans into a reality. Convenience is at your fingertips with Downtown Subscription, a popular local coffee shop and gathering spot, just a short distance away. Additionally, Kaune’s Neighborhood Market is nearby. The vibrant art scene of Canyon Road and the cultural heart of the Santa Fe Plaza are also within easy reach, allowing for endless exploration and enjoyment. This lot presents a unique chance to create a residence in an iconic neighborhood, where every corner reflects the rich heritage and artistic spirit of of Santa Fe....
Contact an agent
Home facts
- Listing ID #:202600666
- Added:44 day(s) ago
- Updated:April 10, 2026 at 06:56 AM
Schools
- High school:Santa Fe
- Middle school:Milagro
- Elementary school:Acequia Madre
Utilities
- Water:Private, Public, Water Available
- Sewer:Public Sewer, Sewer Available, Water Available
Finances and disclosures
- Price:$1,195,000
New listings near 449 Camino Monte Vista
- New
$3,995,000Active4 beds 5 baths4,378 sq. ft.974 Old Santa Fe Trail, Santa Fe, NM 87505
MLS# 202601286Listed by: SOTHEBY'S INT. RE/WASHINGTON - New
$859,000Active3 beds 3 baths2,267 sq. ft.1 Oriente Court, Santa Fe, NM 87508
MLS# 202601429Listed by: SOTHEBY'S INT. RE/GRANT - New
$220,000Active3.24 Acres12 Parsley Circle, Santa Fe, NM 87506
MLS# 202601476Listed by: SOTHEBY'S INT. RE/GRANT - New
$775,000Active4 beds 3 baths2,054 sq. ft.62 Encantado Loop, Santa Fe, NM 87508
MLS# 202601259Listed by: SOTHEBY'S INT. RE/GRANT - New
$300,000Active6.62 Acres30 Sendero Del Oso, Santa Fe, NM 87506
MLS# 202601375Listed by: RE MAX FIRST - Open Sat, 12 to 2pmNew
$660,000Active3 beds 2 baths1,414 sq. ft.1008 Osage Circle, Santa Fe, NM 87505
MLS# 202601422Listed by: REAL BROKER LLC. - New
$675,000Active3 beds 2 baths1,918 sq. ft.3064 Plaza Blanca, Santa Fe, NM 87507
MLS# 202601380Listed by: SOTHEBY'S INT. RE/GRANT - Open Sat, 2 to 4pmNew
$950,000Active2 beds 2 baths1,757 sq. ft.3101 Old Pecos Trail #424, Santa Fe, NM 87505
MLS# 202601444Listed by: SOTHEBY'S INT. RE/WASHINGTON - Open Sun, 1am to 3pmNew
$230,000Active1 beds 1 baths469 sq. ft.2600 W Zia Road #K-7, Santa Fe, NM 87505
MLS# 202601377Listed by: KELLER WILLIAMS REALTY - New
$665,000Active4 beds 2 baths1,568 sq. ft.101 Lugar De Oro, Santa Fe, NM 87501
MLS# 202601406Listed by: BARKER REALTY, LLC