33 Keen Court, Brooklyn, NY 11229
Local realty services provided by:ERA Top Service Realty
33 Keen Court,Brooklyn, NY 11229
$899,000
- 3 Beds
- 3 Baths
- 2,025 sq. ft.
- Single family
- Active
Upcoming open houses
- Sun, Mar 2902:45 pm - 03:30 pm
Listed by: mark geller
Office: reliable sell & buy realty inc
MLS#:497212
Source:BROOKLYN
Price summary
- Price:$899,000
- Price per sq. ft.:$443.95
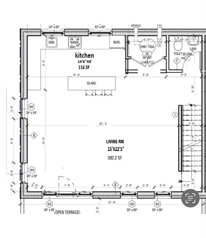
About this home
New Construction Home ! PRICES STARTS FROM $ 779.000.00 ! Every detail has been thoughtfully designed. Spacious, light-filled rooms flow seamlessly creating an atmosphere of refined comfort and effortless entertaining. The main level offers grand scale living, high ceilings, and lush textures—ideal for elegant dinners and celebrations. The contemporary design extends to luxurious bathrooms, radiant heated floors throughout, and a convenient washer and dryer hook-up. Natural light pours in through triple-pane, sound-attenuating windows, while the multi-zone HVAC system ensures year-round comfort. Additional space offers flexibility for an office, a balcony, a garage, a driveway, and a private backyard perfect for entertaining. Energy-efficient construction keeps costs low, living in Brooklyn Suburb, Gerritsen Beach Area! Home is architecturally crafted and carefully designed with the best European material. Each detail of home offers the most comfort for your individual needs. Lower level featuring additional living space with two entrances that can be great for office, or family/movie room. A built-in closet and master bedroom includes a large walk-in closet. Top to bottom European glass windows and doors to terrace bring in an enormous amount of natural light. Spotlights through all three floors of the house. Balcony conveniently accessible from living room area. Central cooling system is controlled from each room separate. Top two floors offer hardwood flooring. Laundry room is conveniently located on the second floor of the house. Garage and driveway for two private parking areas. Backyard is accessible from first floor and features open space for outdoor relaxing and summer cooking. Energy efficient home with foam insulation, triple insulated windows, LED lightning and modern high efficiency heat pump and heat exchanger helps to conserve energy and keep the cost of heating/cooling low. Brand new Samsung appliances! low bills and property tax as well!...
Contact an agent
Home facts
- Year built:2024
- Listing ID #:497212
- Added:538 day(s) ago
- Updated:March 23, 2026 at 08:05 PM
Rooms and interior
- Bedrooms:3
- Total bathrooms:3
- Full bathrooms:2
- Rooms Total:7
- Flooring:Granite, Hardwood
- Bathrooms Description:1 Bathroom(s) on Level 2, 2 Bathroom(s) on Level 3
- Kitchen Description:Dishwasher, Microwave, Refrigerator
- Bedroom Description:3 Bedroom(s) on Level 3
- Basement Description:Finished, Full, Separate Entrance, Walk-in
- Living area:2,025 sq. ft.
Heating and cooling
- Heating:Ductless/Split
Structure and exterior
- Roof:Pitched
- Year built:2024
- Building area:2,025 sq. ft.
- Lot area:0.03 Acres
- Architectural Style:Duplex
- Construction Materials:Brick Face
- Exterior Features:Back Yard, Front Yard, Porch
- Foundation Description:Poured Concrete
- Levels:3 Stories
Finances and disclosures
- Price:$899,000
- Price per sq. ft.:$443.95
Features and amenities
- Laundry features:Dryer, Laundry Area
Parking
- Parking description:2 Spaces
New listings near 33 Keen Court
- New
$1,460,000Active-- beds 6 baths1424 71st Street, Brooklyn, NY 11228
MLS# 500017Listed by: BHHS FILLMORE R.E. - New
$269,000Active1 beds 1 baths750 sq. ft.394 Avenue S #4A, Brooklyn, NY 11223
MLS# 500018Listed by: BHHS FILLMORE R.E. - New
$871,000Active2 beds 2 baths770 sq. ft.2286 Cropsey Avenue #21H, Brooklyn, NY 11214
MLS# 500019Listed by: MOMENTUM REAL ESTATE LLC - New
$978,000Active2 beds 3 baths1,589 sq. ft.2427 East 17th Street, Brooklyn, NY 11235
MLS# 499908Listed by: TIGER REALTY - New
$1,050,000Active3 beds 3 baths2,222 sq. ft.4334 Bedford Avenue, Brooklyn, NY 11229
MLS# 499977Listed by: BEHFAR TEAM, LLC - Open Sun, 12 to 2pmNew
$829,000Active5 beds 2 baths2,156 sq. ft.1222 E 83rd Street, Brooklyn, NY 11236
MLS# 977013Listed by: EXIT ALL SEASONS REALTY - New
$1,348,000Active3 beds 2 baths1,618 sq. ft.1925 East 16th Street, Brooklyn, NY 11229
MLS# 499999Listed by: BEN BAY REALTY CO OF BAY RIDGE - New
$1,928,000Active9 beds 6 baths4,432 sq. ft.1213 Desmond Court, Brooklyn, NY 11235
MLS# 500000Listed by: RE/MAX EDGE - New
$979,500Active3 beds 2 baths1,955 sq. ft.1833 East 33rd Street, Brooklyn, NY 11234
MLS# 500001Listed by: REAL BROKER NY LLC - New
$1,425,000Active6 beds 3 baths226 61st Street, Brooklyn, NY 11220
MLS# 500002Listed by: PARKVIEW TERRACE REALTY