20-22 Broadlawn Drive, Central Islip, NY 11722

Local realty services provided by:ERA Caputo Realty
20-22 Broadlawn Drive,Central Islip, NY 11722
$599,999
  • 3 Beds
  • 3 Baths
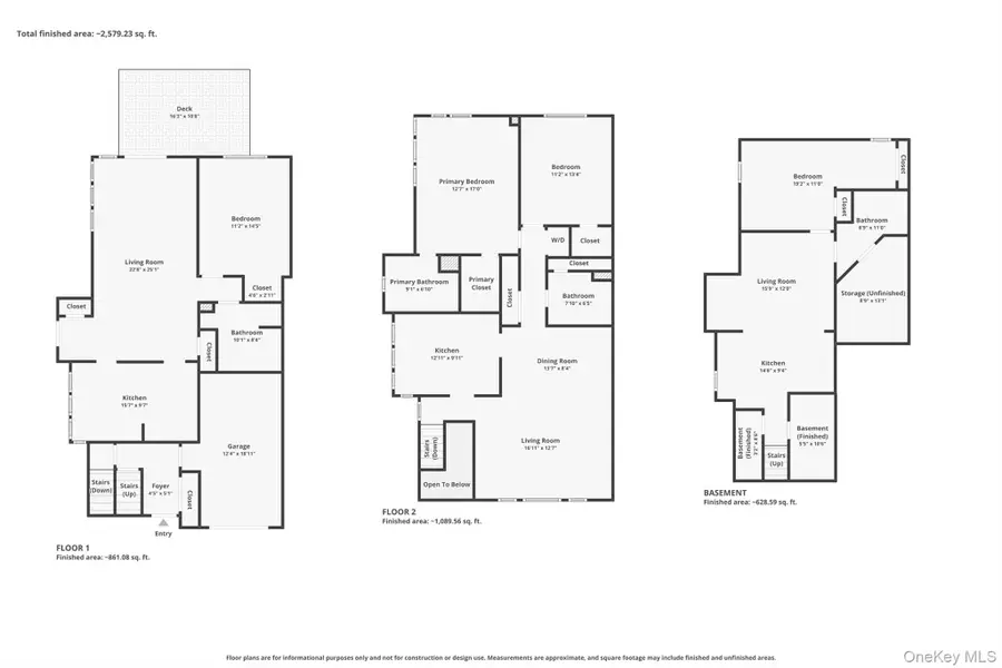
  • 2,311 sq. ft.
  • Condominium
  • Active
Upcoming open houses
  • Sat, Apr 04
    11:00 am - 01:00 pm
Listed by: ashley hendriks
Office: berkshire hathaway
MLS#:978997
Source:OneKey MLS

Price summary

  • Price:$599,999
  • Price per sq. ft.:$259.63
  • Monthly HOA dues:$552

About this home

Don't miss this rare opportunity to own a turn-key legal 2-family corner unit in the highly sought-after Park Row Townhouse community! The beautifully updated, sunlit primary residence features soaring cathedral ceilings, a charming kitchen with stainless steel appliances, 2 spacious bedrooms and 2 bathrooms, including an oversized primary bedroom with a walk-in closet and private ensuite bath. A full finished basement provides additional flexible living space. The separate, tastefully updated 1 bedroom, 1 bath apartment offers excellent income potential or extended living, filled with natural light and complete with hardwood floors, stainless steel appliances, a renovated bathroom, new HVAC system (2023), and private deck overlooking beautifully maintained common greens. Enjoy low-maintenance living with HOA covering exterior maintenance, snow removal, garbage and overnight security patrol. Resort-like amenities include heated pools, tennis and pickleball courts, a clubhouse,...

Contact an agent

contact an agent

Yes, I would like more information. Please use and/or share my information with an ERA®  affiliated agent to contact me about my real estate needs. By clicking Send message, I request to be contacted by phone or text message and consent to being contacted by automated means. I understand that my consent to receive calls or texts is not a condition of purchasing any property, goods, or services. Alternatively, I understand that I can access real estate services by email or I can contact the agent myself.

If an ERA®  affiliated agent is not available in the area where I need assistance, I agree to be contacted by a real estate agent affiliated with another brand owned or licensed by Anywhere Real Estate (BHGRE® , CENTURY 21® , Coldwell Banker® , Corcoran® , Sotheby's International Realty® ).
 I acknowledge that I have read and agree to theTerms of useandPrivacy notice

Home facts

  • Year built:1991
  • Listing ID #:978997
  • Added:1 day(s) ago
  • Updated:April 02, 2026 at 11:40 AM

Rooms and interior

  • Bedrooms:3
  • Total bathrooms:3
  • Full bathrooms:3
  • Rooms Total:9
  • Flooring:Hardwood
  • Dining Description:Eat-In Kitchen
  • Kitchen Description:Dishwasher, Eat-in Kitchen
  • Basement:Yes
  • Basement Description:Finished
  • Living area:2,311 sq. ft.

Heating and cooling

  • Cooling:Central Air
  • Heating:Natural Gas
  • Central air:Yes

Structure and exterior

  • Year built:1991
  • Building area:2,311 sq. ft.
  • Lot area:0.03 Acres
  • Construction Materials:Brick, Vinyl Siding

Schools

  • High school:Central Islip Senior High School
  • Middle school:Ralph Reed School
  • Elementary school:Francis J O'Neill School

Utilities

  • Water:Public
  • Sewer:Public Sewer

Finances and disclosures

  • Price:$599,999
  • Price per sq. ft.:$259.63
  • Tax amount:$12,347 (2026)

Features and amenities

  • Appliances:Dishwasher
  • Amenities:Cathedral Ceiling(s), High Ceilings, Pool, Walk-In Closet(s)

Parking

  • Parking description:Attached, Driveway, Garage, Parking Lot
  • Garage:Yes
  • Garage spaces:1
Copyright 2026 OneKey MLS. All rights reserved. Listings courtesy of OneKey MLS as distributed by MLS GRID <lastMLSCheckTimestamp>. OneKey MLS provides content displayed here (“provided content”) on an “as is” basis and makes no representations or warranties regarding the provided content, including, but not limited to those of non-infringement, timeliness, accuracy, or completeness. Individuals and companies using information presented are responsible for verification and validation of information they utilize and present to their customers and clients. OneKey MLS will not be liable for any damage or loss resulting from use of the provided content or the products available through Portals, IDX, VOW, and/or Syndication. Recipients of this information shall not resell, redistribute, reproduce, modify, or otherwise copy any portion thereof without the expressed written consent of OneKey MLS.