2489 Ny-42, Forestburgh, NY 12777
Local realty services provided by:Bon Anno Realty ERA Powered
2489 Ny-42,Forestburgh, NY 12777
$999,999
- 4 Beds
- 2 Baths
- 2,450 sq. ft.
- Single family
- Active
Listed by: vincent j. nastro
Office: howard hanna rand realty
MLS#:934964
Source:OneKey MLS
Price summary
- Price:$999,999
- Price per sq. ft.:$400
About this home
Fully Restored 19th century Catskill Mountains Post & Beam private retreat - An heirloom of American Craftsmanship
In the rolling woodlands of Forestburgh, New York, just two hours from NYC, stands a one of a kind property with an extraordinary transformation. Over two centuries ago, artisan builders raised a Post & Beam carriage house whose hand-hewn timbers still endure today. Now, after a meticulous ground-up restoration, this historic structure has been reimagined as a masterpiece of modern luxury—an irreplaceable testament to enduring craftsmanship.
Passing through the grand eight-foot French entryway, one enters not merely a residence but a work of livable art. Architecturally designed around the original massive beams—fully exposed and preserved—they stretch across soaring 20-foot cathedral ceilings, their weathered patina a striking contrast to the sleek, contemporary finishes that now define the home. Every wall, ceiling, foundation and crevice has been reinforced and revitalized, ensuring the highest standards of comfort and efficiency without disturbing the historic integrity of the structure.
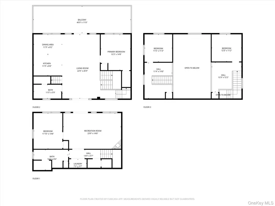
The main floor unfolds as a completely open-concept living space where history and modern craftsmanship meet without compromise. It offers a private suite with a floor-to-ceiling tiled bathroom, a custom-designed kitchen featuring hand-crafted cabinetry, granite countertops with full matching backsplash, top-of-the-line appliances, and an adjoining living and dining area. An elegant chandelier serves as the room’s centerpiece, casting warm light across gleaming wide plank hardwood floors. Artisan fixtures and independent climate control in every room elevate both style and comfort. From here, sliding doors open onto a 40’ x 12’ covered balcony, west-facing and perfectly positioned for outdoor dining, lounging, or simply enjoying the sunset.
Ascending to the second story, two versatile loft spaces offer elevated views of the grand living area below along with mirroring privates suites. These spaces provide flexible options for guest accommodations, home offices, reading lounges, or whatever purpose your imagination brings to life—all framed by the enduring beauty of original post-and-beam construction.
The lower level continues the home’s story of refined restoration with authentic slate floors, exposed ceiling joists, another private suite, laundry quarters, and a fully tiled bathroom with radiant heated floors and a spacious walk-in shower featuring a rain showerhead. A custom-built natural stone fireplace with propane insert delivers instant warmth and ambiance, while glass doors lead to a hand-laid bluestone patio that seamlessly connects indoor comfort with outdoor serenity.
With no expense spared and a meticulous eye for detail, this residence has been fully reimagined while preserving its authentic rustic charm. Every element has been renewed—plumbing, electrical, foundation, roof, windows, spray foam insulation, HVAC, framing, siding, and drilled well, septic system and more. Crafted to the highest standard, built to endure, and designed to inspire, this masterpiece is ready to be cherished for generations to come. This is more than a home—it’s a legacy. A rare chance to own a piece of early American history, reborn with modern craftsmanship to last another two centuries. Estates of this caliber are seldom offered and never duplicated. The next chapter of this heirloom is waiting—will it bear your name?
Great central location, 20 minute radius to following: Forestburgh Playhouse, Kartrite indoor waterpark, Resorts world Casino & Hotel, Monster Golf Club, Monticello Motor club, Swinging bridge lake marina, Bethel woods Center for the Arts, Holiday mountain ski resort and many local restaurants, breweries, hiking trails and more!...
Contact an agent
Home facts
- Year built:1850
- Listing ID #:934964
- Added:140 day(s) ago
- Updated:April 03, 2026 at 10:47 AM
Rooms and interior
- Bedrooms:4
- Total bathrooms:2
- Full bathrooms:2
- Rooms Total:11
- Flooring:Hardwood
- Dining Description:Eat-In Kitchen
- Kitchen Description:Dishwasher, Eat-in Kitchen, Kitchen Island, Oven, Refrigerator, Stainless Steel Appliance(s)
- Bedroom Description:First Floor Bedroom
- Basement:Yes
- Basement Description:Finished, Full, Walk-Out Access
- Living area:2,450 sq. ft.
Heating and cooling
- Cooling:Ductless
- Heating:Baseboard, Electric
Structure and exterior
- Year built:1850
- Building area:2,450 sq. ft.
- Lot area:4.31 Acres
- Architectural Style:Carriage House
- Construction Materials:Foam Insulation, Frame, Stone, Wood Siding
Schools
- High school:Monticello High School
- Middle school:Robert J Kaiser Middle School
- Elementary school:George L Cooke School
Utilities
- Water:Well
- Sewer:Septic Tank
Finances and disclosures
- Price:$999,999
- Price per sq. ft.:$400
- Tax amount:$2,227 (2025)
Features and amenities
- Appliances:Dishwasher, Dryer, Oven, Refrigerator, Stainless Steel Appliance(s), Washer
- Laundry features:Dryer, Washer, Washer/Dryer Hookup
- Amenities:Cathedral Ceiling(s), Granite Counters, Open Floorplan
Parking
- Parking description:Driveway
New listings near 2489 Ny-42
- Coming Soon
$499,900Coming Soon3 beds 1 baths10 Stag Forest Road, Forestburgh, NY 12777
MLS# 979575Listed by: KELLER WILLIAMS HUDSON VALLEY
$415,000Active3 beds 2 baths1,566 sq. ft.187 North Road, Forestburgh, NY 12777
MLS# 967534Listed by: KELLER WILLIAMS REALTY
$439,000Active2 beds 2 baths1,918 sq. ft.26 Valley Road, Forestburgh, NY 12777
MLS# 961344Listed by: CENTURY 21 COUNTRY REALTY
$1,297,500Active5 beds 5 baths3,885 sq. ft.123 Wildwood Way, Forestburgh, NY 12777
MLS# 946432Listed by: MALEK PROPERTIES
$369,000Pending3 beds 3 baths1,404 sq. ft.51 Forestburgh Road, Forestburgh, NY 12777
MLS# 947347Listed by: JOY ROMANO REALTY
$600,000Active751.7 Acres1315 Sackett Lake Rd, Forestburgh, NY 12777
MLS# 943101Listed by: CENTURY 21 GEBA REALTY
$159,900Pending20.08 AcresLot 23 Plank Road, Forestburgh, NY 12777
MLS# 945432Listed by: GREENE REALTY GROUP
$497,500Active2 beds 3 baths1,600 sq. ft.2757 State Route 42, Forestburgh, NY 12777
MLS# 934954Listed by: CABINS & CANOES REAL ESTATE
$649,000Active3 beds 3 baths2,520 sq. ft.14 Lena Road, Monticello, NY 12777
MLS# 932743Listed by: CENTURY 21 COUNTRY REALTY