6912 Cloverdale Boulevard, Oakland Gardens, NY 11364

Local realty services provided by:Bon Anno Realty ERA Powered
6912 Cloverdale Boulevard,Oakland Gardens, NY 11364
$1,799,888
  • - Beds
  • - Baths
  • - sq. ft.
  • Multi-family
  • Coming Soon
Listed by: hakbin ahn cbr gri
Office: douglas elliman real estate
MLS#:967855
Source:OneKey MLS

Price summary

  • Price:$1,799,888

About this home

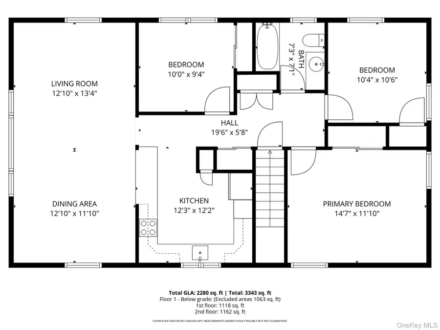
This legal two-family residence at 69-12 Cloverdale Blvd offers a rare opportunity to own a investment property or a multi-generational home in the heart of Oakland Gardens, Queens. Built in 1950, this solid 26' x 45' structure provides a substantial 2,340 square feet of interior living space on a generous 40' x 100' lot. Layout: Legal 2-family configuration featuring 6 spacious bedrooms and 2.5 bathrooms The home remains in its original condition, serving as a blank canvas for those looking to add value through personalized renovations and modern upgrades A Detached 4,000-square-foot lot offers ample room for a backyard oasis, gardening, or outdoor entertaining. School District 26, zoned for PS 213, JHS 74, and Benjamin N. Cardozo High School. Close to the scenic Alley Pond Park and the Vanderbilt Motor Parkway bike path, offering some of the best green spaces in the city. Convenient access to major highways including the LIE and Grand Central Parkway, plus express bus service

Contact an agent

contact an agent

Yes, I would like more information. Please use and/or share my information with an ERA®  affiliated agent to contact me about my real estate needs. By clicking Send message, I request to be contacted by phone or text message and consent to being contacted by automated means. I understand that my consent to receive calls or texts is not a condition of purchasing any property, goods, or services. Alternatively, I understand that I can access real estate services by email or I can contact the agent myself.

If an ERA®  affiliated agent is not available in the area where I need assistance, I agree to be contacted by a real estate agent affiliated with another brand owned or licensed by Anywhere Real Estate (BHGRE® , CENTURY 21® , Coldwell Banker® , Corcoran® , Sotheby's International Realty® ).
 I acknowledge that I have read and agree to theTerms of useandPrivacy notice

Home facts

  • Year built:1950
  • Listing ID #:967855
  • Added:1 day(s) ago
  • Updated:March 06, 2026 at 05:44 PM

Rooms and interior

  • Flooring:Hardwood
  • Dining Description:Eat-In Kitchen, Formal Dining
  • Kitchen Description:Eat-in Kitchen
  • Bedroom Description:First Floor Bedroom
  • Basement:Yes
  • Basement Description:Partially Finished

Heating and cooling

  • Heating:Hot Water

Structure and exterior

  • Year built:1950
  • Architectural Style:Colonial
  • Construction Materials:Brick, Frame

Schools

  • High school:Benjamin N Cardozo High School
  • Middle school:Jhs 74 Nathaniel Hawthorne
  • Elementary school:Ps 213 Carl Ullman School

Utilities

  • Water:Public
  • Sewer:Public Sewer

Finances and disclosures

  • Price:$1,799,888
  • Tax amount:$11,617 (2025)

Features and amenities

  • Laundry features:Washer/Dryer Hookup
Copyright 2026 OneKey MLS. All rights reserved. Listings courtesy of OneKey MLS as distributed by MLS GRID <lastMLSCheckTimestamp>. OneKey MLS provides content displayed here (“provided content”) on an “as is” basis and makes no representations or warranties regarding the provided content, including, but not limited to those of non-infringement, timeliness, accuracy, or completeness. Individuals and companies using information presented are responsible for verification and validation of information they utilize and present to their customers and clients. OneKey MLS will not be liable for any damage or loss resulting from use of the provided content or the products available through Portals, IDX, VOW, and/or Syndication. Recipients of this information shall not resell, redistribute, reproduce, modify, or otherwise copy any portion thereof without the expressed written consent of OneKey MLS.