2285 Saw Mill River Road, Yorktown Heights, NY 10598
Local realty services provided by:ERA Top Service Realty
2285 Saw Mill River Road,Yorktown Heights, NY 10598
$495,000
- 1 Acres
- Lots / Land
- Active
Listed by:kayla pawell
Office:madison allied llc.
MLS#:923560
Source:OneKey MLS
Price summary
- Price:$495,000
About this home
Opportunity awaits at 2285 Saw Mill River Road in highly sought-after Yorktown Heights. Tucked away in a unique and very private flag-lot setting, this property offers both exceptional seclusion and unmatched convenience.
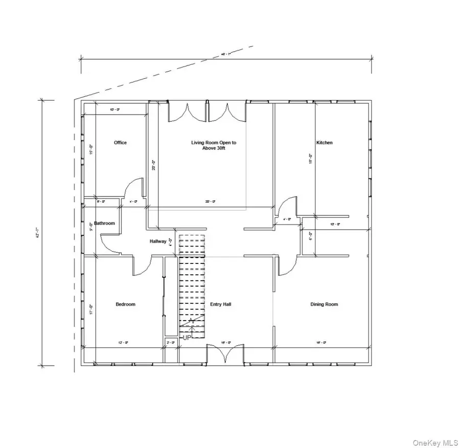
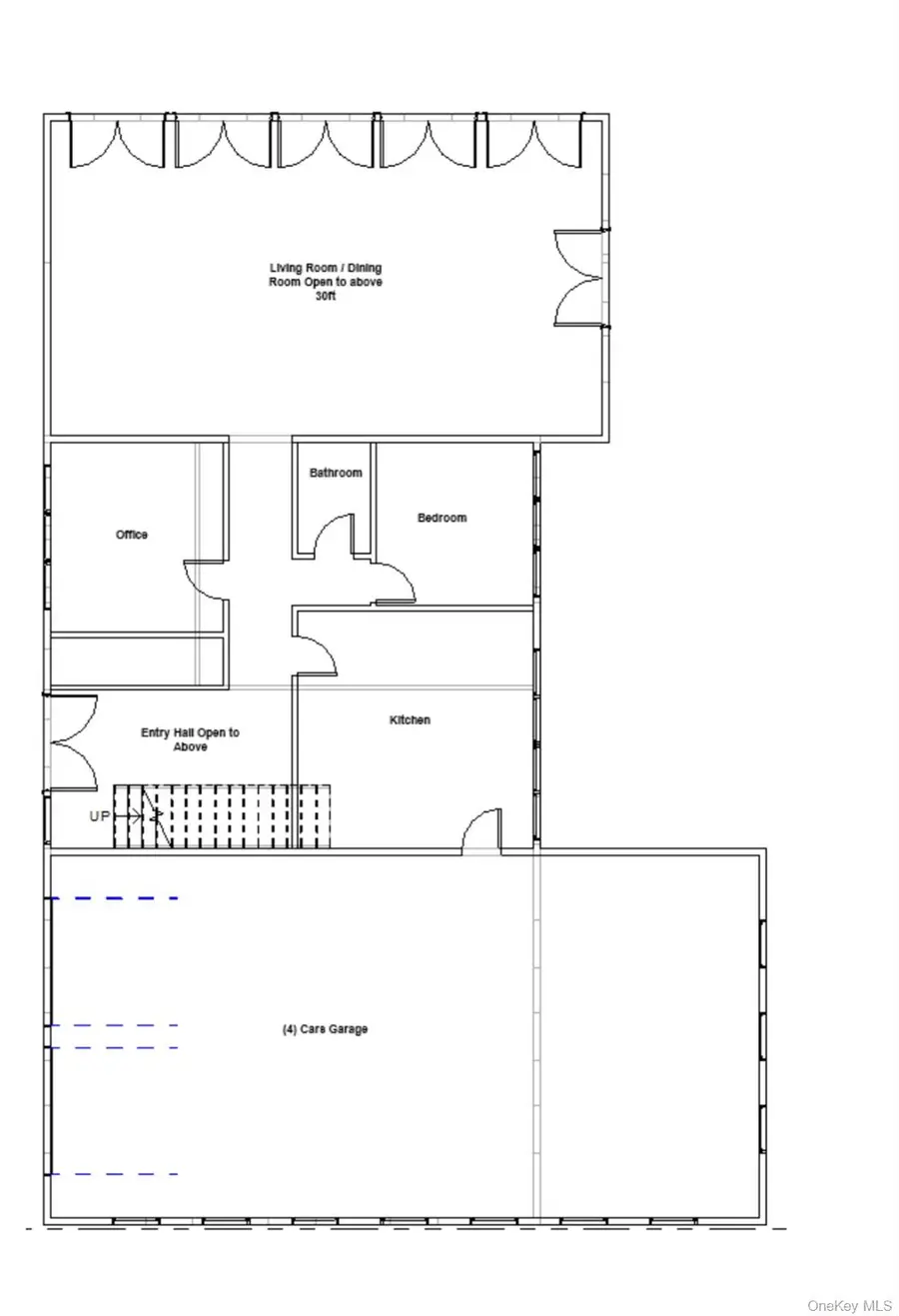
The lot is already approved by the Town Board, Storm Water Management, and the Department of Health for a sewer connection. The owner is actively securing DOT and DOB permits for a planned over-3,000 sq ft French Country–style home with a mother/daughter layout, plus a separate 800 sq ft accessory dwelling unit (ADU). Design flexibility allows the main home to be expanded into a grand estate exceeding 8,000 sq ft, with potential space for a four-car garage.
This location truly blends privacy with accessibility—just one minute to Yorktown Town Center’s shops and dining, four minutes to the Taconic State Parkway, and only 11 minutes to the Katonah Train Station on the Metro-North Harlem Line for direct access to Manhattan.
Whether you envision your forever home or a high-value investment property, this lot offers the approvals, location, and adaptability to bring your vision to life.
Contact an agent
Home facts
- Listing ID #:923560
- Added:2 day(s) ago
- Updated:October 15, 2025 at 04:28 PM
Structure and exterior
- Lot area:1 Acres
Schools
- High school:Yorktown High School
- Middle school:Mildred E Strang Middle School
- Elementary school:Brookside Elementary School Campus
Finances and disclosures
- Price:$495,000
- Tax amount:$1,449 (2025)
New listings near 2285 Saw Mill River Road
- Coming Soon$449,000Coming Soon1 beds 2 baths
1 Woods View Court #1, Yorktown Heights, NY 10598
MLS# H6274075Listed by: HOULIHAN LAWRENCE INC. - Open Thu, 11am to 12pmNew$649,000Active3 beds 2 baths1,530 sq. ft.
520 Elizabeth Road, Yorktown Heights, NY 10598
MLS# 923874Listed by: BHHS RIVER TOWNS REAL ESTATE - Coming SoonOpen Thu, 4 to 6:30pm$925,000Coming Soon4 beds 4 baths
3154 Stoneleigh Court, Yorktown Heights, NY 10598
MLS# 923227Listed by: KELLER WILLIAMS REALTY PARTNER - New$599,000Active4 beds 3 baths2,762 sq. ft.
2887 Old Yorktown Road, Yorktown Heights, NY 10598
MLS# 922030Listed by: HOULIHAN LAWRENCE INC. - New$939,900Active5 beds 4 baths3,382 sq. ft.
2747 Larkspur Street, Yorktown Heights, NY 10598
MLS# 921922Listed by: COMPASS GREATER NY, LLC - Coming Soon$729,000Coming Soon3 beds 2 baths
2607 Broadview Drive, Yorktown Heights, NY 10598
MLS# 907695Listed by: HOULIHAN LAWRENCE INC. - New$769,000Active3 beds 3 baths1,621 sq. ft.
134 Hitching Post Lane, Yorktown Heights, NY 10598
MLS# 920860Listed by: HOULIHAN LAWRENCE INC. - $419,000Active2 beds 2 baths1,051 sq. ft.
43 Jefferson Oval #B, Yorktown Heights, NY 10598
MLS# 919424Listed by: COLDWELL BANKER REALTY - $375,000Active1 beds 1 baths725 sq. ft.
36 Sussex Drive #B, Yorktown Heights, NY 10598
MLS# 919539Listed by: COLDWELL BANKER REALTY