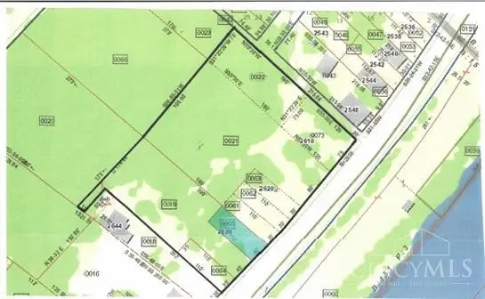
2624 River Road, Cincinnati, OH 45204

Local realty services provided by:ERA Martin & Associates
2624 River Road,Cincinnati, OH 45204
$950,000
  • 2.58 Acres
  • Lots / Land
  • Active
Listed by: joan elflein
Office: ohio broker direct614-989-7215
MLS#:1863238
Source:OH_CINCY

Price summary

  • Price:$950,000

About this home

Located just around the Ohio River bend, minutes from Downtown Cincinnati, right on the riverfront at the base of the Mt. Echo Open Space, this 2.58 acre tract currently made up of 9 adjacent parcels poised to become the newest single family riverfront development and the newest place to be in Cincinnati. Our town is poised to take advantage of this riverfront development featuring 18-22 brand new single-family homes with spectacular views of the river and the beautiful Kentucky riverside landscape. But quite possibly the best news is that at this point this site is still a blank canvas that awaits your great ideas and designs. Now is the time to jump in on this property on the ground floor and make it your own.

Contact an agent

contact an agent

Yes, I would like more information. Please use and/or share my information with an ERA®  affiliated agent to contact me about my real estate needs. By clicking Send message, I request to be contacted by phone or text message and consent to being contacted by automated means. I understand that my consent to receive calls or texts is not a condition of purchasing any property, goods, or services. Alternatively, I understand that I can access real estate services by email or I can contact the agent myself.

If an ERA®  affiliated agent is not available in the area where I need assistance, I agree to be contacted by a real estate agent affiliated with another brand owned or licensed by Anywhere Real Estate (BHGRE® , CENTURY 21® , Coldwell Banker® , Corcoran® , Sotheby's International Realty® ).
 I acknowledge that I have read and agree to theTerms of useandPrivacy notice

Home facts

  • Listing ID #:1863238
  • Added:162 day(s) ago
  • Updated:May 13, 2026 at 02:17 PM

Structure and exterior

  • Lot area:2.58 Acres

Utilities

  • Water:At Street, Water Available
  • Sewer:At Street, Sewer Available

Finances and disclosures

  • Price:$950,000
MLS LogoInformation deemed reliable but not guaranteed. The data relating to real estate for sale on this web site comes in part from the Broker Reciprocity program of the Multiple Listing Service of Greater Cincinnati. Real estate listings held by brokerage firms other than ERA Martin & Associates are marked with the Broker Reciprocity&#8482 logo (the small house as shown to the left) and detailed information about them includes the name of the listing brokers. 2026, MLS of Greater Cincinnati, Inc. All rights reserved.