6956 Wharton Road, Holland, OH 43528
Local realty services provided by:ERA Geyer Noakes Realty Group
Listed by: gerald poindexter
Office: key realty ltd
MLS#:10005904
Source:OH_TBR
Price summary
- Price:$379,900
- Price per sq. ft.:$227.49
About this home
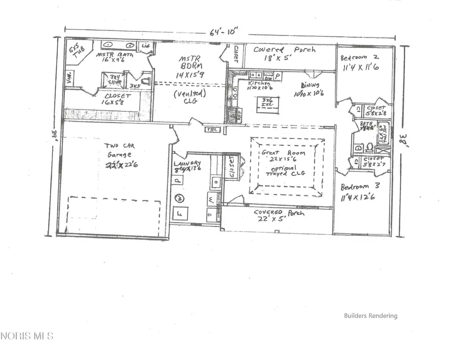
Incredible opportunity to build your brand new 3-bedroom ranch home on a wooded 2.38-acre lot in Holland. With a builder's contract secured, the builder can then start building this wonderful ranch with an open layout and a split bedroom concept. Open Great Room, wonderful kitchen with granite counter tops. Spacious Primary Suite with Ensuite and walk-in closet. Covered Porch that overlooks the woods. This way, you can make your own selections and help design your new home the way you would like it. All images are renderings offering what could be built. This offering is for a contract build with the landowner only. Landscape allowances. All rooms sizes and square footage are approximate.
Contact an agent
Home facts
- Listing ID #:10005904
- Added:34 day(s) ago
- Updated:April 14, 2026 at 01:25 PM
Rooms and interior
- Bedrooms:3
- Total bathrooms:2
- Full bathrooms:2
- Rooms Total:7
- Flooring:Carpet, Laminate
- Bathrooms Description:Primary Bathroom
- Kitchen Description:Dishwasher, Disposal
- Basement Description:Crawl Space
- Living area:1,670 sq. ft.
Heating and cooling
- Cooling:Central Air
- Heating:Forced Air, Natural Gas
Structure and exterior
- Roof:Asphalt
- Building area:1,670 sq. ft.
- Lot area:2.39 Acres
- Lot Features:Wooded
- Architectural Style:Ranch, Traditional
- Construction Materials:Vinyl Siding
- Exterior Features:Covered Porch
- Foundation Description:Crawl Space
- Levels:One
Schools
- High school:Springfield
- Middle school:Springfield
- Elementary school:Crissey
Utilities
- Water:Public
- Sewer:Public Sewer, Sanitary Sewer
Finances and disclosures
- Price:$379,900
- Price per sq. ft.:$227.49
Features and amenities
- Appliances:Dishwasher, Disposal
- Laundry features:Electric Dryer Hookup, Gas Dryer Hookup, Main Level
- Amenities:Double Pane Windows, Open Floorplan, Walk-In Closet(s)
Parking
- Total parking spaces:6
- Parking description:Additional Parking, Asphalt, Attached Garage, Driveway, Garage Door Opener
- Garage:Yes
- Garage spaces:2
New listings near 6956 Wharton Road
- Coming SoonOpen Sat, 12 to 2pm
$269,900Coming Soon4 beds 2 baths1441 Maumee Street, Holland, OH 43528
MLS# 10007145Listed by: KEY REALTY - New
$489,200Active3 beds 2 baths1,995 sq. ft.7849 Gala Drive, Holland, OH 43528
MLS# 10007006Listed by: KEY REALTY LTD
$469,900Pending3 beds 3 baths2,106 sq. ft.8320 Sycamore Woods Lane, Holland, OH 43528
MLS# 10006963Listed by: SERENITY REALTY LLC- Coming SoonOpen Sat, 4 to 5pm
$320,000Coming Soon3 beds 3 baths118 Manakiki Drive, Holland, OH 43528
MLS# 10006938Listed by: THE DANBERRY CO.
$324,900Pending3 beds 3 baths1,508 sq. ft.242 Mead Lane, Holland, OH 43528
MLS# 10006912Listed by: KEY REALTY LTD- Coming Soon
$274,900Coming Soon3 beds 3 baths624 Niagara Avenue, Holland, OH 43528
MLS# 10006847Listed by: LPG REALTY
$84,900Active1 beds 1 baths732 sq. ft.2045 Perrysburg Holland Road #118, Holland, OH 43528
MLS# 10001893Listed by: LPG REALTY
$479,900Pending4 beds 4 baths2,906 sq. ft.8819 Royal Oak Drive, Holland, OH 43528
MLS# 10006676Listed by: RE/MAX PREFERRED ASSOCIATES
$304,888Active3 beds 3 baths1,628 sq. ft.6867 Wild River Run, Holland, OH 43528
MLS# 10006545Listed by: WHITTINGTON GROUP REALTY
$180,000Active2 beds 1 baths1,106 sq. ft.9113 Geiser Road, Holland, OH 43528
MLS# 10006495Listed by: HOWARD HANNA