8040 Thayer Road, Mount Vernon, OH 43050
Local realty services provided by:ERA Real Solutions Realty
8040 Thayer Road,Mount Vernon, OH 43050
$1,300,000
- 4 Beds
- 1 Baths
- 2,348 sq. ft.
- Single family
- Active
Listed by: john p ruckman
Office: wigton real estate & auction740-362-0007
MLS#:225036308
Source:OH_CBR
Price summary
- Price:$1,300,000
- Price per sq. ft.:$553.66
About this home
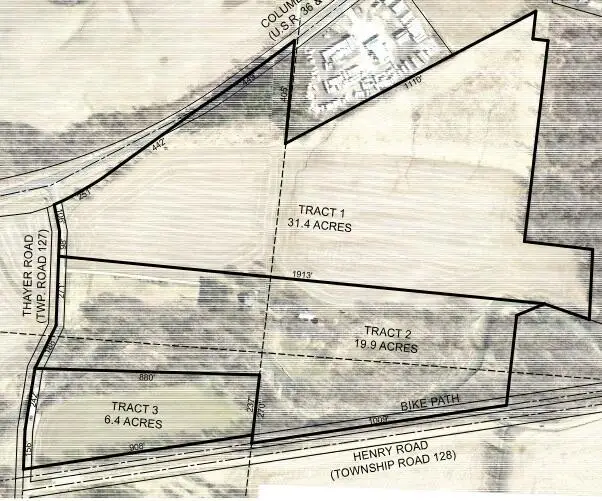
One of the most picturesque and admired farms in Knox County, The Black Family Farm offers an exceptional opportunity for those seeking a productive and scenic country property. Spanning approximately 57 acres, this farm combines rich tillable ground, hay fields, pastureland, wooded areas, and a meandering creek—creating a landscape that is both versatile and beautiful.
A long, private lane leads to the original 4-bedroom, 1-bath, 1.5-story farmhouse totaling approximately 1,625 sq. ft. The home offers propane heat and central air, blending traditional farmhouse character with everyday comfort. Surrounding the residence are a variety of historic and functional outbuildings, including a 50-foot Poultry House, Two-Story Shop, Large Red Dairy Barn, and multiple smaller barns and sheds—providing excellent space for equipment, livestock, or hobbies.
Adding to the charm, the property includes the original log cabin, a rare historic feature awaiting restoration or creative reuse. A peaceful camping area tucked among the trees offers a quiet place to relax and enjoy the property's natural beauty. The Heart of Ohio Bike Trail runs parallel to the farm, providing easy access for walking, biking, or riding while connecting to scenic routes across the region.
Ideally situated with frontage on both US-36 and Thayer Road, the farm is also within walking distance of the Knox County Horse Park and just down the road from Thayer Ridge Park—a 70-acre county wildlife area featuring wet woodlands, native habitat, and abundant wildlife. This location offers the perfect balance of privacy, recreation, and convenience. Whether you're seeking a working farm, equestrian property, or private country retreat, The Black Family Farm captures the timeless beauty and rural heritage of Knox County living....
Contact an agent
Home facts
- Year built:1900
- Listing ID #:225036308
- Added:225 day(s) ago
- Updated:December 31, 2025 at 11:38 PM
Rooms and interior
- Bedrooms:4
- Total bathrooms:1
- Full bathrooms:1
- Basement:Yes
- Living area:2,348 sq. ft.
Heating and cooling
- Heating:Heating, Propane
- Central air:Yes
Structure and exterior
- Year built:1900
- Building area:2,348 sq. ft.
- Lot area:57.76 Acres
- Lot Features:Fenced Pasture, Stream On Lot, Wooded
Finances and disclosures
- Price:$1,300,000
- Price per sq. ft.:$553.66
- Tax amount:$3,944
Parking
- Parking description:Farm Bldg
- Garage:Yes
New listings near 8040 Thayer Road
- New
$444,900Active4 beds 3 baths2,320 sq. ft.1420 Gambier Road, Mount Vernon, OH 43050
MLS# 226015755Listed by: KEY REALTY - New
$198,700Active3 beds 2 baths1,229 sq. ft.603 W Sugar Street, Mount Vernon, OH 43050
MLS# 226015737Listed by: RED 1 REALTY - Coming Soon
$420,000Coming Soon3 beds 3 baths15463 Glen Road, Mount Vernon, OH 43050
MLS# 226015331Listed by: RED 1 REALTY - New
$169,900Active2 beds 1 baths768 sq. ft.13 Parrott Street, Mount Vernon, OH 43050
MLS# 226015271Listed by: I HEART REAL ESTATE - New
$155,000Active2 beds 1 baths1,012 sq. ft.909 W Sugar Street, Mount Vernon, OH 43050
MLS# 226014935Listed by: KELLER WILLIAMS CAPITAL PTNRS
$175,000Pending3 beds 2 baths2,554 sq. ft.607 N Mulberry Street, Mount Vernon, OH 43050
MLS# 5205460Listed by: EXP REALTY, LLC- New
$675,000Active3 beds 1 baths1,377 sq. ft.14179 Vance Road, Mount Vernon, OH 43050
MLS# 226014801Listed by: RE/MAX CAPITAL CENTRE - New
$257,000Active3 beds 2 baths1,784 sq. ft.28 Martinsburg Road, Mount Vernon, OH 43050
MLS# 226014542Listed by: TEAM RESULTS REALTY - New
$368,999Active3 beds 2 baths1,572 sq. ft.10819 Tucker Road, Mount Vernon, OH 43050
MLS# 226014531Listed by: NEXTHOME EXPERIENCE - New
$570,000Active5 beds 4 baths3,870 sq. ft.6971 Possum Street, Mount Vernon, OH 43050
MLS# 226014341Listed by: THE RAINES GROUP, INC.