1216 E Stallion Lane, Mustang, OK 73064
Local realty services provided by:ERA Courtyard Real Estate
Listed by: john burris
Office: central oklahoma real estate
MLS#:1216047
Source:OK_OKC
1216 E Stallion Lane,Mustang, OK 73064
$236,990
- 3 Beds
- 2 Baths
- 1,301 sq. ft.
- Single family
- Active
Price summary
- Price:$236,990
- Price per sq. ft.:$182.16
About this home
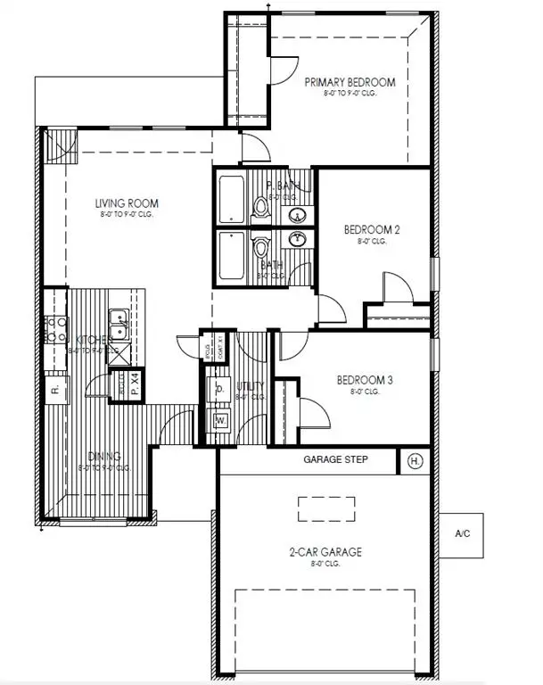
Welcome to the Ashton floor plan in Mustang, OK—a thoughtfully designed new construction home that offers the perfect balance of comfort, style, and functionality. This open-concept layout features a spacious living area that flows seamlessly into the kitchen and dining space, creating an ideal setting for both everyday living and entertaining.
The kitchen is the heart of the home, showcasing modern finishes, ample cabinet storage, quality appliances, and a large center island perfect for meal prep and gathering with family and friends. The private primary suite provides a relaxing retreat with a generous bedroom, walk-in closet, and a well-appointed en-suite bath.
Secondary bedrooms are comfortably sized and offer flexibility for guests, a home office, or growing household needs. Built with quality craftsmanship and energy-efficient features, this home is designed for lasting comfort and value.
Located in the desirable Mustang area, residents enjoy convenient access to schools, shopping, dining, and major highways while being part of a welcoming and growing community.
Don’t miss your opportunity to own a brand-new home in Mustang—schedule your private tour today!...
Contact an agent
Home facts
- Year built:2026
- Listing ID #:1216047
- Added:61 day(s) ago
- Updated:April 28, 2026 at 07:10 PM
Rooms and interior
- Bedrooms:3
- Total bathrooms:2
- Full bathrooms:2
- Flooring:Combo
- Kitchen Description:Dishwasher, Disposal
- Living area:1,301 sq. ft.
Heating and cooling
- Cooling:Central Electric
Structure and exterior
- Year built:2026
- Building area:1,301 sq. ft.
- Lot area:0.17 Acres
- Lot Features:Interior Lot
- Architectural Style:Traditional
- Construction Materials:Brick & Frame
- Exterior Features:Patio - Open
- Foundation Description:Slab
Schools
- High school:Mustang HS
- Middle school:Mustang MS
- Elementary school:Mustang ES
Utilities
- Water:Public
Finances and disclosures
- Price:$236,990
- Price per sq. ft.:$182.16
Features and amenities
- Appliances:Dishwasher, Disposal
- Laundry features:Laundry Room
Parking
- Parking description:Concrete
- Garage:Yes
- Garage spaces:2
New listings near 1216 E Stallion Lane
- New
$285,000Active3 beds 2 baths1,701 sq. ft.1814 E Sherwood Terrace, Mustang, OK 73064
MLS# 1226259Listed by: HAVENLY REAL ESTATE GROUP - New
$649,500Active1.37 Acres1724 W West Highway 152 Highway, Mustang, OK 73064
MLS# 1226234Listed by: WISE OAK REALTY LLC - New
$995,000Active4 beds 4 baths4,271 sq. ft.10901 Secretariat Drive, Mustang, OK 73064
MLS# 1226038Listed by: PRESTIGE REAL ESTATE SERVICES - New
$234,900Active3 beds 2 baths1,472 sq. ft.4004 Dutch Lane, Mustang, OK 73064
MLS# 1226065Listed by: COPPER CREEK REAL ESTATE
$227,900Pending3 beds 2 baths1,301 sq. ft.4009 Dutch Lane, Mustang, OK 73064
MLS# 1226067Listed by: COPPER CREEK REAL ESTATE
$221,860Pending3 beds 2 baths1,373 sq. ft.3625 Maggie Road, Mustang, OK 73064
MLS# 1226056Listed by: COPPER CREEK REAL ESTATE- New
$234,900Active4 beds 2 baths1,459 sq. ft.3605 Maggie Road, Mustang, OK 73064
MLS# 1226059Listed by: COPPER CREEK REAL ESTATE - New
$300,204Active3 beds 2 baths1,614 sq. ft.208 E Abbot Lane, Mustang, OK 73064
MLS# 1225784Listed by: KEN CARPENTER REALTY - New
$299,000Active0.73 AcresN Financial Terrace, Mustang, OK 73064
MLS# 1225962Listed by: WISE OAK REALTY LLC - New
$300,204Active3 beds 2 baths1,614 sq. ft.204 E Abbot Lane, Mustang, OK 73064
MLS# 1225735Listed by: KEN CARPENTER REALTY