4109 Lynford Lane, Norman, OK 73026
Local realty services provided by:ERA Courtyard Real Estate
Listed by: john burris
Office: central oklahoma real estate
MLS#:1196931
Source:OK_OKC
4109 Lynford Lane,Norman, OK 73026
$345,670
- 3 Beds
- 3 Baths
- 2,010 sq. ft.
- Single family
- Active
Upcoming open houses
- Sun, Nov 1601:00 pm - 05:00 pm
Price summary
- Price:$345,670
- Price per sq. ft.:$171.98
About this home
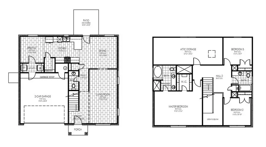
NOW UNDER CONSTRUCTION – Reserve Today! Take advantage of this rare opportunity to reserve the sought-after Olivia floor plan in the desirable Bellatona community before completion! This thoughtfully designed two-story layout offers open-concept living, spacious bedrooms, and an oversized kitchen island, perfect for everyday life and entertaining alike. The kitchen is equipped with stainless steel Samsung appliances, including a 5-burner gas range, expansive counter space, abundant cabinetry, and an oversized walk-in pantry with bright lighting, perfect for those who need both function and style. Additional features include: • Quartz or granite countertops • Wood-look ceramic tile in main living areas • Under-cabinet lighting • Full sod and landscaping for curb appeal and low maintenance • Energy-efficient design including a tankless hot water heater, low-e thermal pane windows, and radiant barrier decking for year-round comfort and lower utility costs Located just minutes from the University of Oklahoma, Lake Thunderbird, Sooner Mall, I-35, and numerous dining and shopping options. Bellatona also features a community playground and a welcoming neighborhood feel. Whether you’re a first-time buyer, or young professional, this home offers the perfect blend of comfort, location, and value. Call today to check construction progress and secure your home before it’s gone!
Contact an agent
Home facts
- Year built:2025
- Listing ID #:1196931
- Added:120 day(s) ago
- Updated:November 16, 2025 at 01:42 PM
Rooms and interior
- Bedrooms:3
- Total bathrooms:3
- Full bathrooms:2
- Half bathrooms:1
- Living area:2,010 sq. ft.
Heating and cooling
- Cooling:Central Electric
- Heating:Central Gas
Structure and exterior
- Roof:Composition
- Year built:2025
- Building area:2,010 sq. ft.
- Lot area:0.14 Acres
Schools
- High school:Norman HS
- Middle school:Irving MS
- Elementary school:Washington ES
Finances and disclosures
- Price:$345,670
- Price per sq. ft.:$171.98
New listings near 4109 Lynford Lane
- New
$260,000Active3 beds 2 baths1,596 sq. ft.101 192nd Se Avenue, Norman, OK 73026
MLS# 1201749Listed by: COPPER CREEK REAL ESTATE - Open Sun, 2 to 4pmNew
$328,000Active3 beds 2 baths1,834 sq. ft.4309 SE 37th Circle, Norman, OK 73071
MLS# 1201747Listed by: KELLER WILLIAMS REALTY ELITE - New
$285,000Active3 beds 2 baths1,694 sq. ft.4217 Caracara Court, Norman, OK 73072
MLS# 1201236Listed by: RE/MAX LIFESTYLE - New
$250,000Active3 beds 2 baths1,536 sq. ft.1524 Wilshire Avenue, Norman, OK 73072
MLS# 1201721Listed by: KELLER WILLIAMS REALTY ELITE - New
$2,150,000Active4 beds 4 baths5,162 sq. ft.2709 Crittenden Drive, Norman, OK 73072
MLS# 1201021Listed by: DILLARD CIES REAL ESTATE - Open Sun, 2 to 4pmNew
$239,000Active3 beds 2 baths1,573 sq. ft.1534 Ashley Circle, Norman, OK 73069
MLS# 1198082Listed by: MK PARTNERS INC - New
$215,000Active3 beds 2 baths1,242 sq. ft.706 Claremont Drive, Norman, OK 73069
MLS# 1201400Listed by: 828 REAL ESTATE LLC - New
$189,900Active3 beds 1 baths936 sq. ft.1712 W Boyd Street, Norman, OK 73069
MLS# 1201566Listed by: ADAMS FAMILY REAL ESTATE LLC - New
$799,000Active4 beds 4 baths3,428 sq. ft.5451 Auburn Drive, Norman, OK 73072
MLS# 1201283Listed by: CB/MIKE JONES COMPANY - New
$375,000Active4 beds 3 baths2,214 sq. ft.4413 SE 37th Street, Norman, OK 73071
MLS# 1201600Listed by: OKLAHOMA REAL ESTATE OPTIONS