8701 NW 75th Street, Oklahoma City, OK 73132
Local realty services provided by:ERA Courtyard Real Estate
Listed by: john burris
Office: central oklahoma real estate
MLS#:1223371
Source:OK_OKC
8701 NW 75th Street,Oklahoma City, OK 73132
$319,747
- 3 Beds
- 2 Baths
- 1,722 sq. ft.
- Single family
- Active
Upcoming open houses
- Sun, Apr 1201:00 pm - 05:00 pm
Price summary
- Price:$319,747
- Price per sq. ft.:$185.68
About this home
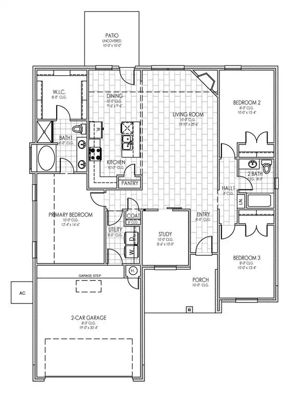
Welcome to this 3-bedroom, 2-bath home with a study in the Pennbrooke community of northwest Oklahoma City. Currently under construction, this home offers modern design in a convenient location with quick access to the Kilpatrick Turnpike and is just minutes from shopping, dining, schools, and entertainment along NW Expressway. Inside, you’ll find quartz countertops, durable wood-look tile flooring, and a bright open living area designed for both everyday living and entertaining. The flexible study provides options for a home office, guest room, or additional living space. Built with quality and efficiency in mind, features include a Navien tankless water heater, Low-E windows, and radiant barrier roof decking for enhanced comfort and energy savings. Thoughtful design and modern finishes throughout.
Contact an agent
Home facts
- Year built:2026
- Listing ID #:1223371
- Added:2 day(s) ago
- Updated:April 12, 2026 at 12:11 AM
Rooms and interior
- Bedrooms:3
- Total bathrooms:2
- Full bathrooms:2
- Flooring:Carpet, Tile
- Kitchen Description:Dishwasher, Microwave
- Living area:1,722 sq. ft.
Heating and cooling
- Cooling:Central Electric
Structure and exterior
- Year built:2026
- Building area:1,722 sq. ft.
- Lot area:0.17 Acres
- Lot Features:Interior Lot
- Architectural Style:Traditional
- Construction Materials:Brick & Frame
- Exterior Features:Patio - Open
- Foundation Description:Slab
Schools
- High school:Putnam City HS
- Middle school:Cooper MS
- Elementary school:Harvest Hills ES
Utilities
- Water:Public
Finances and disclosures
- Price:$319,747
- Price per sq. ft.:$185.68
Features and amenities
- Appliances:Dishwasher, Microwave, Water Heater
Parking
- Garage:Yes
- Garage spaces:2
New listings near 8701 NW 75th Street
- New
$1,695,000Active5 beds 7 baths6,448 sq. ft.801 NW 41st Street, Oklahoma City, OK 73118
MLS# 1223467Listed by: RE/MAX PREFERRED - New
$229,900Active4 beds 2 baths2,040 sq. ft.3407 Woodvale Drive, Oklahoma City, OK 73110
MLS# 1223664Listed by: THE MILLER DREAM TEAM - New
$300,000Active2 beds 2 baths1,233 sq. ft.2220 NW 13th Street, Oklahoma City, OK 73107
MLS# 1223681Listed by: BLACK LABEL REALTY - New
$269,999Active3 beds 2 baths1,981 sq. ft.133 SW 132nd Street, Oklahoma City, OK 73170
MLS# 1223682Listed by: KG REALTY LLC - New
$269,999Active3 beds 2 baths1,835 sq. ft.2107 NW 20th Street, Oklahoma City, OK 73107
MLS# 1223683Listed by: THE STERLING GROUP, LLC - New
$328,000Active3 beds 3 baths1,904 sq. ft.1509 NE 7 Street #A, Oklahoma City, OK 73117
MLS# 1223684Listed by: GLOBE REALTY LLC - New
$263,500Active4 beds 3 baths2,257 sq. ft.6705 N Shawnee Avenue, Oklahoma City, OK 73116-1802
MLS# 1223686Listed by: KIRKANGEL, INC. - New
$105,000Active0.45 Acres1819 NW 42nd Street, Oklahoma City, OK 73118
MLS# 1223695Listed by: COPPER CREEK REAL ESTATE - New
$97,500Active3 beds 2 baths1,100 sq. ft.8300 NW 10th Street #28, Oklahoma City, OK 73127
MLS# 1223699Listed by: METRO FIRST REALTY - New
$589,900Active4 beds 4 baths2,860 sq. ft.3332 NW 188th Street, Edmond, OK 73012
MLS# 1219564Listed by: CHINOWTH & COHEN