235 SE Jensen Ave, Corvallis, OR 97333
Local realty services provided by:Knipe Realty ERA Powered
235 SE Jensen Ave,Corvallis, OR 97333
$489,750
- 3 Beds
- 3 Baths
- 1,465 sq. ft.
- Single family
- Active
Listed by: leslie james, kyle ries
Office: premiere property group, llc.503-670-9000
MLS#:282725775
Source:PORTLAND
Price summary
- Price:$489,750
- Price per sq. ft.:$334.3
About this home
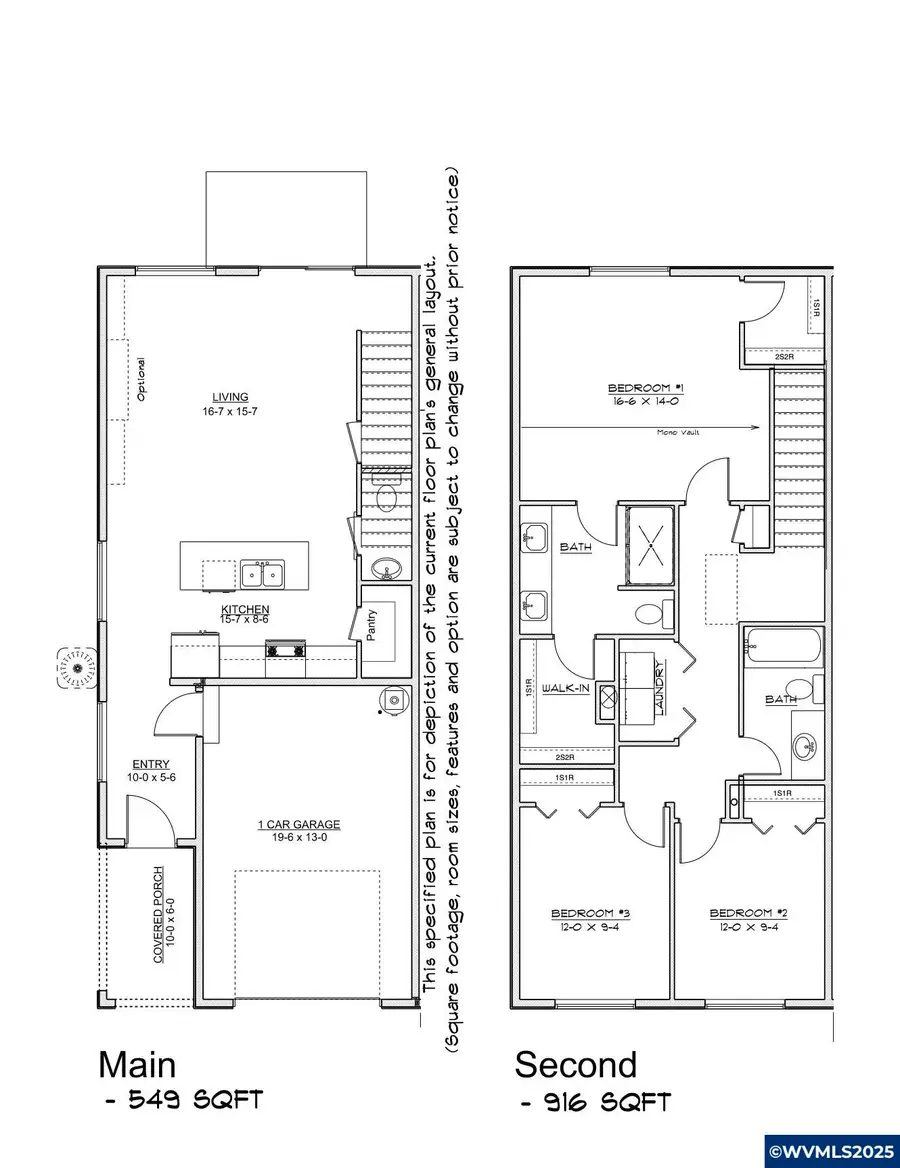
Seller offering $$$ Spring Savings! Inviting 3-bedroom, 2.5-bath townhome in Corvallis features a light & bright great room w/ elec. fireplace and sliding door to private patio. Enjoy a fully fenced, landscaped backyard perfect for relaxing or entertaining. The kitchen flows seamlessly into the living area, and a single-car garage adds convenience. Upstairs, the spacious primary suite offers a walk-in closet w/ ensuite bath, dual sinks and standing shower. With modern finishes and a thoughtful layout, this home blends both style and function. Completed construction.
Contact an agent
Home facts
- Year built:2025
- Listing ID #:282725775
- Added:225 day(s) ago
- Updated:May 15, 2026 at 11:15 AM
Rooms and interior
- Bedrooms:3
- Total bathrooms:3
- Full bathrooms:2
- Half bathrooms:1
- Kitchen Description:Dishwasher, Disposal, ENERGY STAR Qualified Appliances, Free Standing Gas Range, Gas Appliances, Island, Microwave, Pantry, Plumbed For Icemaker, Quartz, Stainless Steel Appliance
- Basement Description:Crawl Space
- Living area:1,465 sq. ft.
Heating and cooling
- Cooling:Central Air
- Heating:Forced Air 90+
Structure and exterior
- Roof:Composition
- Year built:2025
- Building area:1,465 sq. ft.
- Lot area:0.05 Acres
- Lot Features:Level, Public Road
- Architectural Style:2 Story, Townhouse
- Exterior Features:Fenced, Patio, Porch, Public Road, Sprinkler, Yard
- Foundation Description:Stem Wall
- Levels:2 Stories
Schools
- High school:Corvallis
- Middle school:Linus Pauling
- Elementary school:Lincoln
Utilities
- Water:Public Water
- Sewer:Public Sewer
Finances and disclosures
- Price:$489,750
- Price per sq. ft.:$334.3
Features and amenities
- Amenities:Double Pane Window(s), Garage Door Opener, Laundry, Vaulted Ceiling, Vinyl Frame Windows, Wall To Wall Carpet
Parking
- Total parking spaces:1
- Parking description:Driveway, On street
- Garage spaces:1
New listings near 235 SE Jensen Ave
- New
$375,000Active3 beds 1 baths912 sq. ft.3417 SE 3rd St, Corvallis, OR 97333
MLS# 840611Listed by: RE/MAX INTEGRITY CORVALLIS BRANCH - New
$389,500Active3 beds 2 baths1,108 sq. ft.6298 SW Grand Oaks #F204 Dr, Corvallis, OR 97333
MLS# 840508Listed by: NORTHWEST REALTY CONSULTANTS - Open Fri, 5:30 to 7:30pmNew
$590,000Active3 beds 2 baths1,769 sq. ft.782 NW Deer Pl, Corvallis, OR 97330
MLS# 840639Listed by: TOWN & COUNTRY SOTHEBY'S INTERNATIONAL REALTY - Open Sat, 11am to 1pmNew
$1,225,000Active6 beds 5 baths3,187 sq. ft.3791 NW Boxwood Pl, Corvallis, OR 97330
MLS# 837314Listed by: TOWN & COUNTRY SOTHEBY'S INTERNATIONAL REALTY - New
$829,900Active5 beds 3 baths2,558 sq. ft.208 NW Lewisburg Av, Corvallis, OR 97330
MLS# 840946Listed by: KELLER WILLIAMS REALTY MID WILLAMETTE - Open Sat, 1 to 3pmNew
$480,000Active3 beds 3 baths1,590 sq. ft.8768 Box Elder St, Corvallis, OR 97330
MLS# 840933Listed by: TRIPLE OAKS REALTY-CORVALLIS BRANCH - New
$485,000Active3 beds 3 baths1,480 sq. ft.1213 NE Conroy Pl, Corvallis, OR 97330
MLS# 840578Listed by: KELLER WILLIAMS REALTY MID-WILLAMETTE - GILLOTT TEAM
$695,000Pending4 beds 3 baths2,336 sq. ft.3316 NW Firwood Dr, Corvallis, OR 97330
MLS# 840758Listed by: RE/MAX INTEGRITY CORVALLIS BRANCH- Open Sun, 1 to 3pmNew
$985,000Active5 beds 4 baths3,228 sq. ft.29047 Harvey Ln, Corvallis, OR 97330
MLS# 840897Listed by: RE/MAX INTEGRITY CORVALLIS BRANCH - Open Sat, 11am to 1pmNew
$805,000Active4 beds 4 baths2,972 sq. ft.5911 SW Banyon Cir, Corvallis, OR 97333
MLS# 840600Listed by: TRIPLE OAKS REALTY-CORVALLIS BRANCH