4481 NE 41st Ave, Portland, OR 97211
Local realty services provided by:ERA Freeman & Associates, Realtors
4481 NE 41st Ave,Portland, OR 97211
$455,000
- 2 Beds
- 2 Baths
- 904 sq. ft.
- Single family
- Active
Upcoming open houses
- Sun, Mar 2901:00 pm - 03:00 pm
Listed by: chris dawkins
Office: keller williams pdx central
MLS#:340005605
Source:PORTLAND
Price summary
- Price:$455,000
- Price per sq. ft.:$503.32
- Monthly HOA dues:$129
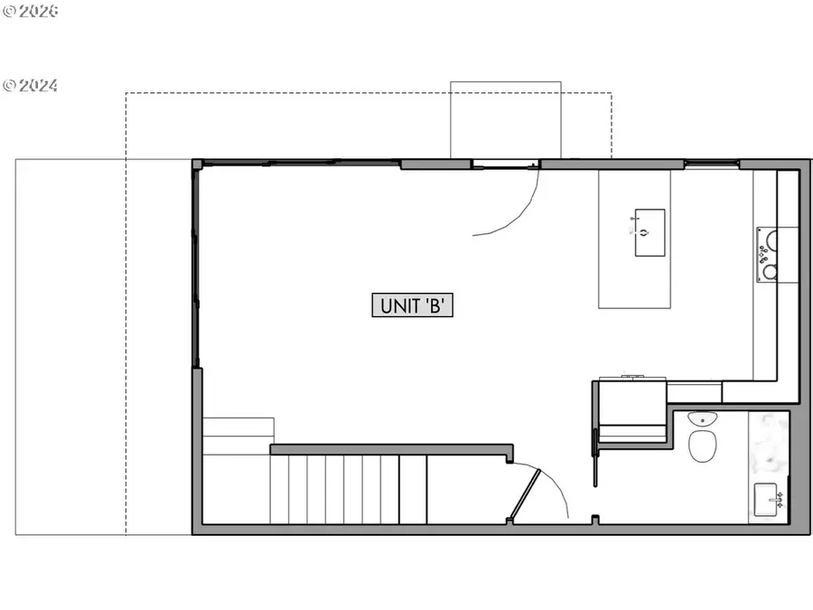
About this home
New modern home in sought-after Beaumont-Wilshire Neighborhood location convenient to NE Fremont, NE 42nd Ave & NE Alberta shops & restaurants. Built with uncompromised quality and true architectural design by Snug, Portland's premiere infill cottage developer. Must see to appreciate all of the designer finishes and upgrades compared to the typical new build. 1 of 4 townhouse homes, each with private fenced yard for entertaining AND PETS. Layout lives large with great room plan & chef’s kitchen. 2 vaulted bedrooms & laundry upstairs. Loads of storage with built-in pantry and large closets. Completely move-in ready with included fridge, W/D and full landscaping. Low energy certified all-electric home with mini split heating and cooling. Total energy bill estimated @ just $64 per month. Pre-plumbed for solar such that it could be truly Net Zero! Live maintenance free with minimal monthly expense, while enjoying all the benefits of a single family home! HES= 10! Unbeatable Beaumont-Wilshire location offering a long stretch of vibrant shops, unique bars, music venues and restaurant Walkscore= 88! Bikescore= 97!! List price is subject to buyer qualifying for the Portland Housing Bureau- SDC exemption program. SDC waiver income limit for this property is $148,920. Seller's preferred lender is offering incentives resulting in low mortgage rates. Rear left unit with large, private yard and street frontage....
Contact an agent
Home facts
- Year built:2026
- Listing ID #:340005605
- Added:21 day(s) ago
- Updated:March 25, 2026 at 07:28 PM
Rooms and interior
- Bedrooms:2
- Total bathrooms:2
- Full bathrooms:1
- Half bathrooms:1
- Bathrooms Description:Soaking Tub
- Kitchen Description:Dishwasher, Disposal, Free Standing Range, Free Standing Refrigerator, Microwave, Plumbed For Icemaker, Quartz, Stainless Steel Appliance, Tile
- Living area:904 sq. ft.
Heating and cooling
- Cooling:Heat Pump
- Heating:Heat Pump, Mini Split
Structure and exterior
- Roof:Composition
- Year built:2026
- Building area:904 sq. ft.
- Architectural Style:Contemporary, Townhouse
- Exterior Features:Fenced, Patio, Sprinkler, Yard
- Foundation Description:Concrete Perimeter, Slab
- Levels:2 Stories
Schools
- High school:Jefferson
- Middle school:Vernon
- Elementary school:Vernon
Utilities
- Water:Public Water
- Sewer:Public Sewer
Finances and disclosures
- Price:$455,000
- Price per sq. ft.:$503.32
Features and amenities
- Laundry features:Washer/Dryer
- Amenities:Double Pane Window(s), High Ceilings, Laundry, Tile Floor, Vinyl Frame Windows, Wall To Wall Carpet
Parking
- Parking description:On street
New listings near 4481 NE 41st Ave
- New
$1,199,900Active2 beds 3 baths1,927 sq. ft.1310 NW Naito Pkwy #1001, Portland, OR 97209
MLS# 185242515Listed by: CORCORAN PRIME - Open Fri, 5 to 7pmNew
$575,000Active3 beds 2 baths1,828 sq. ft.120 NE Beyrl Ter, Portland, OR 97220
MLS# 383747662Listed by: URBAN NEST REALTY - New
$525,000Active3 beds 3 baths1,498 sq. ft.8307 N Foss Ave, Portland, OR 97203
MLS# 443460483Listed by: EXP REALTY, LLC - New
$1,100,000Active5 beds 3 baths3,528 sq. ft.12127 NW Millford St, Portland, OR 97229
MLS# 518246012Listed by: COLDWELL BANKER BAIN - Open Sat, 12 to 2pmNew
$735,000Active5 beds 3 baths2,958 sq. ft.12814 NW Bayonne Ln, Portland, OR 97229
MLS# 369533138Listed by: THE AGENCY PORTLAND - Open Sat, 1 to 3pmNew
$409,000Active3 beds 2 baths989 sq. ft.6115 SE Lambert St, Portland, OR 97206
MLS# 509494090Listed by: THINK REAL ESTATE - New
$765,000Active3 beds 3 baths1,834 sq. ft.3969 N Overlook Blvd #B, Portland, OR 97227
MLS# 698390722Listed by: CASCADE HASSON SOTHEBY'S INTERNATIONAL REALTY - New
$725,000Active4 beds 3 baths2,632 sq. ft.14571 NW Werner Ln, Portland, OR 97229
MLS# 750408782Listed by: REAL BROKER - New
$625,000Active3 beds 2 baths1,932 sq. ft.2801 NE 35th Pl, Portland, OR 97212
MLS# 112481016Listed by: KELLER WILLIAMS PDX CENTRAL - Open Sat, 12 to 2pmNew
$600,000Active3 beds 2 baths1,318 sq. ft.7452 SE 49th Ave, Portland, OR 97206
MLS# 204685606Listed by: MORE REALTY