23820 SW Black Tortoise Ter, Tualatin, OR 97062
Local realty services provided by:Columbia River Realty ERA Powered
Listed by: gina masters, anastasia gordeev
Office: lennar sales corp
MLS#:572215422
Source:PORTLAND
Price summary
- Price:$499,400
- Price per sq. ft.:$249.2
- Monthly HOA dues:$164
About this home
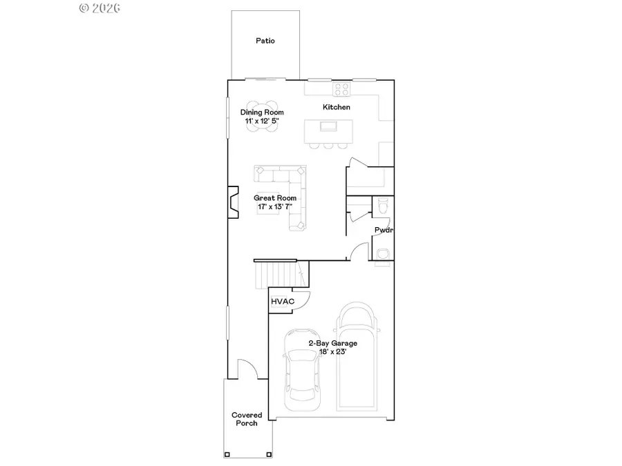
Step into modern comfort and effortless style in this beautifully designed two-story "Spencer" floor plan in the desirable Autumn Sunrise master-planned community in Tualatin. This home comes complete with a refrigerator, washer and dryer, air conditioning, and blinds included. The main level welcomes you with a generous open-concept layout that seamlessly connects the Great Room, dining area, and kitchen—creating the perfect space for everyday living and entertaining. Large windows fill the home with abundant natural light, while sliding glass doors open to the patio for easy indoor-outdoor living, ideal for summer gatherings or quiet evenings outside. At the heart of the home, the kitchen shines with thoughtful design and elevated finishes, including beautiful quartz countertops, a spacious pantry, and plenty of prep and storage space. Quartz surfaces continue throughout all bathrooms, creating a cohesive and upscale feel throughout the home. Durable and stylish LVP flooring flows through the main living areas, complemented by luxury vinyl tile in select spaces and plush carpet with an 8-lb pad upstairs for added comfort. All four bedrooms are conveniently located on the upper level, offering privacy and a peaceful retreat from the main living areas. The luxurious owner’s suite features a spacious bedroom, a private ensuite bath, and a generous walk-in closet designed to make everyday routines feel just a little more special. Located in Autumn Sunrise, one of Tualatin’s most exciting new communities, residents enjoy neighborhood amenities including a playground, picnic area, fire pit, and basketball court. This home combines thoughtful design, quality finishes, and a welcoming neighborhood setting—making it a place you’ll truly love to call home. Come experience it for yourself! Photos are of similar, or model home so features and finishes may vary. Homesite #268, move in ready. *Below-market rate incentives available when financing with preferred lender.*...
Contact an agent
Home facts
- Year built:2026
- Listing ID #:572215422
- Added:15 day(s) ago
- Updated:March 23, 2026 at 04:22 AM
Rooms and interior
- Bedrooms:4
- Total bathrooms:3
- Full bathrooms:2
- Half bathrooms:1
- Bathrooms Description:Soaking Tub
- Kitchen Description:Dishwasher, Disposal, Free Standing Gas Range, Free Standing Range, Island, Microwave, Pantry, Plumbed For Icemaker, Quartz
- Basement Description:Crawl Space
- Living area:2,004 sq. ft.
Heating and cooling
- Cooling:Central Air
- Heating:Forced Air 90+
Structure and exterior
- Roof:Composition
- Year built:2026
- Building area:2,004 sq. ft.
- Lot area:0.07 Acres
- Architectural Style:2 Story, Common Wall
- Exterior Features:Fenced, Patio, Sprinkler
- Foundation Description:Concrete Perimeter
- Levels:2 Stories
Schools
- High school:Sherwood
- Middle school:Sherwood
- Elementary school:Hawks View
Utilities
- Water:Public Water
- Sewer:Public Sewer
Finances and disclosures
- Price:$499,400
- Price per sq. ft.:$249.2
- Tax amount:$1,654 (2025)
Features and amenities
- Laundry features:Washer/Dryer
- Amenities:Double Pane Window(s), Garage Door Opener, Laundry, Vinyl Frame Windows, Wall To Wall Carpet
Parking
- Total parking spaces:2
- Parking description:Driveway
- Garage spaces:2
New listings near 23820 SW Black Tortoise Ter
- New
$486,400Active3 beds 3 baths1,722 sq. ft.23815 SW Black Tortoise Ter, Tualatin, OR 97062
MLS# 278692410Listed by: LENNAR SALES CORP
$669,900Pending5 beds 3 baths2,610 sq. ft.8942 SW Chokecherry Ln, Tualatin, OR 97062
MLS# 197707015Listed by: LENNAR SALES CORP- New
$606,400Active4 beds 3 baths2,056 sq. ft.23850 SW Black Tortoise Ter, Tualatin, OR 97062
MLS# 213722730Listed by: LENNAR SALES CORP
$574,900Pending3 beds 3 baths1,993 sq. ft.11130 SW Apalachee St, Tualatin, OR 97062
MLS# 620925509Listed by: EXP REALTY, LLC- Open Sat, 11am to 1pmNew
$325,000Active2 beds 3 baths1,172 sq. ft.19913 SW Poplarwood Pl, Tualatin, OR 97062
MLS# 509999838Listed by: KELLER WILLIAMS REALTY PORTLAND PREMIERE - New
$85,000Active3 beds 2 baths1,296 sq. ft.18485 SW Pacific Dr #37, Tualatin, OR 97062
MLS# 308601429Listed by: RE/MAX EQUITY GROUP
$548,000Pending3 beds 2 baths1,398 sq. ft.21634 SW Columbia Dr, Tualatin, OR 97062
MLS# 644925481Listed by: BERKSHIRE HATHAWAY HOMESERVICES NW REAL ESTATE- New
$615,000Active4 beds 3 baths2,359 sq. ft.9250 SW Sagert St, Tualatin, OR 97062
MLS# 796044034Listed by: JOHN L. SCOTT - New
$799,000Active5 beds 3 baths3,267 sq. ft.10818 SW Brown St, Tualatin, OR 97062
MLS# 694138272Listed by: JOHN L. SCOTT SANDY
$489,000Pending3 beds 2 baths1,184 sq. ft.9370 SW Killarney Ln, Tualatin, OR 97062
MLS# 140503066Listed by: UPTOWN PROPERTIES, LLC