7430 SW Alder St, Wilsonville, OR 97070
Local realty services provided by:ERA Freeman & Associates, Realtors
7430 SW Alder St,Wilsonville, OR 97070
$915,000
- 5 Beds
- 3 Baths
- 2,944 sq. ft.
- Single family
- Active
Listed by: travis wolpin
Office: stone bridge realty, inc503-387-7555
MLS#:221792690
Source:PORTLAND
Price summary
- Price:$915,000
- Price per sq. ft.:$310.8
- Monthly HOA dues:$97
About this home
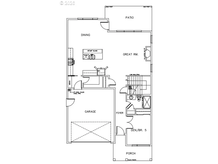
Special closing cost incentive, see sales rep for details! Find your space in this wonderful home! This modern style home features 5 bedrooms, including 1 on the main floor, 3 bathrooms, and a bonus room on the upper. Store all your groceries and staples in the ample walk-in pantry and owner’s entry. Enjoy Whirlpool appliances and quartz countertops in the gourmet Kitchen. Retreat to the spacious primary suite with HUGE walk-in closet, tile shower, dual vanity, and soaking tub. Fully landscaped with sprinklers on timer and fenced rear yard. Ask about our Sycamore plan today! HOME IS UNDER CONSTRUCTION - EST COMPLETION MID MAY
Contact an agent
Home facts
- Year built:2026
- Listing ID #:221792690
- Added:44 day(s) ago
- Updated:April 26, 2026 at 11:18 AM
Rooms and interior
- Bedrooms:5
- Total bathrooms:3
- Full bathrooms:3
- Bathrooms Description:Soaking Tub
- Kitchen Description:Built In Oven, Cooktop, Dishwasher, Disposal, Gas Appliances, Island, Microwave, Pantry, Plumbed For Icemaker, Quartz, Range Hood, Stainless Steel Appliance, Tile
- Basement Description:Crawl Space
- Living area:2,944 sq. ft.
Heating and cooling
- Cooling:Air Conditioning Ready
- Heating:Forced Air 90+
Structure and exterior
- Roof:Composition
- Year built:2026
- Building area:2,944 sq. ft.
- Lot Features:Level
- Architectural Style:2 Story, Modern
- Exterior Features:Covered Patio, Fenced, Gas Hookup, Patio, Porch, Sprinkler, Yard
- Foundation Description:Concrete Perimeter, Pillar Post Pier
- Levels:1 Story
Schools
- High school:Wilsonville
- Middle school:Meridian Creek
- Elementary school:Stafford
Utilities
- Water:Public Water
- Sewer:Public Sewer
Finances and disclosures
- Price:$915,000
- Price per sq. ft.:$310.8
Features and amenities
- Amenities:Double Pane Window(s), Garage Door Opener, Laundry, Tile Floor, Vinyl Frame Windows, Wall To Wall Carpet
Parking
- Total parking spaces:2
- Parking description:Driveway, On street
- Garage spaces:2
New listings near 7430 SW Alder St
- New
$675,000Active3 beds 2 baths2,047 sq. ft.28558 SW Meadows Loop, Wilsonville, OR 97070
MLS# 565037621Listed by: DWELL REALTY - Open Sun, 11am to 1pmNew
$950,000Active5 beds 3 baths3,224 sq. ft.27771 SW Marigold Ter, Wilsonville, OR 97070
MLS# 736500845Listed by: CASCADE HASSON SOTHEBY'S INTERNATIONAL REALTY - Open Sun, 1 to 3pmNew
$525,000Active2 beds 2 baths1,266 sq. ft.32125 SW Cypress Pt, Wilsonville, OR 97070
MLS# 211852012Listed by: WINDERMERE HERITAGE - Open Sun, 12 to 3pmNew
$650,000Active4 beds 3 baths2,281 sq. ft.28669 SW Meadows Loop, Wilsonville, OR 97070
MLS# 433405735Listed by: KELLER WILLIAMS REALTY PORTLAND ELITE - Open Sun, 1 to 3pmNew
$748,000Active2 beds 2 baths1,852 sq. ft.7287 SW Arbor Lake Dr, Wilsonville, OR 97070
MLS# 632971657Listed by: ELEETE REAL ESTATE - New
$410,000Active4 beds 4 baths1,704 sq. ft.28635 SW Roger Blvd #70, Wilsonville, OR 97070
MLS# 677482796Listed by: PREMIERE PROPERTY GROUP, LLC - Open Sun, 1 to 3pmNew
$795,000Active4 beds 3 baths2,744 sq. ft.32099 SW Willamette Way E, Wilsonville, OR 97070
MLS# 402168506Listed by: PREMIERE PROPERTY GROUP, LLC - New
$789,900Active4 beds 3 baths2,884 sq. ft.7236 SW Windflower St, Wilsonville, OR 97070
MLS# 480059908Listed by: STONE BRIDGE REALTY, INC - Open Sun, 1 to 3pmNew
$749,000Active4 beds 3 baths2,362 sq. ft.10908 SW Arthur Ct, Wilsonville, OR 97070
MLS# 602878883Listed by: CASCADE HASSON SOTHEBY'S INTERNATIONAL REALTY - New
$419,000Active2 beds 2 baths1,260 sq. ft.31836 SW Fairway Village Loop, Wilsonville, OR 97070
MLS# 743222275Listed by: CASCADE HASSON SOTHEBY'S INTERNATIONAL REALTY