130 Bridge Valley Road, Gettysburg, PA 17325
Local realty services provided by:O'BRIEN REALTY ERA POWERED
130 Bridge Valley Road,Gettysburg, PA 17325
$599,990
- 4 Beds
- 4 Baths
- 2,057 sq. ft.
- Single family
- Active
Upcoming open houses
- Thu, Dec 1810:00 am - 05:00 pm
- Fri, Dec 1910:00 am - 05:00 pm
- Sat, Dec 2010:00 am - 05:00 pm
- Sun, Dec 2110:00 am - 05:00 pm
- Tue, Dec 2310:00 am - 05:00 pm
Listed by: kira cramer
Office: iron valley real estate of central pa
MLS#:PAAD2020198
Source:BRIGHTMLS
Price summary
- Price:$599,990
- Price per sq. ft.:$291.68
- Monthly HOA dues:$175
About this home
Welcome to Wade Run at the Links at Gettysburg where you can customize your brand new home in one of the most prestigious communities in Adams County, PA. This is a community that truly gives back to our planet as they will plant 100 trees for every home sold. The best part is YOU get to choose where the trees are planted when you purchase.
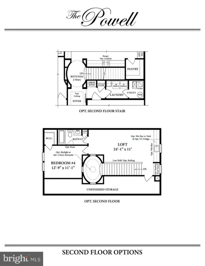
This particular listing presents the Powell floor plan! The floor plan includes 3 bedrooms and 2.5 baths on the main floor with an option to add a second floor for an additional bedroom and full bath. Beautiful sight lines between the kitchen, living room, and dining room create amazing functionality in this home! Don't forget to take a look at the finished basement options as well. This will be a new construction to-be-built by Ward Communities and designed by YOU. The photos are from other model homes that have been constructed. Other floor plans are available for this lot and other lots are available for this floor plan! Be sure to click through the photos to view all lots available and check out other floor plan options at the community's other listings. The listing price you see here is the base price for the new construction and some lots may have additional premiums.
Questions? Give a call today for more information, additional floor plan information, or to set up a consultation about all options at Wade Run at the Links at Gettysburg. There is a current model home at the end of Bridge Valley Road. Hours are 10:00am to 5:00pm daily. Feel free to stop by or call to schedule an appointment.
Contact an agent
Home facts
- Listing ID #:PAAD2020198
- Added:67 day(s) ago
- Updated:December 17, 2025 at 05:38 PM
Rooms and interior
- Bedrooms:4
- Total bathrooms:4
- Full bathrooms:3
- Half bathrooms:1
- Living area:2,057 sq. ft.
Heating and cooling
- Cooling:Central A/C
- Heating:Forced Air, Propane - Metered
Structure and exterior
- Building area:2,057 sq. ft.
Utilities
- Water:Public
- Sewer:Public Sewer
Finances and disclosures
- Price:$599,990
- Price per sq. ft.:$291.68
New listings near 130 Bridge Valley Road
- New
$360,965Active2 beds 2 baths1,483 sq. ft.179 Grand Overlook, GETTYSBURG, PA 17325
MLS# PAAD2021054Listed by: KELLY AND CO REALTY, LLC - New
$499,000Active4 beds 4 baths3,271 sq. ft.334 Friendship Ln, GETTYSBURG, PA 17325
MLS# PAAD2021024Listed by: MOUNTAIN VIEW REALTY - New
$450,000Active5 beds 4 baths4,375 sq. ft.1310 Goldenville Rd, GETTYSBURG, PA 17325
MLS# PAAD2020990Listed by: KELLER WILLIAMS KEYSTONE REALTY - New
$259,900Active3 beds 3 baths1,824 sq. ft.31 Winslow Ct, GETTYSBURG, PA 17325
MLS# PAAD2020970Listed by: RE/MAX OF GETTYSBURG
$499,000Pending3 beds 2 baths1,738 sq. ft.81 Rupp Rd, GETTYSBURG, PA 17325
MLS# PAAD2020972Listed by: CORE PARTNERS REALTY
$895,000Active5 beds 4 baths4,890 sq. ft.948 Heritage Dr, GETTYSBURG, PA 17325
MLS# PAAD2020508Listed by: COLDWELL BANKER REALTY
$265,000Pending3 beds 2 baths1,320 sq. ft.860 Bon Ox Rd, GETTYSBURG, PA 17325
MLS# PAAD2020952Listed by: RE/MAX QUALITY SERVICE, INC.
$289,990Pending3 beds 3 baths1,500 sq. ft.47 Windsor Court, GETTYSBURG, PA 17325
MLS# PAAD2020890Listed by: D.R. HORTON REALTY OF PENNSYLVANIA
$289,990Active3 beds 3 baths1,500 sq. ft.53 Windsor Court, GETTYSBURG, PA 17325
MLS# PAAD2020910Listed by: D.R. HORTON REALTY OF PENNSYLVANIA
$289,990Active3 beds 3 baths1,500 sq. ft.49 Windsor Court, GETTYSBURG, PA 17325
MLS# PAAD2020912Listed by: D.R. HORTON REALTY OF PENNSYLVANIA