1631 Keystone, Hatfield, PA 19440
Local realty services provided by:ERA Byrne Realty
1631 Keystone,Hatfield, PA 19440
$725,000
- 4 Beds
- 2 Baths
- 2,550 sq. ft.
- Single family
- Active
Upcoming open houses
- Sun, Dec 1403:00 pm - 05:00 pm
Listed by: aaron powell
Office: keller williams real estate-montgomeryville
MLS#:PABU2110228
Source:BRIGHTMLS
Price summary
- Price:$725,000
- Price per sq. ft.:$284.31
About this home
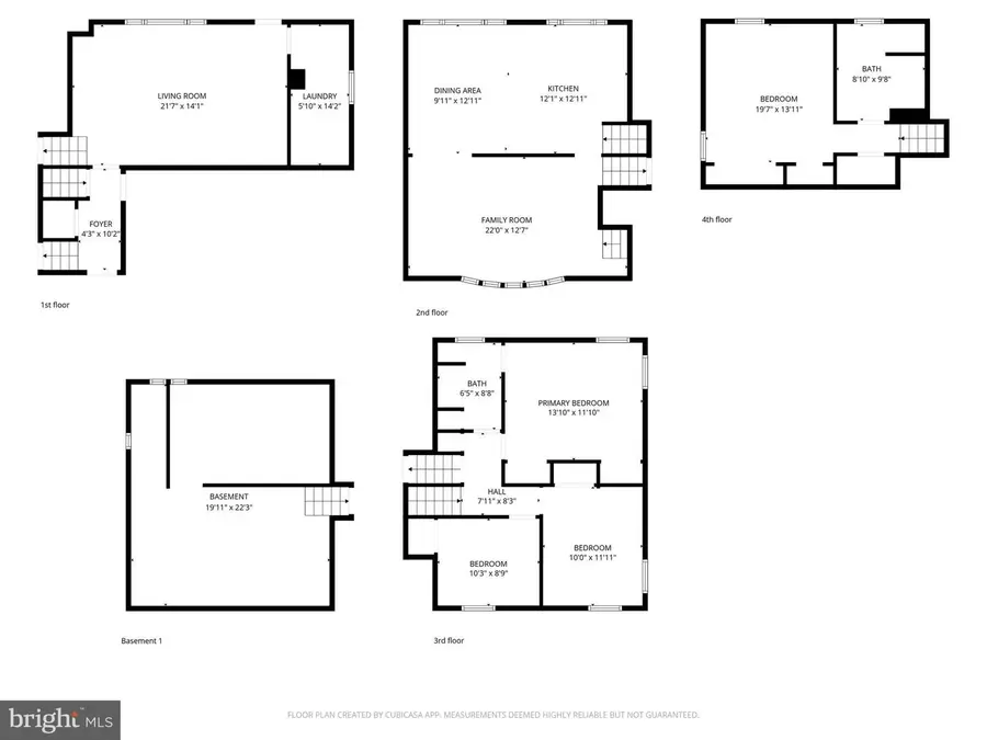
Discover the joy of living in this completely renovated 4-bedroom, 2-bath single-family home set on 1.45 peaceful acres and has really low taxes. From the moment you arrive, the charm is undeniable. This is not your cookie-cutter home, this house has character! Inside you’ll find two spacious living rooms—each filled with natural light—offering beautiful views of both the front and rear yards that give you the perfect backdrop for everyday living. The chef-inspired kitchen is Stunning! It is the centerpiece of the home, featuring white-on-white cabinetry, expansive quartz countertops, and abundant workspace for the most discerning home chef.
The primary suite is a true standout; complete with two double barn-door closets and an additional closet. The master bathroom is breathtaking and makes you feel like you are on a private retreat. This spa-worthy bathroom boasts dual vanities and a luxurious custom shower with two rain heads, a wand, a seat, and dual shower niches that rivals any high-end resort. Three generously sized bedrooms share a beautifully updated hall bath highlighted by a modern tub with an overhead rain shower. Outside, car lovers, DIYers or hobbyists will appreciate the attached 1-car garage plus a detached 2-car garage with additional workshop space. Like wildlife? At this home you will see deer, turkeys and other wildlife walking by throughout the year. Located in an amazing neighborhood known for its friendly community and its beloved Keystone Drive Holiday Lighting display, this home is just minutes from Routes 309, 313, and Church Road. ( Additional highlights include refinished hardwood flooring, luxury vinyl plank flooring, tiled bathrooms, and brand new siding.) Start the new year in a home where every upgrade has already been beautifully done for you.
Contact an agent
Home facts
- Year built:1972
- Listing ID #:PABU2110228
- Added:10 day(s) ago
- Updated:December 13, 2025 at 05:36 AM
Rooms and interior
- Bedrooms:4
- Total bathrooms:2
- Full bathrooms:2
- Living area:2,550 sq. ft.
Heating and cooling
- Cooling:Central A/C
- Heating:Hot Water, Oil
Structure and exterior
- Roof:Pitched, Shingle
- Year built:1972
- Building area:2,550 sq. ft.
- Lot area:1.45 Acres
Schools
- High school:PENNRIDGE
Utilities
- Water:Well
- Sewer:On Site Septic
Finances and disclosures
- Price:$725,000
- Price per sq. ft.:$284.31
- Tax amount:$6,138 (2025)
New listings near 1631 Keystone
$1,085,800Pending4 beds 3 baths732 Cowpath Rd, HATFIELD, PA 19440
MLS# PAMC2130906Listed by: CHRISTOPHER REAL ESTATE SERVICES
$575,000Pending4 beds 4 baths2,550 sq. ft.701 Quail Cir, HATFIELD, PA 19440
MLS# PAMC2163452Listed by: RE/MAX RELIANCE- New
$179,900Active2 beds 2 baths1,330 sq. ft.113 Hickory Dr, HATFIELD, PA 19440
MLS# PAMC2162864Listed by: STERLING REALTY & PROPERTY MANAGEMENT, LLC
$335,000Pending2 beds 1 baths1,683 sq. ft.1306 W Orvilla Rd, HATFIELD, PA 19440
MLS# PAMC2162768Listed by: RE/MAX SERVICES
$465,000Pending3 beds 3 baths1,900 sq. ft.829 Alexander Dr, HATFIELD, PA 19440
MLS# PAMC2162168Listed by: KELLER WILLIAMS REALTY GROUP
$550,000Pending4 beds 3 baths2,517 sq. ft.2801 Denbeigh Dr, HATFIELD, PA 19440
MLS# PAMC2162314Listed by: ALDERFER AUCTION & REALTY
$539,000Active4 beds 2 baths2,520 sq. ft.333 Fairhill Rd, HATFIELD, PA 19440
MLS# PABU2109960Listed by: UNITED PROPERTIES REALTY
$485,000Active2 beds 3 baths2,265 sq. ft.3113 Arbour Green Ct, HATFIELD, PA 19440
MLS# PAMC2162172Listed by: COLDWELL BANKER REALTY
$419,900Active4 beds 3 baths1,624 sq. ft.36 N Maple Ave, HATFIELD, PA 19440
MLS# PAMC2161320Listed by: HOMESTARR REALTY