118 Austin Dr, Kennett Square, PA 19348
Local realty services provided by:ERA OakCrest Realty, Inc.
118 Austin Dr,Kennett Square, PA 19348
$650,000
- 3 Beds
- 3 Baths
- 2,540 sq. ft.
- Townhouse
- Pending
Listed by: rory d burkhart
Office: exp realty, llc.
MLS#:PACT2119314
Source:BRIGHTMLS
Price summary
- Price:$650,000
- Price per sq. ft.:$255.91
- Monthly HOA dues:$215
About this home
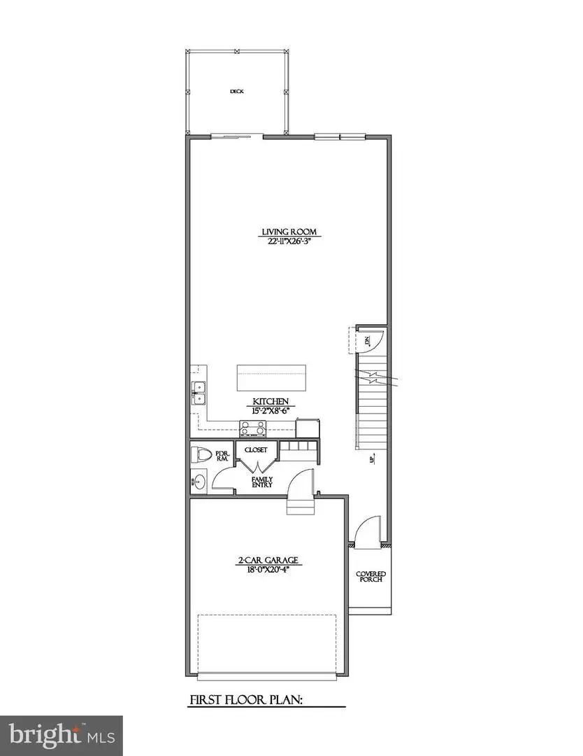
Welcome to The Parks at North Walnut!! This gorgeous park-side community features custom-built townhomes and single-family homes within award-winning schools and a walkable location to downtown Kennett Square Borough! The Aster Model combines sophisticated design with flexible living across three spacious levels, plus an optional loft and a finished daylight basement. On the entry level, a two-car garage and versatile flex space provide ample storage or the opportunity to personalize your home office, gym, or rec room. The main floor showcases a bright, open-concept layout with a stylish kitchen featuring available island seating, seamlessly connected to the dining and living areas and perfect for both daily living and effortless entertaining. Upstairs, unwind in the private primary suite complete with a walk-in closet and spa-inspired bath. A second bedroom, full bath, and convenient laundry area complete this level for everyday ease. Select Aster elevations include a loft-level upgrade, offering additional living space ideal for guests, hobbies, or a quiet retreat. The Aster Model is available in 3, 4, and 5+ bedroom options. Every detail of the Aster is crafted to adapt beautifully to your lifestyle. Inquire with the listing agent or visit the community website to build your own custom home while they last!...
Contact an agent
Home facts
- Year built:2025
- Listing ID #:PACT2119314
- Added:64 day(s) ago
- Updated:May 14, 2026 at 07:41 AM
Rooms and interior
- Bedrooms:3
- Total bathrooms:3
- Full bathrooms:2
- Half bathrooms:1
- Basement:Yes
- Basement Description:Full
- Living area:2,540 sq. ft.
Heating and cooling
- Cooling:Central A/C
- Heating:Forced Air, Natural Gas
Structure and exterior
- Year built:2025
- Building area:2,540 sq. ft.
- Lot area:0.01 Acres
- Architectural Style:Traditional
- Construction Materials:Brick
- Foundation Description:Permanent
- Levels:2 Stories
Utilities
- Water:Public
- Sewer:Public Sewer
Finances and disclosures
- Price:$650,000
- Price per sq. ft.:$255.91
Parking
- Parking description:Attached Garage, Garage - Front Entry
- Garage:Yes
- Garage spaces:2
New listings near 118 Austin Dr
- New
$1,500,000Active7 beds 6 baths7,085 sq. ft.301 Lisa Ln, KENNETT SQUARE, PA 19348
MLS# PACT2125586Listed by: RE/MAX PROFESSIONAL REALTY - Coming SoonOpen Sun, 1 to 3pm
$530,000Coming Soon4 beds 4 baths232 Deepdale Dr #44, KENNETT SQUARE, PA 19348
MLS# PACT2125402Listed by: WEICHERT, REALTORS - CORNERSTONE - Coming Soon
$1,100,000Coming Soon5 beds 5 baths124 Round Hill Rd, KENNETT SQUARE, PA 19348
MLS# PACT2125388Listed by: BHHS FOX & ROACH-KENNETT SQ - New
$300,000Active3 beds 2 baths131 Cedarcroft Rd, KENNETT SQUARE, PA 19348
MLS# PACT2125432Listed by: RE/MAX EXCELLENCE - KENNETT SQUARE - New
$659,000Active5 beds 5 baths2,550 sq. ft.413 Wharton St, KENNETT SQUARE, PA 19348
MLS# PACT2125294Listed by: EXP REALTY, LLC - New
$579,000Active4 beds 4 baths2,788 sq. ft.115 Marshall Bridge Rd, KENNETT SQUARE, PA 19348
MLS# PACT2124836Listed by: RE/MAX PREFERRED - NEWTOWN SQUARE - New
$325,000Active3 beds 1 baths1,267 sq. ft.408 N Union St, KENNETT SQUARE, PA 19348
MLS# PACT2124454Listed by: KELLER WILLIAMS REAL ESTATE - WEST CHESTER - Open Sat, 11am to 1pmNew
$795,000Active5 beds 4 baths4,012 sq. ft.132 Beverly Dr, KENNETT SQUARE, PA 19348
MLS# PACT2124942Listed by: MARCOLLA REALTY - Open Sun, 1 to 3pmNew
$650,000Active2 beds 2 baths1,895 sq. ft.460 Mimosa Cir, KENNETT SQUARE, PA 19348
MLS# PACT2125040Listed by: RE/MAX TOWN & COUNTRY
$420,000Pending3 beds 2 baths1,318 sq. ft.631 S Broad St, KENNETT SQUARE, PA 19348
MLS# PACT2125036Listed by: COLDWELL BANKER REALTY