1701 Montrose St, Philadelphia, PA 19146
Local realty services provided by:ERA Central Realty Group
1701 Montrose St,Philadelphia, PA 19146
$285,000
- 0.01 Acres
- Lots / Land
- Pending
Listed by: michael t. dougherty
Office: serhant pennsylvania llc.
MLS#:PAPH2586668
Source:BRIGHTMLS
Price summary
- Price:$285,000
About this home
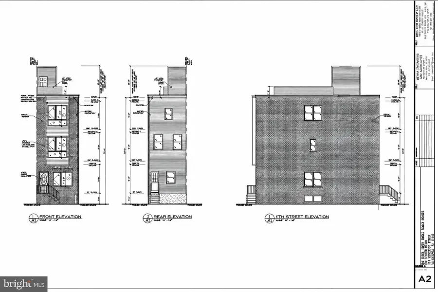
Presenting a rare corner lot opportunity in the heart of Graduate Hospital, directly across from Carpenter Green Park offering exceptional visibility, natural light exposure, and unmatched neighborhood presence. Zoned RM1 & Located in one of Philadelphia’s most desirable and rapidly appreciating communities, this prime parcel is ideally positioned just minutes from Center City, Rittenhouse Square, and the city’s premier dining, shopping, and cultural destinations. Enjoy walkable access to CHOP and UPenn, along with seamless connectivity to I-95, I-76, I-676, bridges to New Jersey, and Philadelphia International Airport. Surrounded by high-quality new construction and strong buyer demand, this property presents an outstanding opportunity for builders, developers, and end users alike. Whether envisioning a custom three-story luxury residence for personal use or a high-performing resale project, this lot offers the flexibility and location to support exceptional value. Architectural plans for a proposed three-story single-family home, detailed exterior elevations, and a professional geotechnical report are available, providing a clear and efficient path to development. Corner parcels of this caliber in Graduate Hospital are exceedingly rare making 1701 Montrose Street a premier opportunity to build, invest, and create in one of Philadelphia’s most sought-after neighborhoods. Reach out today....
Contact an agent
Home facts
- Listing ID #:PAPH2586668
- Added:45 day(s) ago
- Updated:April 09, 2026 at 07:31 AM
Structure and exterior
- Lot area:0.01 Acres
Utilities
- Water:Public
- Sewer:Public Sewer
Finances and disclosures
- Price:$285,000
- Tax amount:$1,923 (2025)
New listings near 1701 Montrose St
- Coming SoonOpen Sat, 12:30 to 2:30pm
$1,695,000Coming Soon5 beds 4 baths205 W Highland Ave, PHILADELPHIA, PA 19118
MLS# PAPH2602926Listed by: KURFISS SOTHEBY'S INTERNATIONAL REALTY - Coming SoonOpen Fri, 5 to 7pm
$649,000Coming Soon3 beds 3 baths500 Ridgerun Ln, PHILADELPHIA, PA 19111
MLS# PAPH2605008Listed by: KELLER WILLIAMS REAL ESTATE - SOUTHAMPTON - Coming Soon
$428,000Coming Soon4 beds 2 baths820 Tasker St, PHILADELPHIA, PA 19148
MLS# PAPH2605092Listed by: RE/MAX 2000 - Coming SoonOpen Sun, 11am to 12:30pm
$469,000Coming Soon1 beds 1 baths700 Commodore Ct #2705, PHILADELPHIA, PA 19146
MLS# PAPH2605414Listed by: HOUWZER, LLC - New
$1,325,000Active7 beds -- baths4,568 sq. ft.1642 Cambridge St, PHILADELPHIA, PA 19130
MLS# PAPH2605536Listed by: PHILADELPHIA REALTY EXCHANGE - Coming Soon
$275,000Coming Soon1 beds 1 baths1759 Frankford Ave #4, PHILADELPHIA, PA 19125
MLS# PAPH2605544Listed by: COMPASS PENNSYLVANIA, LLC - Coming Soon
$449,900Coming Soon3 beds 3 baths3814 Brookview Rd, PHILADELPHIA, PA 19154
MLS# PAPH2605558Listed by: RE/MAX 2000 - Coming SoonOpen Sat, 12 to 2pm
$329,000Coming Soon3 beds 3 baths8585 Benton Ave, PHILADELPHIA, PA 19152
MLS# PAPH2605560Listed by: KELLER WILLIAMS REAL ESTATE - NEWTOWN - Coming SoonOpen Sun, 11am to 1pm
$325,000Coming Soon2 beds 2 baths1442 N Marston St, PHILADELPHIA, PA 19121
MLS# PAPH2605566Listed by: BHHS FOX & ROACH-CHESTNUT HILL - New
$235,000Active6 beds 2 baths1,120 sq. ft.5943 N Marvine St, PHILADELPHIA, PA 19141
MLS# PAPH2605576Listed by: EXP REALTY, LLC