19 Alpine Ave, Pittsburgh, PA 15212
Local realty services provided by:ERA Johnson Real Estate, Inc.
Upcoming open houses
- Sat, Mar 1411:00 am - 01:00 pm
Listed by: heather edmondson
Office: keller williams exclusive
MLS#:1743035
Source:PA_WPN
Price summary
- Price:$495,000
- Price per sq. ft.:$228.95
About this home
Newer construction in the Mexican War Streets is rare—and 19 Alpine delivers. Built in 2012, this move-in ready brick home combines modern comfort with the charm and walkability of one of Pittsburgh’s most beloved city neighborhoods.
Step inside to a bright, open living and dining space designed for everyday living and easy entertaining. The eat-in kitchen features stainless steel appliances, rich cabinetry, generous counter space, and bar seating, perfect for casual meals or gathering with friends. Patio doors open to an ideal location for a future wraparound deck, creating a seamless indoor-outdoor entertaining space.
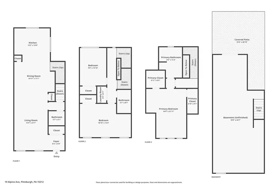
Upstairs, you’ll find three bedrooms and two full bathrooms, including a private top-floor primary suite with two walk-in closets and convenient second-floor laundry. From the upper levels, enjoy fantastic views of Downtown Pittsburgh.
The partially above-grade basement offers exciting possibilities for additional living space, guest accommodations, or a media room—with plumbing already in place for a future full bath. Concept renderings show the potential for a stylish bonus living space with mudroom, wet bar, and full bathroom.
Outside, relax in a private fenced yard with low-maintenance faux turf—and enjoy the rare convenience of two off-street parking spaces.
Live steps from everything that makes the neighborhood special. Grab coffee at Commonplace Coffee, explore contemporary art at Mattress Factory, or unwind across the street at Allegheny Commons Park, where you’ll find festivals, farmers markets, playgrounds, and a dog park. The North Shore, Downtown Pittsburgh, and Strip District are all just minutes away.
Modern construction. Off-street parking. Expansion potential. City views. Walkable historic neighborhood.
Opportunities like this in the Mexican War Streets don’t come along often.
Contact an agent
Home facts
- Year built:2012
- Listing ID #:1743035
- Added:1 day(s) ago
- Updated:March 11, 2026 at 11:59 PM
Rooms and interior
- Bedrooms:3
- Total bathrooms:3
- Full bathrooms:2
- Half bathrooms:1
- Rooms Total:8
- Flooring:Hardwood
- Kitchen Description:Dishwasher, Microwave, Refrigerator, Stove
- Basement:Yes
- Basement Description:Unfinished, Walk Out Access
- Living area:2,162 sq. ft.
Heating and cooling
- Cooling:Central Air
- Heating:Gas
Structure and exterior
- Roof:Asphalt
- Year built:2012
- Building area:2,162 sq. ft.
- Lot area:0.04 Acres
- Construction Materials:Brick
Utilities
- Water:Public
Finances and disclosures
- Price:$495,000
- Price per sq. ft.:$228.95
- Tax amount:$4,574
Features and amenities
- Laundry features:Dryer, Washer
- Amenities:Security System, Some Gas Appliances, Window Treatments
New listings near 19 Alpine Ave
- New
$735,000Active3 beds 3 baths1,842 sq. ft.5529 Berlin Way, Pittsburgh, PA 15201
MLS# 1743037Listed by: KELLER WILLIAMS EXCLUSIVE - New
$235,000Active2 beds 1 baths1,209 sq. ft.3992 Beechwood Blvd, Pittsburgh, PA 15217
MLS# 1743153Listed by: COMPASS PENNSYLVANIA, LLC - New
$349,900Active3 beds 3 baths1,300 sq. ft.557 Thompson Run Road, Pittsburgh, PA 15237
MLS# 1743177Listed by: HOWARD HANNA REAL ESTATE SERVICES - New
$205,000Active3 beds 1 baths1,088 sq. ft.11283 Azalea Dr, Pittsburgh, PA 15235
MLS# 1743360Listed by: BERKSHIRE HATHAWAY THE PREFERRED REALTY - New
$195,000Active3 beds 1 baths1,296 sq. ft.951 Stotler Road, Pittsburgh, PA 15235
MLS# 1743190Listed by: BERKSHIRE HATHAWAY THE PREFERRED REALTY - Open Sat, 12 to 2pmNew
$659,900Active4 beds 4 baths2,498 sq. ft.8300 Reagan Dr, Pittsburgh, PA 15237
MLS# 1743101Listed by: HOWARD HANNA REAL ESTATE SERVICES - Open Sat, 1 to 3pmNew
$310,000Active1 beds 2 baths622 Gross Street #104, Pittsburgh, PA 15224
MLS# 1743359Listed by: PIATT SOTHEBY'S INTERNATIONAL REALTY - New
$68,500Active2 beds 1 baths920 sq. ft.2050 Laketon Rd, Pittsburgh, PA 15221
MLS# 1743018Listed by: COLDWELL BANKER REALTY - New
$479,900Active3 beds 3 baths2,445 sq. ft.1 Pius St #B1, Pittsburgh, PA 15203
MLS# 1743299Listed by: KEFALOS & ASSOC R. E.