49 Rearden Way, Beaufort, SC 29906

Local realty services provided by:ERA Southeast Coastal Real Estate
49 Rearden Way,Beaufort, SC 29906
$413,853
  • 3 Beds
  • 3 Baths
  • 1,721 sq. ft.
  • Single family
  • Pending
Listed by: emily swoyer, melissa searson
Office: mungo homes coastal division
MLS#:194263
Source:Lowcountry Regional MLS

Price summary

  • Price:$413,853
  • Price per sq. ft.:$240.47
  • Monthly HOA dues:$47.92

About this home

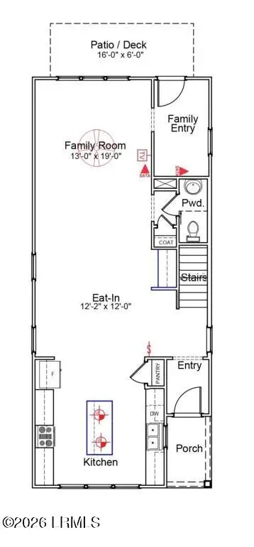
This two-story home includes three bedrooms and two and one-half bathrooms. Immediately inside the entrance is the open concept kitchen that flows directly into the eat-in area and great room. Main level options include an island in the kitchen, boxed ceiling and butler's pantry in the eat-in and a fireplace in the great room. At the rear entry, you will find a powder room and have the option of adding a bench and cubby, cabinet storage or workspace. Upstairs, the primary suite features a walk-in closet and optional boxed ceiling, porch access, window seat and dual vanities. Two secondary bedrooms and a full bathroom are also located upstairs. A laundry room is located just outside of the secondary bedrooms for ultimate convenience.

Contact an agent

contact an agent

Yes, I would like more information. Please use and/or share my information with an ERA®  affiliated agent to contact me about my real estate needs. By clicking Send message, I request to be contacted by phone or text message and consent to being contacted by automated means. I understand that my consent to receive calls or texts is not a condition of purchasing any property, goods, or services. Alternatively, I understand that I can access real estate services by email or I can contact the agent myself.

If an ERA®  affiliated agent is not available in the area where I need assistance, I agree to be contacted by a real estate agent affiliated with another brand owned or licensed by Anywhere Real Estate (BHGRE® , CENTURY 21® , Coldwell Banker® , Corcoran® , Sotheby's International Realty® ).
 I acknowledge that I have read and agree to theTerms of useandPrivacy notice

Home facts

  • Year built:2026
  • Listing ID #:194263
  • Added:105 day(s) ago
  • Updated:April 29, 2026 at 07:21 AM

Rooms and interior

  • Bedrooms:3
  • Total bathrooms:3
  • Full bathrooms:2
  • Half bathrooms:1
  • Kitchen Description:Dishwasher, Disposal, Gas Oven/Range, Microwave
  • Living area:1,721 sq. ft.

Heating and cooling

  • Cooling:Central Air
  • Heating:Central, Heating
  • Central air:Yes

Structure and exterior

  • Year built:2026
  • Building area:1,721 sq. ft.
  • Lot area:0.11 Acres
  • Construction Materials:Vinyl Siding
  • Foundation Description:Slab

Utilities

  • Sewer:Public Sewer

Finances and disclosures

  • Price:$413,853
  • Price per sq. ft.:$240.47
MLS LogoThe information being provided by Lowcountry Regional MLS is for the consumer’s personal, non-commercial use and may not be used for any purpose other than to identify prospective properties consumers may be interested in purchasing. The information is deemed reliable but not guaranteed and should therefore be independently verified. ©2026 Lowcountry Regional MLS. All rights reserved.